NewConstruction Ferdigattest Naeringsbygg

Ny garasje, lager og verksted ved Loe bruk 7, Hokksund

📍 Loe bruk 7 , 3300 HOKKSUND

Nøkkelinfo

Sakstype
Nybygg
Bygningstype
Naeringsbygg
Bruksareal
1,673 m²
Kommune
Øvre Eiker
Fylke
Buskerud
Gnr / Bnr
17 / 11
Saksnummer
2025/4268
Fase
Ferdigattest

Om byggesaken

Ny garasje, lager og verksted for renseanlegg oppføres på eiendommen Loe bruk 7 i Hokksund. Bygget har et bruksareal på 1673 m², fordelt på to etasjer med en fri høyde på 6 meter, hvorav en del har mesanin. Bygget består av vaskehall, disponibelt rom, garasje, teknisk rom og varmesentral. Fasaden er kledd med profilerte sandwichpaneler i farge RAL 7016, med vinduer i porter og en balkong på sydfasaden. Bygget er fundamentert over flomnivå med ferdig gulv på kote +6,75 m, som er 1,27 m over flomnivå. Det er etablert oljeutskiller og tilknytning til offentlig vann- og avløpsnett. Utomhusplanen inkluderer parkeringsplasser, gangveier og grønn buffersone mot vassdrag. Bygget skal brukes til garasje, lager og verksted for renseanlegget, og er prosjektert og utført med ansvarlige foretak innen arkitektur, konstruksjon, elektro, VVS, ventilasjon, geoteknikk og landskapsarkitektur. Det foreligger godkjent midlertidig brukstillatelse og ferdigattest.

Produkter og materialer

VVS Varmeanlegg

Varmeanlegg prosjektert og installert av THON & CO AS

Gulv Betonggulv ferdig på kote +6,75 m

🧱 Betong

Ferdig gulv på kote +6,75 m, 1,27 m over flomnivå

Betonggulv med høyde over flomnivå for sikkerhet mot flom

Betong Plasstøpte betongkonstruksjoner

Plasstøpte betongkonstruksjoner utført av NCC NORGE AS

VVS Vannforsynings- og avløpsanlegg

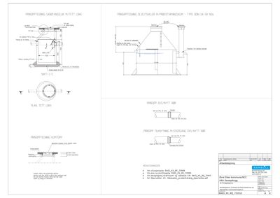
Oljeutskiller type Odin UK-SR5 med prøvetakningskum

VA-anlegg med oljeutskiller og tilknytning til offentlig nett

Maling RAL-farger på fasadeelementer

RAL 7016 på sandwichpaneler, RAL 1018 på dører og pullerter

Maling og fargevalg for fasade og detaljer

Elektro Brannalarmanlegg

Brannalarmanlegg prosjektert av HEDENGREN SECURITY AS og installert av ARRO ELEKTRO AS

Trapper Trapper og rekkverk

🧱 Galvanisert stål

Trapp til mesanin med rekkverk og leidere

Innvendige trapper og rekkverk i galvanisert stål

Vinduer Vinduer i porter

Antall: 4

Vinduer i øyehøyde i porter

Vinduer integrert i porter på fasaden

Ventilasjon Ventilasjons- og klimainstallasjoner

Ventilasjons- og klimainstallasjoner prosjektert og utført av GK NORGE AS

VVS Sanitærinstallasjoner

Sanitærinstallasjoner prosjektert og utført av THON & CO AS

Fasade Sandwichelementer

🧱 Profilerte sandwichpaneler

RAL 7016, lineær struktur

Fasadekledning i profilerte sandwichpaneler med farge RAL 7016

Dører Porter og inngangsdør

Porter med vinduer i øyehøyde, inngangsdør RAL 1018

Porter og inngangsdør med vinduer og fargeangivelse

Stål Stålkonstruksjoner

Stålkonstruksjoner prosjektert og montert av IPOA AS

Grunnarbeid Vei- og grunnarbeider

Vei- og grunnarbeider utført av KONGSBERG ENTREPRENØR AS

Tak Taktekking

Taktekking utført av BØTTGER AS

Terrasse Balkong

Antall: 1

Balkong på sydfasade

Grunnarbeid Utvendig VA-anlegg

Utvendig VA-anlegg utført av KONGSBERG ENTREPRENØR AS

Fasader

HRA Garasjebygg

Syd
Høyde
6.0 m
Vinduer
0
Dører
0
Balkonger
1
Synlige etasjer
2
Øst
Høyde
6.0 m
Vinduer
4
Dører
1
Synlige etasjer
2
Nord
Høyde
6.0 m
Vinduer
0
Dører
0
Synlige etasjer
2
Vest
Høyde
6.0 m
Vinduer
0
Dører
0
Synlige etasjer
2

Hendelser

10.04.2026 Godkjenning - Ferdigattest - Garasje, lager og verksted for renseanlegg - gbnr 17/11 - Loe bruk 7, Hokksund
26.03.2026 Søknad om ferdigattest - Garasje, lager og verksted for renseanlegg - gbnr 17/11 - Loe bruk 7, Hokksund
17.12.2025 Supplering av søknad - garasje, lager og verksted for renseanlegg - gbnr 17/11 - Loe bruk 7, Hokksund
16.12.2025 Ytterlige mangler - Garasje, lager og verksted for renseanlegg - gbnr 17/11 - Loe bruk 7, Hokksund
16.12.2025 Godkjenning - Midlertidig brukstillatelse - Garasje, lager og verksted for renseanlegg - gbnr 17/11 - Loe bruk 7, Hokksund
11.12.2025 Supplerende dokumentasjon til mangelbrev - Garasje, lager og verksted for renseanlegg - gbnr 17/11
01.12.2025 Fristutsettelse - Garasje, lager og verksted for renseanlegg - gbnr 17/11 - Loe bruk 7, Hokksund
28.11.2025 Svar på mangelbrev - Garasje, lager og verksted for renseanlegg - gbnr 17/11
12.11.2025 Mangelbrev - Garasje, lager og verksted for renseanlegg - gbnr 17/11 - Loe bruk 7, Hokksund
07.11.2025 Søknad om midlertidig brukstillatelse - Garasje, lager og verksted for renseanlegg - gbnr 17/11 - Loe bruk 7, Hokksund
07.11.2025 Innmålingsdata til søknad om ferdigattest - Garasje, lager og verksted for renseanlegg - gbnr 17/11
14.08.2025 Supplerende dokumentasjon - Garasje, lager og verksted for renseanlegg - gbnr 17/11
14.08.2025 Dokumentasjon på oljeutskiller garasje, lager og verksted for renseanlegg - gbnr 17/11
01.07.2025 Godkjenning - Ett-trinns søknad - Garasje, lager og verksted for renseanlegg - gbnr 17/11 - Loe bruk 7, Hokksund
30.06.2025 Supplering av søknad - garasje, lager og verksted for renseanlegg - gbnr 17/11 - Loe bruk 7, Hokksund
30.06.2025 Supplering av søknad - garasje, lager og verksted for renseanlegg - gbnr 17/11 - Loe bruk 7, Hokksund
16.06.2025 Bekreftelse på mottatt søknad - Garasje, lager og verksted for renseanlegg - gbnr 17/11 - Loe bruk 7, Hokksund
12.06.2025 Ett-trinns søknad - Garasje, lager og verksted for renseanlegg - gbnr 17/11 - Loe bruk 7, Hokksund