NewConstruction UnderBehandling Naeringsbygg

Ny lagerbygning på Midtstegen 23, Skogsvåg

πŸ“ Midtstegen 23 , 5382 SKOGSVÅG

NΓΈkkelinfo

Sakstype
Nybygg
Bygningstype
Naeringsbygg
Bruksareal
408 mΒ²
Kommune
Øygarden
Fylke
Vestland
Gnr / Bnr
150 / 151
Saksnummer
25/21428
Fase
Under behandling

Om byggesaken

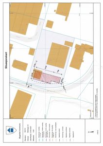
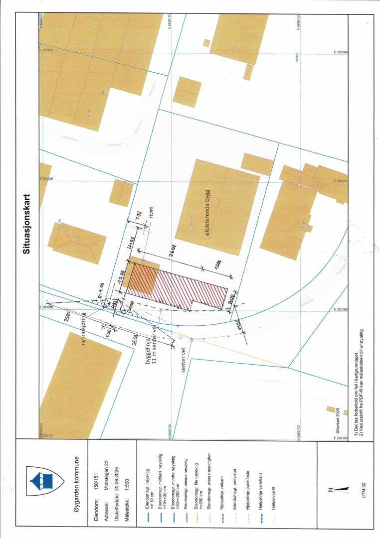
Ny lagerbygning på ca. 408 m² skal oppføres på eiendommen Midtstegen 23 i Skogsvåg, Øygarden kommune. Bygget er planlagt som en annenlagerbygning for næringsformål innen transport og lagring. Bygget skal plasseres i et etablert næringsområde med reguleringsplan for industri, men krever dispensasjon fra kommuneplanens sentrumsformål. Prosjektet inkluderer flytting av eksisterende avkjøring for bedre trafikkforhold, samt omfattende overvannshåndtering med regnbed, sandfangskum og infiltrasjonsløsninger for å sikre at overvann ikke øker avrenningen til omkringliggende områder. Bygget skal oppføres med stålkonstruksjoner og betongplate, og det er utarbeidet detaljert plan for overvann, avkjørsel og byggegrenser. Det foreligger samtykke fra naboer for plassering av avkjørsel nær nabogrense. Prosjektet er i fase under behandling med pågående dispensasjonssøknad.

Produkter og materialer

Stål Stålkonstruksjoner

🧱 Stål

Stålkonstruksjoner for lagerbygget, ansvarlig BORGA STÅLBYGG AS

Stålkonstruksjoner for byggkropp og bæresystem

Grunnarbeid Avkjørsel

🧱 Asfalt

Ny avkjørsel med bredde 5,0 m, asfaltert, med samtykke fra nabo gnr 150/155

Opparbeidelse av ny avkjørsel til eiendommen med godkjent plassering og asfaltert overflate

VVS Vann- og avløpsinstallasjoner

Innvendig og utvendig vann- og avløpsinstallasjoner, ansvarlig AS TOFT MESTERRØR

Vann- og avløpsinstallasjoner for lagerbygget

Betong Betongplate

Betongplate for lagerbygget, ansvarlig NILSEN & STURE BETONG AS

Betongplate som fundament for lagerbygget

Grunnarbeid Masseutskifting og sprengning

Grunnarbeider med masseutskifting og sprengning, ansvarlig SANGOLT MASKIN OG TRANSPORT AS

Grunnarbeid for tomt, inkludert sprengning og planering

Grunnarbeid Overvannshåndtering

Regnbed, sandfangskum med flatrist, infiltrasjonskum (IFS kum), overvannshåndtering i henhold til TEK17 og kommunale krav

Overvannshåndtering med regnbed, sandfangskum og infiltrasjonsløsninger for å sikre riktig avrenning

Hendelser

17.11.2025 GBNR 150/151 - Supplering av søknad
07.11.2025 GBNR 150/151 - Ber om dokumentasjon
14.10.2025 GBNR 150/151 - Oversending av dispensasjonssøknad til uttale
10.10.2025 GBNR 150/151 - Supplering av søknad - søknad om dispensasjon
10.10.2025 GBNR 150/151 - Vedtak om avvising av søknad
20.08.2025 GBNR 150/151 - Ber om å sende inn grunngjeven søknad om dispensasjon
05.08.2025 GBNR 150/151 - Supplering av søknad
16.07.2025 GBNR 150/151 - Tilbakemelding om manglar
08.07.2025 GBNR 150/151 - Søknad om løyve i eitt trinn