NewConstruction Ferdigattest Naeringsbygg

Ny driftsbygning/redskapshus på Nesvegen 134

📍 Nesvegen 134 , 5567 SKJOLDASTRAUMEN

Nøkkelinfo

Sakstype
Nybygg
Bygningstype
Naeringsbygg
Bruksareal
108 m²
Kommune
Tysvær
Fylke
Rogaland
Gnr / Bnr
95 / 1
Saksnummer
2022/3838
Fase
Ferdigattest

Om byggesaken

Ny driftsbygning/redskapshus på 108 m² oppføres på landbrukseiendom Nesvegen 134. Bygningen er i ett plan med saltak og høye porter tilpasset lagring av landbruksredskaper. Den nye bygningen erstatter en falleferdig driftsbygning på under 100 m² og plasseres delvis på samme areal. Bygget har 8 vinduer og 1 dør, og er plassert minimum 28 meter fra fylkesveiens senterlinje i henhold til dispensasjon. Bygningen skal benyttes til landbruksformål og alt rivingsavfall håndteres i henhold til krav, inkludert asbesthåndtering.

Produkter og materialer

Riving Riving av eksisterende driftsbygning

Riving av falleferdig driftsbygning under 100 m², håndtering av asbest og eternittak iht. krav

Riving av gammel driftsbygning med forsvarlig avfallshåndtering

Fasade Yttervegger i tre

🧱 Tre

Bygningen oppføres i tre med saltak

Fasade i tre som bærer saltak, tilpasset landbruksbygg

Tak Saltak

Saltak med takutspring i henhold til dispensasjon

Saltak på ny driftsbygning/redskapshus

Dører Ytterdør

Antall: 1

Høye porter for store landbruksredskaper

En dør/port tilpasset landbruksredskap

Vinduer Fasadevindu

Antall: 8

Åtte vinduer i redskapshuset

Tømrer Nybygg landbruksbygg

🧱 Tre

Ny driftsbygning/redskapshus på 108 m² i ett plan

Tømrerarbeid for oppføring av nytt redskapshus

Grunnarbeid Byggegrunn

Byggegrunn vurdert som morenemateriale, tilfredsstiller pbl § 28-1

Grunnarbeid tilpasset byggegrunn på eiendommen

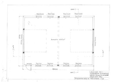
Plantegning

Redskapshus 108.0 m²

Etasje 1 108.0 m²

Rom Areal Vinduer Dører
Redskapshus 108.0 m² 8 1

Fasader

Enebolig

Øst
Materiale
Tre
Taktype
Saltak
Vinduer
4
Dører
1
Synlige etasjer
2
Nord
Materiale
Tre
Vinduer
0
Dører
0
Balkonger
1
Synlige etasjer
1
Vest
Materiale
Tre
Taktype
Saltak
Vinduer
4
Dører
0
Synlige etasjer
2
Sør
Materiale
Tre
Taktype
Flatt tak
Vinduer
0
Dører
0
Balkonger
1
Synlige etasjer
1

Hendelser

16.04.2026 Gbnr 95/1 - Vedtak - Ferdigattest - Riving og oppføring av driftsbygning/ redskapshus - Nesvegen 134
13.04.2026 Gbnr 95/1 - Søknad om ferdigattest - riving og oppføring av driftsbygning/ redskapshus - Nesvegen 134
17.03.2026 Gbnr 95/1 - Purring på søknad om ferdigattest - Riving og oppføring av driftsbygning/ redskapshus - Nesvegen 134
23.01.2023 Vedtak om tiltak - Riving og oppføring av driftsbygning/redskapshus - gnr. 95 bnr. 1 - Nesvegen 134
04.01.2023 Svar på søknad til uttalelse - Vedtak om dispensasjon fra byggegrense - Riving og oppføring av driftsbygning - gnr. 95 bnr. 1 - Nesvegen 134
06.12.2022 Oversender søknad til uttalelse - Riving og oppføring av driftsbygning / Redskapshus - gnr. 95 bnr. 1 - Nesvegen 134
24.11.2022 Tilleggsopplysninger til søknad om riving og oppføring av redskapshus - gnr. 95 bnr. 1 - Nesvegen 134
04.11.2022 Svar på tilbakemelding om mangler - Riving og oppføring av nytt redskapshus - gnr. 95 bnr. 1 - Nesvegen 134
26.10.2022 Tilbakemelding om mangler - Riving og oppføring av driftsbygning / Redskapshus - gnr. 95 bnr. 1 - Nesvegen 134
03.10.2022 Søknad om driftsbygning / redskapshus - gnr. 95 bnr. 1 - Nesvegen 134