NewConstruction UnderBehandling Naeringsbygg

Nytt verksted- og administrasjonsbygg i Onarheimsvegen 8, Husnes

📍 Onarheimsvegen 8 , 5460 HUSNES

Nøkkelinfo

Sakstype
Nybygg
Bygningstype
Naeringsbygg
Bruksareal
648 m²
Kommune
Kvinnherad
Fylke
Vestland
Gnr / Bnr
143 / 107
Saksnummer
2024/1717
Fase
Under behandling

Om byggesaken

Nytt verksted- og administrasjonsbygg på 648 m² oppføres på eiendommen Onarheimsvegen 8 i Husnes. Bygget skal inneholde vaskehall, verksted, lager og kontorlokaler med tilhørende utearealer. Eksisterende bygg rives, og det etableres ny avkjørsel med gang- og sykkelveg, samt busslomme i samarbeid med Vestland fylkeskommune. Bygget er plassert i sikkerhetsklasse F2 med flomsikring basert på flomvurdering. Det er gjennomført miljøkartlegging med funn av asbest i loftsetasje som skal saneres. Prosjektet inkluderer grunnarbeid, betongkonstruksjoner, stålkonstruksjoner, sanitær, ventilasjon, elektro, brannalarmanlegg og slukkeinstallasjoner. Det foreligger godkjente VA-planer med olje- og fettutskiller, overvannsplan med fordrøyningsmagasin, og tilknytning til offentlig vann- og avløpsnett. Det er gitt midlertidig brukstillatelse for deler av bygget, og sluttarbeider med ferdigstilling av uteareal og avkjørsel pågår.

Produkter og materialer

Tak Taktekking med isolasjon og Sanafilbelegg

🧱 Fleksible polyolefiner (TPO), Sanafilbelegg

Antall: 385

Takflate på ca. 385 m² med isolasjon og Sanafilbelegg

Taktekking for nytt bygg

Elektro Brannalarmanlegg og ledesystem

Utføres av INTO RØYR AS og TECA AS, inkludert brannalarmanlegg og ledelys

Brannalarmanlegg og ledesystem for nytt bygg

Grunnarbeid Grunnarbeid for nytt bygg og uteareal

Utføres av Halsnøy Trelast AS, inkludert opparbeiding av avkjørsel, gang- og sykkelveg, busslomme og overvannsdrenering

Grunnarbeid for nytt verksted- og administrasjonsbygg og tilhørende utearealer

Vinduer Isolerglassruter

🧱 Glass

Antall: 16

16 isolerglassruter fra 1983 og 4 fra 1992 skal håndteres som farlig avfall

Vinduer med isolerglass i eksisterende bygg som skal rives

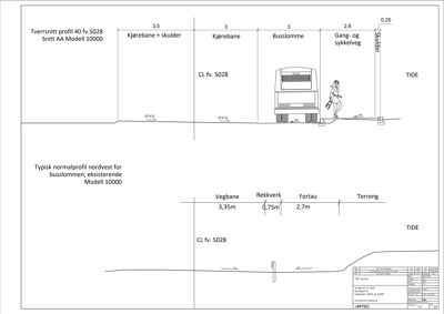
Utendørs Gang- og sykkelveg, fortau, busslomme, avkjørsel

Ny gang- og sykkelveg med bredde 2,5 m + 0,25 m skulder, busslomme, trafikkdeler 1,5 m bredde, og justert avkjørsel med todelt radius

Utomhusanlegg med gang- og sykkelveg, busslomme og avkjørsel til fylkesvei

Betong Plasstøpte betongkonstruksjoner

🧱 Betong

Utføres av Fronta Bygg AS og PROLED AS, inkludert fundamenter, dekker og konstruksjoner

Betongkonstruksjoner for nytt bygg

Stål Stålkonstruksjoner

🧱 Stål

Utføres av Fronta Bygg AS, inkludert bærende stålkonstruksjoner

Stålkonstruksjoner for nytt bygg

VVS Sanitærinstallasjoner

Utføres av INTO RØYR AS, inkludert installasjon av sanitærutstyr og olje- og fettutskiller

Sanitærinstallasjoner for nytt bygg

Grunnarbeid Overvannsdrenering og fordrøyningsmagasin

Overvannsplan med fordrøyningsmagasin på 43,9 m³ og kapasitet for 84,9 l/s

Overvannsdrenering og fordrøyning for nytt bygg og uteareal

Ventilasjon Ventilasjon og klimainstallasjoner

Utføres av TECA AS, inkludert ventilasjonssystemer og klimaanlegg

Ventilasjon og klimainstallasjoner for nytt bygg

Gulv Gulvbelegg med ftalater

🧱 Vinyl

Antall: 160

Ca. 160 m² gulvbelegg med ftalater i garderobe og andre områder

Gulvbelegg i eksisterende bygg som skal rives

Riving Riving og miljøsanering

Utføres av Fronta Bygg AS og Halsnøy Trelast AS, inkludert sanering av asbestholdige materialer i loftsetasje

Riving av eksisterende bygg og miljøsanering

Fasade Fasadeelementer og kledning

🧱 Stålplater, trekledning

Eksisterende fasade av bindingsverk i tre og stålplater, ny fasade tilpasses nytt bygg

Fasade for nytt verksted- og administrasjonsbygg

Plantegning

Enebolig 324.0 m²

Etasje 1 324.0 m²

Rom Areal Vinduer Dører
Vaskerom 1-01 14.6 m² 0 1
Lager/Toilet 2-03 15.8 m² 0 1
Kjøkken 2-04 13.6 m² 0 1
Bad 2-05 7.8 m² 0 1
Stue 3-01 32.7 m² 1 1
Gang D 4-01 6.1 m² 0 2
Toilet 4-02 4.3 m² 0 1
Service/lager 5-01 9.3 m² 0 1
Bilparkering 5-02 4.3 m² 0 1
Telefon/lager 6-01 24.6 m² 0 1
Stuehall 2 7-01 120.0 m² 0 0
Bygning Adm. 8-01 186.0 m² 0 0

Hendelser

15.04.2026 Sluttrapport riving og nybygg - Tide - 143/107
13.04.2026 Delegert dispensasjon og endringsløyve - 143/107
13.03.2026 Uttale til søknad om dispensasjon - riving og oppføring av nytt bygg - 143/107 og 143/1
10.03.2026 Ber om uttale - Dispensasjon og endringsløyve - 143/107
06.03.2026 Stadfesting på mottatt søknad - Endringsløyve - 143/107
05.03.2026 Søknad om endring - 143/107
12.02.2026 Mellombels bruksløyve - Rive eksisterande bygg - Nytt verkstad og administrasjonsbygg - 143/107
11.02.2026 Innmålingsdata - 143/107
10.02.2026 Supplering av søknad - 143/107
10.02.2026 Godkjenning av ferdigmelding for ny tilknytning til offentleg vass- /avløpsanlegg - 143/107
10.02.2026 Godkjenning av melding om utført vass- og avløpsarbeid - 143/107 - vassmålarmontering
02.02.2026 Mangelbrev - Mellombels bruksløyve - 143/107
28.01.2026 Påslepp oljeutskiljar - 143/107
16.01.2026 Stadfesting på mottatt søknad - Mellombels bruksløyve - 143/107
15.01.2026 Søknad om mellombels bruksløyve - 143/107
12.01.2026 Brev frå Vestland fylkeskommune - Bussplass ved Busstasjonen på Husnes - 143/107
01.12.2025 Vedkjem avklaring på plan av innkøyrsel Tide verkstad - 143/107
01.12.2025 Delegert dispensasjon og endringsløyve - Rive bygget - 143/107
27.11.2025 Vår uttale - dispensasjon - endring av gitt rammeløyve - riving og oppføring av nytt bygg - 143/107
24.11.2025 Status - mellombels bruksløyve og søknad om dispensasjon og endringsløyve
24.11.2025 Mellombels bruksløyve - Rive eksisterande bygg - Nytt verkstad og administrasjonsbygg - 143/107
24.11.2025 Tide - signert gjennomføringsavtale
17.11.2025 Søknad om mellombels bruksløyve - 143/107
10.11.2025 Ber om uttale - dispensasjon og endringsløyve - 143/107
06.11.2025 Stadfesting på mottatt søknad - Endringsløyve - 143/107
06.11.2025 Søknad om endring - 143/107
15.10.2025 Godkjenning av søknad om ny tilknytning til offentleg vassleidning - 143/107
12.08.2025 Godkjenning av VA-plan - Tide Husnes - 143/107
12.08.2025 Tide Husnes - supplerande opplysningar - vatn- og avløp - 143/107
03.07.2025 Endring av ansvarleg søkjar - 143/107
22.04.2025 Godkjenning av søknad om påsleppsløyve - 143/107
16.04.2025 Etterspør status på VA-plan - 143/107
15.04.2025 Løyve til tiltak - Riving eksisterande bygg - Nytt verkstad og administrasjonsbygg - 143/107
07.04.2025 Søknad om igangsetjingsløyve - 143/107
07.02.2025 Vatn og avløp - 143/77 - endring av tilkopling
07.02.2025 VA-plan - 143/107
03.10.2024 Supplering av søknad - 143/107
03.10.2024 Løyve til tiltak - Rive eksisterande bygg - Nytt verkstad og administrasjonsbygg - 143/107
27.09.2024 Vedkjem supplerande dokumentasjon - 143/107
26.09.2024 Supplering av søknad - 143/107
26.09.2024 Søknad om igangsetjingsløyve - 143/107
25.09.2024 Vedkjem gjennomføringsavtale - uttale - 143/107
24.09.2024 Dispensasjon frå VA-norm - 143/107 - etablering av fortau
24.09.2024 Oppfølging av vår uttale til rammesøknad - 143/107 - Husnes - Kvinnherad kommune
23.09.2024 Søknad om dispensasjon frå VA-norm - 143/107
23.08.2024 Rammeløyve - Riving og oppføring av nytt bygg - 143/107
23.08.2024 Vedkjem uttale - gjennomføringsavtale - 143/107
22.08.2024 Vår uttale til rammesøknad - 143/107 - Husnes
08.08.2024 Ber om uttale - rammesøknad - 143/107
06.08.2024 Onarheimsvegen 8 Supplering av søknad 143/107
05.07.2024 Supplering av søknad - 143/107