NewConstruction Soeknad Naeringsbygg

Ny hall for oppdrettskar på Osland Brygge, Høyanger

📍 Osland Brygge

Nøkkelinfo

Sakstype
Nybygg
Bygningstype
Naeringsbygg
Bruksareal
733 m²
Kommune
Høyanger
Fylke
Vestland
Gnr / Bnr
22 / 20
Saksnummer
2026/906
Fase
Søknad

Om byggesaken

Ny hall på 733 m² med flatt tak og betongfasader bygges som overbygg for eksisterende oppdrettskar på Osland Brygge. Bygget har ett plan og inneholder hovedsakelig hallareal og tekniske rom på ca. 45 m² hver. Hallen har flere porter og dører, men ingen vinduer, og er fundamentert på stedlige komprimerte masser med hensyn til flom- og skredfare. Fasaden består av betong, og taket er flatt. Bygget skal gi enklere og tørrere arbeidsforhold for driften av stamfiskkarene og lagring av materiell og utstyr, uten å øke antall ansatte eller arbeidsplasser.

Produkter og materialer

Tak Flatt tak

Flatt tak på hallbygget

Taktekking og isolasjon for flatt tak

Betong Armert betongplate

🧱 Armert betong

Armert betongplate som gulv/fundament for hallen

Betonggulv og fundament for hallen

Elektro El-installasjoner i tekniske rom

Antall: 2

Tekniske rom for elektroinstallasjoner

Elektroinstallasjoner for hall og drift

Annet Flom- og skredsikringstiltak

Prosjektering og utførelse med hensyn til flom- og skredfare, inkludert evakueringsprosedyrer og barrierer

Sikringstiltak mot naturpåkjenninger

Tømrer Treverk for tekniske rom og fasader

🧱 Tre

Treinnslag i fasader for å tilpasse eksisterende bygningsmiljø, spesielt på tekniske naust

Tømrerarbeid for fasader og tekniske rom

Fasade Betongfasade

🧱 Betong

Betongfasader med flatt tak, gesimshøyde ca. 5,07 m

Fasadeelementer i betong for hallbygget

Maling Fasademaling

Fasadeplater med dempet farge og trespiler av samme type som kledning

Maling og overflatebehandling av fasader

Grunnarbeid Fundamentering på stedlige masser

Fundamentert på komprimerte stedlige masser med hensyn til flom- og skredfare

Grunnarbeid og fundamentering for hallbygget

Dører Porter og dører i betongfasade

Antall: 4

Flere porter og dører på fasader, inkludert 2 dører på nordøstfasade, 1 dør på nordvest og 1 dør på sørfasade

Ytterdører og porter for adkomst og logistikk

VVS Tekniske installasjoner i tekniske rom

Antall: 2

Tekniske rom på ca. 45 m² hver for VVS og tekniske installasjoner

VVS-installasjoner for drift og vedlikehold

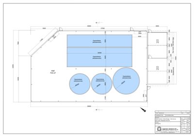
Plantegning

Hall 733.0 m²

Etasje 1 733.0 m²

Rom Areal Vinduer Dører
Hall 101 733.0 m² 0 0
Oppdrettskar 102 0.0 m² 0 0
Oppdrettskar 103 0.0 m² 0 0
Oppdrettskar 104 0.0 m² 0 0
Oppdrettskar 105 0.0 m² 0 0
Oppdrettskar 106 0.0 m² 0 0
Teknisk 107 45.2 m² 0 0
Teknisk 108 45.2 m² 0 0

Fasader

Hovedbygg

Vest
Materiale
Tre
Taktype
Saltak
Vinduer
0
Dører
1
Synlige etasjer
1
Øst
Materiale
Tre
Taktype
Saltak
Vinduer
0
Dører
1
Synlige etasjer
1
Sør
Materiale
Tre
Taktype
Saltak
Vinduer
2
Dører
1
Synlige etasjer
1
Nord
Materiale
Tre
Taktype
Saltak
Vinduer
0
Dører
0
Synlige etasjer
1

Hall

Sørvest
Materiale
Betong
Taktype
Flatt tak
Høyde
5.1 m
Vinduer
0
Dører
0
Synlige etasjer
1
Nordøst
Materiale
Betong
Taktype
Flatt tak
Høyde
5.1 m
Vinduer
0
Dører
2
Synlige etasjer
1
Nordvest
Materiale
Betong
Taktype
Flatt tak
Høyde
5.1 m
Vinduer
0
Dører
1
Synlige etasjer
1

Teknisk naust

Sørøst
Materiale
Tre
Taktype
Saltak
Vinduer
0
Dører
1
Synlige etasjer
1

Hendelser

17.04.2026 Søknad om endring av gitt tillatelse eller godkjenning gbnr 22/20