NewConstruction UnderBehandling Naeringsbygg

Nytt industribygg ved Raudemel 28, Hornindal

📍 Raudemel 28 , 6763 HORNINDAL

Nøkkelinfo

Sakstype
Nybygg
Bygningstype
Naeringsbygg
Bruksareal
250 m²
Kommune
Volda
Fylke
Møre og Romsdal
Gnr / Bnr
203 / 25
Saksnummer
2025/4107
Fase
Under behandling

Om byggesaken

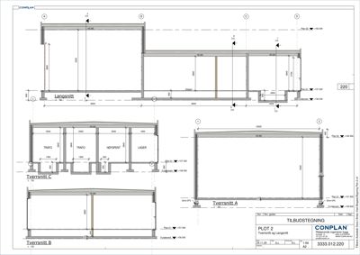
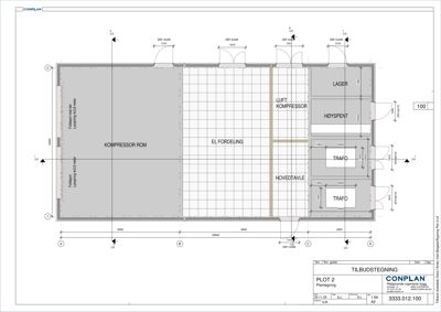
Nytt industribygg på 250 m² BRA oppføres på eiendommen Raudemel 28 i Hornindal. Bygget er ett plan og inneholder blant annet kompressorrom, el-fordeling, luftkompressor, hovedtavle, lager, høyspentrom og trafoer. Bygget har mønehøyde på 14,85 meter og er plassert på kote 156,5 m. Tiltaket inkluderer grunnarbeider, utvendig VA-anlegg, betongarbeider og råbygg for teknisk bygg. Det er gitt dispensasjon for plassering innenfor regulert byggegrense og arealføremål for offentlige VA-anlegg. Bygget skal knyttes til offentlig vann og avløp, og det stilles krav til parkeringsplasser og siktsone ved avkjørsel. Prosjektet har gjennomføringsplan og obligatorisk uavhengig kontroll for flere fagområder.

Produkter og materialer

Elektro El-fordeling og høyspent

Rom for el-fordeling, høyspent og trafoer

El-tekniske installasjoner for industribygg

Dører Ytterdører og foldeporter

Antall: 7

Foldeporter med dør, dører i ulike rom som kompressorrom, lager, el-fordeling

Ytterdører og foldeporter iht. plantegning

Grunnarbeid Grunnarbeider og utstikking

Grunnarbeider, utstikking av tiltaket, utvendig VA

Grunnarbeid og utvendig vann- og avløpsanlegg

Ventilasjon Luftkompressor

Rom for luftkompressor

Ventilasjons- og kompressorutstyr

Utendørs Parkeringsplass og avkjørsel

Opparbeidelse av parkeringsplasser og avkjørsel med frisikt

Utomhusanlegg for parkering og adkomst

Betong Betongelementer

Levering og montering av betongelementer

Betongelementer til råbygg for industribygg

Fasade Yttervegger og fasadeelementer

Fasadeelementer iht. tegninger og plan

Teknisk Trafo og høyspent

Antall: 2

To trafo-rom uten dører

Tekniske rom for trafo og høyspent

Vinduer Fasadevindu

Antall: 0

Ingen vinduer i rommene, ifølge plantegning

Fasadevindu eventuelt iht. tegninger, men rom har ingen vinduer

Plantegning

Hovedbygg 100.0 m²

Etasje 1 100.0 m²

Rom Areal Vinduer Dører
KOMPRESSOR ROM 101 40.0 m² 0 2
EL FORDELING 102 20.8 m² 0 1
LUFT KOMPRESSOR 103 8.6 m² 0 1
HOVEDTAVLE 104 8.6 m² 0 1
LAGER 105 3.8 m² 0 1
HØYSPENT 106 5.0 m² 0 1
TRAFO 107 2.5 m² 0 0
TRAFO 108 2.5 m² 0 0

Hendelser

23.04.2026 Igongsettingsløyve - Nytt industribygg - Raudemel 28 - gnr 203 bnr 25
23.04.2026 Rammeløyve - Nytt industribygg - Raudemel 28 - gnr 203 bnr 25
22.04.2026 Vurdering av dispensasjon frå arealføremål og byggegrense veg - Gnr 203 bnr 25
16.03.2026 Sjekkliste - søknad om tiltak - Raudemel 28 - Gnr 203 bnr 25
25.02.2026 Supplering av søknad 203/25 - Raudemel 28
19.02.2026 Søknad om igangsettingstillatelse 203/25 - Nytt industribygg - Raudemel 28
26.01.2026 Supplering av søknad - gnr 203 bnr 25
09.01.2026 Behov for dispensasjonssøknad og ny nabovarsling - Raudemel 28 - Gnr 203 bnr 25
12.12.2025 Tiltaksanalyse - Raudemel 28 - Gnr 203 bnr 25
03.12.2025 Søknad om rammeløyve - Raudemel 28 - Gnr 203 bnr 25