NewConstruction Soeknad Naeringsbygg

Nybygg næringsbygg med bruksendring i Sivert Nilsens gate 63, Bodø

📍 Sivert Nilsens gate 63

Nøkkelinfo

Sakstype
Nybygg
Bygningstype
Naeringsbygg
Bruksareal
1,245 m²
Boenheter
10
Kommune
Bodø
Fylke
Nordland - Nordlánnda
Gnr / Bnr
2017 / 3535
Saksnummer
2026/16146
Fase
Søknad

Om byggesaken

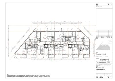
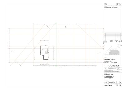
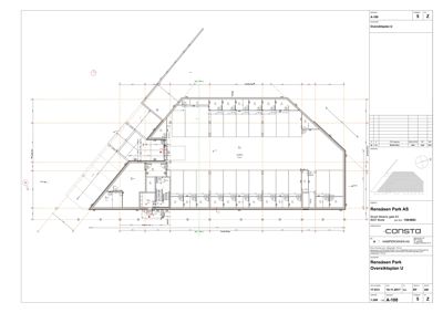
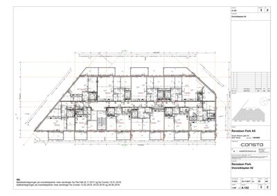
Prosjektet omfatter oppføring av et større næringsbygg kalt Rensåsen Park i Sivert Nilsens gate 63, Bodø. Bygget har 7 etasjer med gesimshøyde på ca. 40,68 meter og er utført i tre med mange vinduer og balkonger. Det inneholder flere leiligheter med varierende størrelser fra ca. 95 til 115 m², samt fellesarealer som ganger og boder. Det er også inkludert trapper og heis i bygget. I tillegg inngår en mindre enebolig med saltak og 6 etasjer, samt tilhørende trapper og balkonger. Prosjektet inkluderer også bruksendring, og det er omfattende tekniske detaljer og materialvalg dokumentert i tegninger og følgebrev.

Produkter og materialer

VVS Sanitær og varme

VVS-installasjoner for sanitær, varme og ventilasjon

VVS-installasjoner for vann, avløp, varme og ventilasjon

Betong Grunnmur og fundament

🧱 Betong

Grunnarbeid og fundamentering for næringsbygg og enebolig

Betongarbeid for fundament og grunnmur

Vinduer Fasadevindu

Antall: 24

Vinduer i fasade øst, 24 stk

Fasadevindu i tre fasade øst

Vinduer Fasadevindu

🧱 Tre

Antall: 12

Vinduer i enebolig fasade nord, 12 stk

Vinduer i trefasade på enebolig

Heis Personheis

Antall: 1

Heis med areal ca. 4,3 m² i næringsbygg

Personheis i næringsbygg

Isolasjon Bygningsisolasjon

Isolasjon i vegger, tak og gulv for energikrav

Isolasjon for varme- og lydisolering

Dører Ytterdør

Antall: 2

Dører i fasade øst og sør i næringsbygg

Ytterdører i næringsbygg

Vinduer Fasadevindu

🧱 Tre

Antall: 18

Vinduer i enebolig fasade vest, 18 stk

Vinduer i trefasade på enebolig

Trapper Innvendig trapp

Antall: 1

En trapp i enebolig

Innvendig trapp i enebolig

Trapper Innvendige trapper

Antall: 2

To trapper i næringsbygg

Innvendige trapper i næringsbygg

Fasade Tre fasade med balkonger

🧱 Tre

Fasade øst med 24 vinduer og 12 balkonger, fasade sør med 10 vinduer og 3 balkonger, gesimshøyde 40,68 m

Trefasader med mange vinduer og balkonger i næringsbygget

Tak Saltak

Antall: 1

Saltak på enebolig

Saltak på enebolig

Maling Innvendig og utvendig maling

Maling av fasader og innvendige flater

Maling for beskyttelse og estetikk

Tømrer Innvendige vegger og bjelkelag

🧱 Tre

Tømrerarbeid for innvendige vegger og bjelkelag i næringsbygg og enebolig

Tømrerarbeid for konstruksjon og innredning

Elektro El-installasjoner

Elektriske installasjoner i næringsbygg og enebolig

El-installasjoner for belysning, strøm og tekniske systemer

Dører Ytterdør

Antall: 2

Dører i enebolig fasade vest og nord

Ytterdører i enebolig

Vinduer Fasadevindu

Antall: 10

Vinduer i fasade sør, 10 stk

Fasadevindu i tre fasade sør

Fasader

Rensåsen Park

Øst
Materiale
Tre
Høyde
40.7 m
Vinduer
24
Dører
1
Balkonger
12
Synlige etasjer
7
Sør
Materiale
Tre
Høyde
40.7 m
Vinduer
10
Dører
1
Balkonger
3
Synlige etasjer
7

Enebolig

Vest
Materiale
Tre
Taktype
Saltak
Høyde
22.2 m
Mønehøyde
40.1 m
Vinduer
18
Dører
1
Balkonger
1
Synlige etasjer
6
Nord
Materiale
Tre
Taktype
Saltak
Høyde
22.2 m
Mønehøyde
40.1 m
Vinduer
12
Dører
1
Balkonger
1
Synlige etasjer
6

Hendelser

13.04.2026 Rensåsen Park - Oppdatert plan, snitt og fasader fra arkitekt