NewConstruction Igangsettingstillatelse Naeringsbygg

Oppføring av midlertidig kontorbygning på Slettafeltet 22, Ørje

📍 Slettafeltet 22 , 1870 ØRJE

Nøkkelinfo

Sakstype
Nybygg
Bygningstype
Naeringsbygg
Bruksareal
180 m²
Kommune
Marker
Fylke
Østfold
Gnr / Bnr
94 / 252
Saksnummer
2024/554
Fase
Igangsettingstillatelse

Om byggesaken

Ny midlertidig kontorbygning (brakkerigg) på 180 m² med flatt tak og trefasade oppføres i én etasje på eiendommen Slettafeltet 22 i Ørje. Bygget består av flere kontorer, pauserom, garderober, dusj/WC-rom og gangarealer, tilrettelagt for to faste arbeidsplasser. Bygningen er modulbasert og oppført som en midlertidig konstruksjon uten overnatting. Det er tilstrekkelig uteareal for parkering og grøntarealer, og bygget er tilknyttet kommunalt vann og avløp. Bygget har fått nødvendige tillatelser, inkludert midlertidig brukstillatelse med dispensasjon fra rekkefølgebestemmelser, og det er søkt om ferdigattest. Bygget har ventilasjon, sanitærinstallasjoner og elektrisk oppvarming med varmepumpe.

Produkter og materialer

Fasade Trefasade

🧱 Tre

Trefasade med flatt tak

Yttervegger i tre som fasademateriale

VVS Sanitærinstallasjoner

Dusj, WC, HC WC, garderober med sanitærutstyr

Sanitærinstallasjoner for dusj, WC og garderober

Ventilasjon Ventilasjonssystem

Ventilasjon installert i bygget

Tømrer Modulbygg montering

Tømrerarbeid for montering av modulbasert kontorbrakkerigg

Annet Utomhusanlegg

Opparbeidelse av grøntarealer og uteoppholdsarealer iht. reguleringsplan

Utomhusanlegg med grøntarealer og parkering

Tak Flatt tak

Flatt tak på modulbygg

Tak med flatt utførelse

Maling Innvendig og utvendig maling

Maling av trefasade og innvendige overflater

Vinduer Fasadevindu

Antall: 11

Fasadevindu i trefasade, 11 stk på vestfasade

Grunnarbeid Fundamentering og grunnarbeid

Grunnarbeid og fundamentering for modulbygg

Dører Innvendige dører

Antall: 15

Innvendige dører til kontorer, garderober, WC og dusj

Elektro Elektrisk oppvarming

Elektriske panelovner og varmepumpe luft-luft

Oppvarming med elektriske panelovner og varmepumpe luft-luft

Gulv Gulvbelegg

Innvendige gulvbelegg i kontorer og fellesarealer

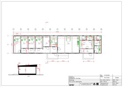
Plantegning

Brakkerigg 180.0 m²

Etasje 1 180.0 m²

Rom Areal Vinduer Dører
Kontor 1 101 12.8 m² 0 1
Kontor 2 102 9.2 m² 0 1
Kontor 3 103 9.2 m² 0 1
Kontor 4 104 9.2 m² 0 1
Gang 1 105 20.8 m² 0 0
Høtterom 106 8.0 m² 0 1
HC WC 107 5.0 m² 0 1
Pauserom 108 41.5 m² 0 1
Gang 2 109 6.3 m² 0 0
Garderobe 110 15.2 m² 0 1
DUS/WC/GARD A 111 5.4 m² 0 1
DUS/WC/GARD B 112 3.1 m² 0 1
Bøttek 113 5.4 m² 0 1
Garderobe D 114 3.9 m² 0 1
DUS/WC/GARD C 115 5.4 m² 0 1

Fasader

Brakkerigg

Vest
Materiale
Tre
Taktype
Flatt tak
Vinduer
11
Dører
0
Synlige etasjer
1
Nord
Materiale
Tre
Taktype
Flatt tak
Vinduer
0
Dører
0
Synlige etasjer
1

Hendelser

19.04.2026 Nedsatt saksbehandlingsgebyr - Oppføring kontorbygning - Slettafeltet 22 - gnr 94 bnr 252
09.03.2026 Midlertidig brukstillatelse og dispensasjon - Oppføring av kontorbygning – Slettafeltet 22 – gnr 94 bnr 252
04.03.2026 Søknad om dispensasjon for midlertidig brukstillatelse - Oppføring av midlertidig kontorbrakker – Slettafeltet 22 – gnr 94 bnr 252
25.02.2026 Endring av tidligere gitt tillatelse - Kontorbygg - Slettafeltet 22 – gnr 94 bnr 252
06.02.2026 Supplering av søknad – Slettafeltet 22 – gnr 94 bnr 252
21.01.2026 Behov for ytterligere dokumentasjon - Oppføring av midlertidig kontorbrakker – Slettafeltet 22 – gnr 94 bnr 252
08.01.2026 Søknad om ferdigattest - Slettafeltet 22 - gnr 94 bnr 252
19.12.2025 Søknad om midlertidig brukstillatelse – Slettafeltet 22 – gnr 94 bnr 252
16.12.2025 Supplerende dokumentasjon – Slettafeltet 22 – gnr 94 bnr 252
23.09.2024 Tillatelse til tiltak - Kontorbygning - Slettafeltet 22 - gnr 94 bnr 252
22.08.2024 Supplering av søknad – Slettafeltet 22 – gnr 94 bnr 252
16.08.2024 Behov for ytterligere dokumentasjon - Midlertidig kontorbygning - Slettafeltet 22 - gnr 94 bnr 252
22.07.2024 Søknad om tillatelse i ett trinn for oppføring av kontorbrakker - Slettafeltet 22 - gnr 94 bnr 252