NewConstruction Ferdigattest Naeringsbygg

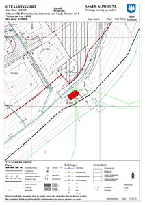
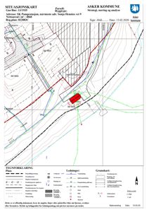
Ny pumpestasjon med sjøledning i Sonja Henies vei 9, Asker

📍 Sonja Henies vei 9 , 1394 NESBRU

Nøkkelinfo

Sakstype
Nybygg
Bygningstype
Naeringsbygg
Bruksareal
31 m²
Kommune
Asker
Fylke
Akershus
Gnr / Bnr
39 / 1935
Saksnummer
20/3851
Fase
Ferdigattest

Om byggesaken

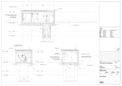
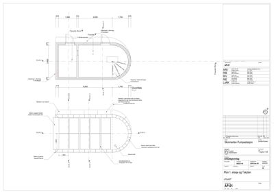
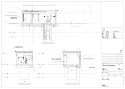
Ny pumpestasjon på 31 m² med flatt tak og fasade i tre, plassert i Sonja Henies vei 9 i Asker. Bygget består av et teknisk rom uten vinduer, med to dører på nordfasaden og pipe på vest- og østfasaden. Pumpestasjonen erstatter et eldre bygg på 12 m² og er utformet med krumme vegger, naturstein og hvit puss for å harmonere med omkringliggende bevaringsverdige bygg. Prosjektet inkluderer også etablering av en 885 meter lang sjøledning fra pumpestasjonen til Holmen, med rørtype SESU-pipe i dimensjon 125 PE. Området rundt pumpestasjonen er opparbeidet med asfalt og plen, og det er lagt vekt på god overvannshåndtering. Miljøkartlegging har avdekket begrensede mengder farlig avfall som impregnerte trevirke og EE-avfall, som håndteres i henhold til forskrifter. Tiltaket er ferdigstilt og har fått ferdigattest.

Arbeidsomfang

- Riving av eksisterende pumpestasjon på Skonnerten - Etablering av ny pumpestasjon med sjøledning - Utførelse av nødvendige grunnarbeider og installasjoner for ny pumpestasjon - Tilpasning av sjøledning fra pumpestasjon

Produkter og materialer

Annet Miljøsanering og avfallshåndtering

Miljøkartlegging og sanering av farlig avfall som impregnerte trevirke, EE-avfall og lysstoffrør

Miljøsanering i henhold til forskrifter for riving av eksisterende bygg

VVS Sanitærinstallasjoner

Utførelse av sanitærinstallasjoner og tilhørende rørsystemer

Sanitærinstallasjoner for pumpestasjonens drift

Ventilasjon Ventilasjons- og klimainstallasjoner

Prosjektering og utførelse av ventilasjon og klimainstallasjoner for luftmengde inntil 2000 m3/h

Ventilasjons- og klimainstallasjoner for pumpestasjon

Grunnarbeid Grunnarbeider for pumpestasjon og sjøledning

Grunnarbeider i forbindelse med etablering av utvendig VA anlegg og ny pumpestasjon, inkludert graving i sjø og på land for sjøledning

Grunnarbeider for ny pumpestasjon og sjøledning, inkl. graving og VA-installasjoner

Terrasse Asfalt og plen

🧱 Asfalt, plen

Opparbeidelse av snu- og parkeringsareal med asfalt og plen, inkl. armert gress for vendeareal

Utomhusarealer med asfalt og plen, tilpasset driftskjøretøy

Elektro El-installasjoner og nødstrøm

El-installasjoner inkludert nødstrømtilkobling

Elektriske installasjoner for drift og nødstrøm i pumpestasjon

Fasade Trefasade med hvit puss og naturstein

🧱 Tre, naturstein, hvit puss

Antall: 1

Fasader med krumme vegger, brystning av skifer i smale striper, hvit pusset overflate, gesimshøyde 5,23 m

Fasade i tre med naturstein og hvit puss, tilpasset bevaringsverdige nabobygninger

VVS Vann- og avløpsanlegg

Etablering av utvendig vann- og avløpsanlegg, inkludert sjøledning på 885 m

Vann- og avløpsanlegg for pumpestasjon og sjøledning

Grunnarbeid Drenering

Dreneringsrenne langs bygget og åpen løsning for overvannshåndtering

Overvannshåndtering rundt pumpestasjon

Betong Plasstøpte betongkonstruksjoner

🧱 Betong

Utførelse av plasstøpte betongkonstruksjoner for pumpestasjon

Betongkonstruksjoner for fundament og konstruksjon av pumpestasjon

Solceller Solcellepaneler på tak

Solcellepaneler med minimum helning på taket

Solcellepaneler montert på tak for energiforsyning

Tak Flatt tak med takpapp

🧱 Takpapp

Antall: 1

Flatt tak med takpapp og beslag i blikk

Flatt tak med takpapp og beslag i blikk

Mur Murarbeid

🧱 Murmaterialer

Utførelse av murarbeid i pumpestasjon

Murarbeid i pumpestasjonens konstruksjon

Maling Innvendig og utvendig maling

🧱 Maling

Innvendig og utvendig maling av pumpestasjon, hvit puss på fasade

Maling og puss på fasader og innvendige flater

Dører Ytterdører

🧱 Tre eller metall

Antall: 2

To dører på nordfasade

To ytterdører for adgang til teknisk rom

Tømrer Tømrerarbeid

🧱 Tre

Utførelse av tømrerarbeid i pumpestasjon

Tømrerarbeid for bygging av pumpestasjonens overbygg

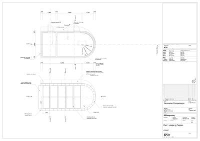
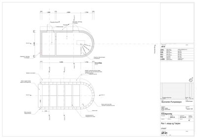
Plantegning

Skonnerten Pumpestasjon 31.0 m²

Etasje 1 31.0 m²

Rom Areal Vinduer Dører
Teknisk rom 0 31.0 m² 0 0

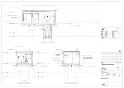
Fasader

Pumpestasjon

Vest
Materiale
Tre
Taktype
Flatt tak
Høyde
5.2 m
Mønehøyde
5.2 m
Vinduer
0
Dører
0
Synlige etasjer
1
Sør
Materiale
Tre
Taktype
Flatt tak
Høyde
5.2 m
Mønehøyde
5.2 m
Vinduer
0
Dører
0
Synlige etasjer
1
Nord
Materiale
Tre
Taktype
Flatt tak
Høyde
5.2 m
Mønehøyde
5.2 m
Vinduer
0
Dører
2
Synlige etasjer
1
Øst
Materiale
Tre
Taktype
Flatt tak
Høyde
5.2 m
Mønehøyde
5.2 m
Vinduer
0
Dører
0
Synlige etasjer
1

Hendelser

21.04.2026 39/1935 Sonja Henies vei 9 - Ferdigattest - riving og etalering ny pumpestasjon
08.04.2026 39/1935 Sonja Henies vei 9 - Søknad om ferdigattest ferdigattest
25.03.2026 39/1935 Rammetillatelse - Riving og etablering av ny pumpestasjon - Manglende ferdigattest ferdigattest
27.09.2022 39/1935 Midlertidig brukstillatelse - Riving og etablering av ny pumpestasjon midlertidig_brukstillatelse
09.09.2022 39/1935 Søknad om midlertidig brukstillatelse - Riving og etablering av ny pumpestasjon rammetillatelse
11.02.2021 39/1935 Søknad om igangsettingstillatelse - Riving og etablering av ny pumpestasjon igangsettingstillatelse
04.12.2020 39/1935 Igangsettingstillatelse 2 - Riving og etablering av ny pumpestasjon igangsettingstillatelse
02.12.2020 39/1935 Søknad om igangsettingstillatelse - Riving og etablering av ny pumpestasjon igangsettingstillatelse
21.10.2020 39/1935 Innvilger søknad om samtykke - Riving og etablering av ny pumpestasjon søknad
13.10.2020 39/1935 Melding om saksbehandlingstid - Riving og etablering av ny pumpestasjon
08.10.2020 39/1935 Igangsettingstillatelse 1 - Riving og etablering av ny pumpestasjon igangsettingstillatelse
28.09.2020 39/1935 Søknad om igangsettingstillatelse - Riving og etablering av ny pumpestasjon igangsettingstillatelse
02.09.2020 39/1935 Uttalelse - Riving og etablering av ny pumpestasjon
27.08.2020 39/1935 Rammetillatelse - Riving og etablering av ny pumpestasjon rammetillatelse
15.07.2020 39/1935 Ber om utsatt frist for uttalelse - Riving og etablering av ny pumpestasjon
10.07.2020 39/1935 Anmodning om uttalelse - Etablering av sjøledning til pumpestasjon - Riving og etablering av ny pumpestasjon
06.07.2020 39/1935 Etablering av sjøledning til pumpestasjon - Riving og etablering av ny pumpestasjon
22.06.2020 39/1935 Anmodning om uttalelse - Etablering av sjøledning til pumpestasjon
25.05.2020 39/1935 Kvitteringsbrev - Riving og etablering av ny pumpestasjon
25.05.2020 39/1935 Søknad om rammetillatelse - Riving og etablering av ny pumpestasjon rammetillatelse