NewConstruction Igangsettingstillatelse Naeringsbygg

Nytt næringsbygg med lager og kontor i Storsandvegen 36

📍 Storsandvegen 36 , 7224 MELHUS

Nøkkelinfo

Sakstype
Nybygg
Bygningstype
Naeringsbygg
Bruksareal
728 m²
Kommune
Melhus
Fylke
Trøndelag - Trööndelage
Gnr / Bnr
90 / 142
Saksnummer
2024/1008
Fase
Igangsettingstillatelse

Om byggesaken

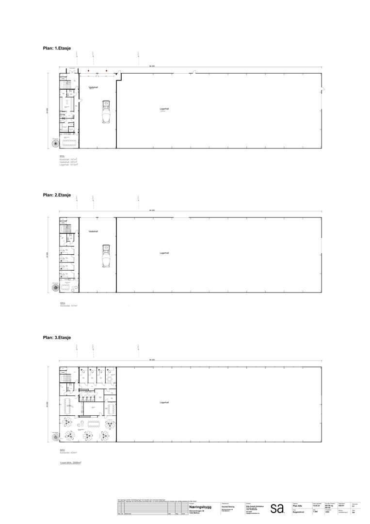
Nytt næringsbygg på totalt ca. 728 m² BRA fordelt på tre etasjer med lagerhall, vaskehall og kontorarealer. Bygget har en gesimshøyde på 12,2 m og mønehøyde på 13,7 m, med dispensasjon fra høydebestemmelsene. Første etasje inneholder vaskehall (28,7 m²), lagerhall (157,3 m²) og kontorer, samt toaletter og korridorer. Bygget har 3 trapper og er oppført med betongkonstruksjoner, stålkonstruksjoner, trekonstruksjoner, taktekking, ventilasjon, elektro, VVS og brannalarm. Det er etablert oljeutskiller for vaskehallens avløpsvann. Utomhusanlegg inkluderer parkeringsplasser i henhold til reguleringsplan. Bygget er planlagt og prosjektert av Silje Asbøll Arkitektur AS og Gauldal Betong AS, med flere ansvarlige foretak for utførelse og kontroll. Midlertidig brukstillatelse er gitt for deler av bygget, og ferdigattest søkes i 2027.

Produkter og materialer

Tømrer Trekonstruksjoner og montering

Tømrerarbeid og montering av trekonstruksjoner

Innvendige og utvendige trekonstruksjoner i bygget

Dører Ytterdører og innvendige dører

Antall: 27

Ytter- og innvendige dører i næringsbygg

Dører til kontorer, lager, vaskehall, toaletter og korridorer

Elektro Brannalarm og ledelys

Brannalarm og ledelys prosjektert og utført av SOKNA ELEKTRO AS

Brannalarmsystem og ledelys i hele bygget

Maling Innvendig og utvendig maling

Innvendig og utvendig maling av bygningsdeler

Maling av vegger, tak og fasade der relevant

Gulv Betonggulv og overflater

Betonggulv i lagerhall og vaskehall, kontor med standard overflater

Gulv i lager, vaskehall og kontorarealer

Stål Stålkonstruksjoner og kledning

Stålkonstruksjoner og kledning for næringsbygg

Stålkonstruksjoner og kledning for lager- og kontorbygg

Grunnarbeid Grunnarbeid og utvendig VA

Grunnarbeid og utvendig vann- og avløpsarbeid utført av Joda Anlegg AS

Grunnarbeid, drenering og tilknytning til kommunalt VA-nett

Heis Løfteinnretninger

Antall: 1

Løfteplattform/heis installert av Heis-Gruppen AS

Løfteinnretning/heis for etasjeadkomst

VVS Sanitær og oljeutskiller

Oljeutskiller ACO Oleopator C 6/1200, sanitærinstallasjoner for vaskehall og kontor

VVS-installasjoner inkludert oljeutskiller for vaskehallens avløpsvann

Ventilasjon Ventilasjonsanlegg

Ventilasjonsanlegg prosjektert og utført av S Moe AS

Ventilasjon for lager, vaskehall og kontorarealer

Trapper Innvendige og utvendige trapper

Antall: 3

3 trapper, inkludert midlertidig og permanent rømningstrapp

Trapper for rømningsveier og etasjeadkomst

Tak Taktekking

Taktekking for næringsbygg

Taktekking for lager- og kontorbygg

Betong Råbygg og fundamenter

Betongarbeid for lagerhall, vaskehall og kontorbygg

Betongkonstruksjoner for råbygg, fundamenter og midlertidig og permanent rømningstrapp

Vinduer Fasadevinduer

Antall: 4

Vinduer i kontorarealer, 4 stk

Fasadevinduer i kontorrom i 1. og 2. etasje

Annet Utomhusanlegg og parkering

Parkeringsplasser og utomhusanlegg i henhold til reguleringsplan

Opparbeidelse av parkeringsplasser og utomhusarealer rundt bygget

Plantegning

Næringsbygg 728.0 m²

Etasje 1 147.0 m²

Rom Areal Vinduer Dører
Vaskehall 101 28.7 m² 0 2
Lagerhall 102 157.3 m² 0 1
Kontor 103 14.0 m² 0 1
Toalett 104 4.0 m² 0 1
Korridor 105 3.0 m² 0 2
Kontor 106 8.0 m² 1 1
Kontor 107 8.0 m² 1 1
Toalett 108 2.0 m² 0 1
Toalett 109 2.0 m² 0 1
Korridor 110 2.0 m² 0 2

Etasje 2 147.0 m²

Rom Areal Vinduer Dører
Vaskehall 201 28.7 m² 0 2
Lagerhall 202 157.3 m² 0 1
Kontor 203 14.0 m² 0 1
Toalett 204 4.0 m² 0 1
Korridor 205 3.0 m² 0 2
Kontor 206 8.0 m² 1 1
Kontor 207 8.0 m² 1 1
Toalett 208 2.0 m² 0 1
Toalett 209 2.0 m² 0 1
Korridor 210 2.0 m² 0 2

Etasje 3 434.0 m²

Rom Areal Vinduer Dører
Kontor 301 434.0 m² 0 1
Kontor 302 434.0 m² 0 3

Hendelser

08.04.2026 Midlertidig brukstillatelse - - - 90/142 - Storsandvegen 36
24.03.2026 Storsandvegen 38 Supplering av søknad 90/142
25.12.2025 Godkjent Midlertidig brukstillatelse - Nytt bygg - Næringsbygg - Storsandvegen 36, gnr/bnr 90/142
19.11.2025 Storsandvegen 38 Supplering av søknad 90/142
18.11.2025 Storsandvegen 38 Supplering av søknad 90/142
29.10.2025 Mangelbrev - anmodning om tilleggsinformasjon - Midlertidig brukstillatelse - Nytt næringsbygg - Storsandvegen 36, gnr/bnr 90/142
24.10.2025 Midlertidig brukstillatelse - - - 90/142 - Storsandvegen 36
20.10.2025 Ber om innsyn i 2024/1008-10
20.10.2025 Ber om innsyn i 2024/1008-4
20.10.2025 Svar - Ber om innsyn i 2024/1008-20
20.10.2025 Svar - Ber om innsyn i 2024/1008-13
20.10.2025 Ber om innsyn i 2024/1008-18
16.10.2025 Ber om innsyn i 2024/1008-20
16.10.2025 Ber om innsyn i 2024/1008-10
16.10.2025 Ber om innsyn i 2024/1008-4
16.10.2025 Ber om innsyn i 2024/1008-18
16.10.2025 Ber om innsyn i 2024/1008-13
02.07.2025 Godkjent Søknad om igangsettelse IG2 - resterende arbeider - Nytt bygg - næringsbygg - Storsandvegen 36, gnr/bnr 90/142
02.07.2025 Storsandvegen 38 Supplering av søknad 90/142
15.05.2025 Bekreftelse på mottatt søknad - Søknad om igangsettelse - Nytt bygg - ikke boligformål over 70 m² - gbnr 90/142
12.05.2025 Søknad om igangsettelse - - 90/142 -
16.01.2025 Godkjent Søknad om igangsettelse IG1 - Grunnarbeid, VA og oppsetting av råbygg - Storsandvegen 36, gnr/bnr 90/142 og 90/156
31.12.2024 Storsandvegen 38 Supplering av søknad 90/142
11.12.2024 Svar/Mangelbrev - Søknad om igangsettelse - Nytt bygg - Næringsbygg - Storsandvegen 36 g/bnr 90/142
06.12.2024 Storsandvegen 38 Supplering av søknad 90/142
13.11.2024 Svar/Mangelbrev - Søknad om igangsettelse - Næringsbygg - Storsandvegen 36, g/bnr 90/142
28.10.2024 Storsandvegen 38 Supplering av søknad 90/142
21.10.2024 Storsandvegen 38 Supplering av søknad 90/142
18.10.2024 Mangelbrev - anmodning om tilleggsinformasjon - Søknad om igangsettelse IG1 - Nytt næringsbygg, gnr/bnr 90/142
23.09.2024 Storsandvegen 38 Supplering av søknad 90/142
12.09.2024 Mangelbrev - anmodning om tilleggsinformasjon - Søknad om igangsettelse IG1 - Nytt næringsbygg - gnr/bnr 90/142 og 90/156
02.09.2024 Storsandvegen 38 Supplering av søknad 90/142
28.08.2024 Mangelbrev - Søknad om igangsettelse IG1- Nytt næringsbygg - gnr/bnr 90/142 og 90/156
08.08.2024 Søknad om igangsettelse - 90/142
06.08.2024 Godkjent Rammesøknad - Nytt bygg - Industribygg/kontor, gnr/bnr 90/142 og 90/156
06.08.2024 90/142 Vi innvilger søknaden om samtykke etter automatisk saksbehandling
02.08.2024 Godkjenning av dispensasjonssøknad - bygging av nytt næringsbygg - Storsandvegen 38 - gbnr.90/142 og 90/156
14.06.2024 NVEs uttalelse til høring - Dispensasjonssøknad for oppføring av nytt næringsbygg - Gnr. 90 bnr. 142, Storsandvegen 38 - Melhus kommune
07.06.2024 Anmodning om uttalelse - Dispensasjonssøknad for oppføring av nytt næringsbygg - gbnr 90/142 - Storsandvegen 38
27.05.2024 Søknad om dispensasjon - Nytt bygg - næringsbygg - Storsandvegen 38, g/bnr 90/142
29.04.2024 Svar - Ber om innsyn i 2024/1008-4
24.04.2024 Ber om innsyn i 2024/1008-4
16.04.2024 Rammesøknad - Nytt bygg - ikke boligformål over 70 m² - gnr/bnr90/142 - Storsandvegen 38
29.02.2024 Referat fra forhåndskonferanse - nybygg næringsbygg - g/bnr 90/156 og 90/142
22.02.2024 Møtebekreftelse - Forhåndskonferanse
13.02.2024 Timebestilling av forhåndskonferanse i byggesak