NewConstruction Ferdigattest Naeringsbygg

Ny fabrikk og tilbygg på Tusvik Industriområde og bolig på Myrseth, Sykkylven

Nøkkelinfo

Sakstype
Nybygg
Bygningstype
Naeringsbygg
Bruksareal
1,065 m²
Kommune
Sykkylven
Fylke
Møre og Romsdal
Saksnummer
2026/747
Fase
Ferdigattest

Om byggesaken

Prosjektet omfatter oppføring av en ny fabrikkbygning på ca. 325 m² og et kaldlager på 200 m² på Tusvik Industriområde, samt senere tilbygg på ca. 240 m² lagerareal. Fabrikkbygget er oppført med betongelementer og spennbetong, med krav til brannisolasjon og ventilasjon. Det er gitt dispensasjon fra krav om tilfluktsrom grunnet få ansatte. I tillegg inngår en bolig på Myrseth med et samlet bruksareal på ca. 175 m², fordelt på to etasjer med flere rom, balkong og garasje. Boligen har saltak med teglstein og tre som fasademateriale. Det foreligger også rehabilitering av skorstein på fritidsbolig i området. Alle tiltak har gjennomgått nødvendig godkjenning, kontroll og ferdigattest.

Produkter og materialer

Dører Ytterdører og port

🧱 Tre og metall

Antall: 8

Brannklassifiserte dører B-30, brannskyveport A-60

Ytterdører og porter til fabrikk og bolig, inkludert brannklassifiserte dører

Pipe Rehabilitering av skorstein

🧱 Betongstein, syrefaste stålrør

Antall: 2

Ny røkkanal i skorstein med syrefaste stålrør Ø150 mm, ny sotluke og bunnstøp

Rehabilitering av skorstein på fritidsbolig

Grunnarbeid Fundamentering og drenering

Bankett/såle fundamentering, drenering med rør, overvann til offentlig system

Grunnarbeid for fabrikk og bolig

Garasjeport Port til bolig

Antall: 1

Garasjeport til bolig

Garasjeport i boligfasade

VVS Sanitæranlegg

Vannklosett, bad, vaskerom med ventilasjon og oppvarming

Sanitæranlegg for fabrikk og bolig

Vinduer Isolerglassvinduer

🧱 Tre/aluminium ramme

Antall: 14

2-lags isolerglass, naturbehandlet aluminiumramme

Vinduer til bolig og fabrikk, inkludert fasadevinduer og takvinduer

Ventilasjon Mekanisk ventilasjon

Mekanisk ventilasjon i fabrikk og bolig, med friskluft- og avtrekksventiler

Ventilasjonssystem for arbeids- og personalrom

Fasade Trepanel

🧱 Tre

Tre som fasademateriale på bolig, saltak med teglstein

Trepanel for boligfasader med saltak teglstein

Tak Saltak med teglstein

🧱 Teglstein

Saltak med teglstein som takmateriale på bolig

Taktekking med teglstein på bolig

Trapper Innvendig trapp

Antall: 1

Innvendig trapp i bolig, branntrygg og røykfri

Innvendig trapp i bolig

Gulv Betonggulv og vannbåren varme

Betonggulv på grunn, vannbåren gulvvarme i bolig

Gulv med betong og vannbåren varme

Elektro Elektrisk oppvarming

Elektrisk oppvarming med panelovner og varmekabler

Elektrisk oppvarming i bolig og fabrikk

Terrasse Balkong

🧱 Tre

Antall: 1

Balkong i tre på bolig

Balkong til bolig

Betong Prefabrikkerte betongelementer

🧱 Spennbetong C35

Elementer levert og montert av Vestlandske Spennbetong A/S, med bolter og ståldetaljer i kvalitet ST 37

Betongelementer for fabrikkbygning og tilbygg, inkludert fundamentering og ringmur

Brannvern Brannslanger og brannisolasjon

Brannslanger, brannisolerte vegger og dører, branntrygg bygning

Brannsikringstiltak i fabrikk og bolig

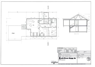
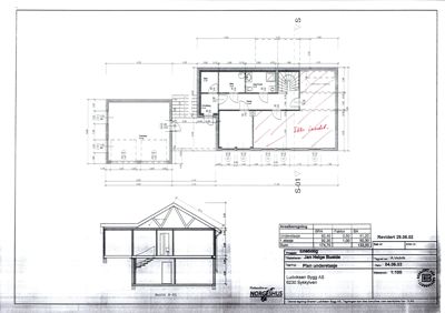
Plantegning

Enebolig 92.3 m²

Etasje 1 92.3 m²

Rom Areal Vinduer Dører
Stue 101 35.5 m² 1 1
Kjøkken 102 14.4 m² 0 1
Gang 103 7.5 m² 0 2
Vindfang 104 4.1 m² 0 1
Bod 105 4.8 m² 0 1
Sov.1 106 13.3 m² 1 1
Bad/vask 107 3.2 m² 0 1
TK.Rom 108 2.2 m² 0 1
Gang 1 0.0 m² 0 1
Stue 2 0.0 m² 1 1
Sove 3 0.0 m² 1 1
Sove 4 0.0 m² 1 1
Sove 5 0.0 m² 1 1
Bad 6 0.0 m² 0 1
Vaskerom 7 0.0 m² 1 1
Kjøkken 8 0.0 m² 1 1

Fasader

Enebolig

Sør
Materiale
Tre
Taktype
Saltak
Takmat.
Tegl
Vinduer
9
Dører
1
Balkonger
1
Synlige etasjer
2
Øst
Materiale
Tre
Taktype
Saltak
Takmat.
Tegl
Vinduer
1
Dører
1
Balkonger
1
Synlige etasjer
2
Nord
Materiale
Tre
Taktype
Saltak
Takmat.
Tegl
Vinduer
3
Dører
1
Balkonger
1
Synlige etasjer
1
Vest
Materiale
Tre
Taktype
Saltak
Takmat.
Tegl
Vinduer
3
Dører
1
Balkonger
1
Synlige etasjer
2

Hendelser

15.04.2026 65/39 - Byggsaksmappe
15.04.2026 53/17 - Byggsaksmappe
25.03.2026 45/8 - Oversending - Byggesak
25.03.2026 53/4 - Oversending - Byggesak