NewConstruction Igangsettingstillatelse Naeringsbygg

Oppføring av hotell, konferansesenter og kontorbygg i Jacob Borchs gate 11-21, Drammen

📍 Transformatorgata 10 , 3012 DRAMMEN

Nøkkelinfo

Sakstype
Nybygg
Bygningstype
Naeringsbygg
Bruksareal
18,127 m²
Kommune
Drammen
Fylke
Buskerud
Gnr / Bnr
113 / 1187
Saksnummer
22/29978
Fase
Igangsettingstillatelse

Om byggesaken

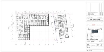
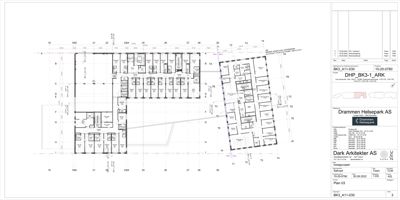
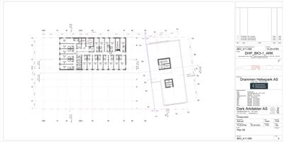
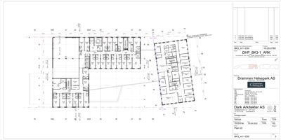
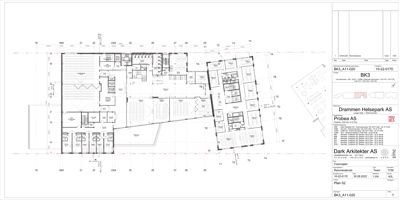
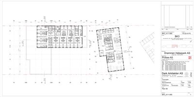
Prosjektet omfatter oppføring av hotell, konferansesenter, kontor- og tjenesteytingsbygg på eiendommen Gnr 113, Bnr 1187 i Drammen. Bygg BK3-1 inkluderer hotell og konferansesenter, mens BK3-2 består av kontor- og tjenesteytingslokaler med butikklokaler i 1. etasje. Totalt areal for BK3 er ca. 18 127 m² BRA, med tillegg av deler av felt BKB4 for kontor og tjenesteyting. Byggene har varierte fasader i tegl, glass og metall, og grønne tak med intensiv, semi-intensiv og ekstensiv vegetasjon, inkludert takterrasser med møbler og belysning. Prosjektet inkluderer omfattende grunnarbeider med spunt, utgraving og håndtering av forurensede masser, samt avansert overvannshåndtering. Det er etablert parkeringsløsninger med ca. 380 bilplasser i kjeller og 753 sykkelplasser, hvorav minst 50 % er innendørs eller under terreng. Byggene har universell utforming med heiser, HC-toaletter og trinnfri atkomst. Tekniske installasjoner omfatter ventilasjon, sanitær, varme- og kjøling, brannvern, elektrisk anlegg, heiser og løfteinnretninger. Midlertidig varemottak og avfallshåndtering er etablert på tilstøtende felt BKB2. Prosjektet har mottatt nødvendige rammetillatelser, igangsettingstillatelser i flere trinn, samt midlertidige brukstillatelser for infrastruktur og anleggsveier.

Produkter og materialer

Sykkelparkering Sykkelstativer med overbygg, lading og verksted

Antall: 753

Minst 50 % av sykkelparkering er innendørs eller under terreng, inkludert 10 % store plasser for laste- og familiesykler

Sykkelparkering med tilhørende fasiliteter

Bilparkering Underjordisk parkeringskjeller med HC-plasser

Antall: 380

Ca. 380 bilplasser i kjeller, inkludert 20 HC-plasser, med maks 15 plasser for besøkende ved BKB3

Bilparkering i parkeringskjeller

Løfteinnretninger Person- og brannheiser

🧱 Heiser fra Kone

Personheiser og brannheiser sertifisert etter NS-EN 81-20 og NS-EN 81-72, med sluttkontrollsertifikater

Heiser for person- og brannredning i byggene

Fasade Glass- og metallfasade

🧱 Glass, metall (Tecu bronze), tre

Glass- og metallfasade med metallkledning Tecu bronze eller tilsvarende, med innslag av tre for kobling mellom hotell og kontorbygg

Fasadeelementer i glass og metall med treinnslag

Gulv Betonggulv og terrassedekke

🧱 Betong, naturstein

Betonggulv i kjeller og øvrige etasjer, terrassedekke med heller og naturstein benk

Innvendige og utvendige gulvflater

Tak Grønne tak og takterrasser

🧱 Vegetasjon (sedum, eng, stauder, busker, trær), vekstmedium 10-100 cm, tre, glass, belysning

Intensive, semi-intensive og ekstensive grønne tak, takterrasser med sittekanter, benker i tre, pergola, glassdekket støyskjerm 120 cm høy, belysning tilpasset insekts- og dyreliv

Grønne tak med variert vegetasjon og oppholdsarealer med møbler og belysning

Betong Plasstøpte betongkonstruksjoner og prefab betongelementer

🧱 Betong

Prosjektert og utført av Loe Betongelementer AS, inkludert bærende vegger, dekker og lastoverføring

Betongkonstruksjoner for råbygg og kjeller

Fasade Teglbekledning

🧱 Petersen Tegl Cover C22, Cover C71, Wienerberger Terca-Wasserstrich Special Ecru, Moeding glasert skjermtegl, EW2162 Avignon, Superwhite

Fasadebekledning i tegl for hotell hovedvolum, sidevolum og kontorbygg, inkludert glasert skjermtegl i fargene RAL 3004 purple red og NCS S1030-Y

Teglfasader i ulike farger og typer for hovedvolumer og sidevolumer

Slukkeinstallasjoner Sprinkleranlegg

Prosjektert og utført av Assemblin AS

Sprinkler- og slukkeinstallasjoner i byggene

Landskap Utomhusplan, vegetasjon og beplantning

🧱 Sedum, eng, stauder, busker, trær

Landskapsutforming med vekstmedium 10-100 cm, takterrasser med minimum 20 % beplantning, utearealer med belysning og universell utforming

Utomhusarealer med variert vegetasjon og tilrettelegging for opphold

Tømrer Tømrerarbeid og trekonstruksjoner

Utført av Strøm Gundersen AS

Tømrerarbeider og montering av trekonstruksjoner

Rekkverk Glassrekkverk og støyskjerm på takterrasser

🧱 Glass

Tett støyskjermende glassskjerm og rekkverk høyde 100-120 cm på takterrasser

Sikkerhetsrekkverk og støyskjerming på takterrasser

Grunnarbeid Oppfylling og overvannsledninger

🧱 4-16 mm pukk, veioppbyggingsmasser, PE-ledninger, betongkummer, sandfang

Oppfylling for sikring av overvannsledning ø1600, overvannsledninger i Fjordbygata og Nøstebekkveien med kummer, sandfang, drensledninger og mengderegulatorer

Grunnarbeider for overvannshåndtering og veioppbygging

VVS Fjernvarmetilknytning

Fjernvarme tilknytning for energiforsyning i henhold til konsesjon etter energiloven

Energiforsyning til byggene via fjernvarme

Brannvern Branntetting, brannisolering og brannalarmanlegg

Utført av Vestfold Brannvern AS og Sweco Norge AS, brannalarmanlegg installert av PowerTech AS

Brannsikkerhetstiltak i byggene

Sanitær Sanitærinstallasjoner

Prosjektert og utført av EM Teknikk AS og Erichsen & Horgen AS

Sanitærinstallasjoner i byggene

Mur Murarbeid

Utført av Mjøndalen Mur & Puss AS

Murarbeider i byggene

Ventilasjon Ventilasjon- og klimainstallasjoner

Prosjektert og utført av EM Teknikk AS og Rambøll Norge AS

Ventilasjons- og klimainstallasjoner for byggene

Elektro Elektrisk anlegg, brannalarm, nødlys og ledesystem

Prosjektert av Rambøll Norge AS, utført av Strøm Gundersen AS og Hedengren Security AS

Elektriske installasjoner inkludert brannalarmanlegg og nødlys

Fasader

Bygg 3-1

Sør
Materiale
Tre
Taktype
Flatt tak
Høyde
30.2 m
Vinduer
24
Dører
2
Synlige etasjer
10
Vest
Materiale
Tre
Taktype
Flatt tak
Høyde
30.2 m
Vinduer
24
Dører
2
Synlige etasjer
10
Sydøst
Materiale
Tre
Høyde
36.2 m
Vinduer
24
Dører
1
Synlige etasjer
8
Sydvest
Materiale
Tre
Høyde
36.2 m
Vinduer
24
Dører
1
Synlige etasjer
8

Bygg 3-2

Sydøst
Materiale
Tegl
Høyde
38.4 m
Mønehøyde
42.9 m
Vinduer
16
Dører
1
Synlige etasjer
10

Hendelser

14.04.2026 BKB3/BKB2, Drammen helsepark, søknad om midlertidig brukstillatelse
26.03.2026 BKB3/BKB2, Drammen helsepark, avklaring av midlertidig brukstillatelse for o_SGS1
25.03.2026 BKB3/BKB2, Drammen helsepark, svar angående o_SGS3
20.03.2026 BKB3/BKB2, Drammen helsepark, Jacob Borchs gate 11-21 og Tranformatorgata 6, etterlyser svar på spørsmål vedr.rekkefølgekrav - DHP BK3
05.03.2026 BKB3/BKB2, Drammen helsepark, Jacob Borchs gate 11-21 og Tranformatorgata 6 - Spørsmål vedr. rekkefølgekrav
27.11.2025 BKB3/BKB2, Drammen helsepark, Jacob Borchs gate 11-21 og Tranformatorgata 6, DHP BK3 - Supplering ifm. oppdatert samtykke fra Arbeidstilsynet
27.11.2025 BKB3/BKB2, Drammen helsepark, Jacob Borchs gate 11-21 og Tranformatorgata 6, kopi: Vi innvilger søknaden om samtykke etter automatisk saksbehandling
28.05.2025 BKB2/BKB3 Jacob Borchs gate 11-21 og Tranformatorgata 6, svar på henvendelse om endring av midlertidig vareleveringsløsning
21.05.2025 BKB3/BKB2, Drammen helsepark, Jacob Borchs gate 11-21 og Tranformatorgata 6, henvendelse om midlertidig vareleveringsløsning - DHP BK3 (gnr/bnr. 113/1189, sak nr. 22/29978)
13.01.2025 BKB3/BKB2, Drammen helsepark, Jacob Borchs gate 11-21, igangsettingstillatelse nr. 3 for resterende arbeider
23.12.2024 Drammen helsepark, BK3, Jacob Borchs gate 11-21 og Tranformatorgata 6, Søknad om igangsetting nr. 3
12.11.2024 BKB3/BKB2, Drammen helsepark, Jacob Borchs gate 11-21 og Tranformatorgata 6, igangsettingstillatelse nr. 2 for oppføring av bygg, fasade og tekniske installasjoner i kjeller
09.11.2024 BKB3/BKB2, Drammen helsepark, Jacob Borchs gate 11-21 og Tranformatorgata 6, melding om mottatt søknad
29.10.2024 BKB3/BKB2, Drammen helsepark, Jacob Borchs gate 11-21 og Tranformatorgata 6, Søknad om igangsettingstillatelse nr. 2 – Drammen helsepark, BK3
28.10.2024 BKB3/BKB2, Drammen helsepark, Jacob Borchs gate 11-21 og Tranformatorgata 6, Kopi: Vi innvilger søknaden om samtykke etter automatisk saksbehandling
24.09.2024 BKB3/BKB2, Drammen helsepark, igangsettingstillatelse til råbygg, bærende konstruksjoner
24.09.2024 BK3 BKB3/BKB2, drammen helsepark, Søknad om igangsetting nr. 1 samt søknad om endring av gitt tillatelse, spm. om dette legges i Interaxo
19.09.2024 BKB3/BKB2, Drammen helsepark, Supplerende materiale til søknad om igangsetting nr. 1 samt søknad om endring av gitt tillatelse
12.09.2024 BKB3/BKB2, vi trenger flere opplysninger for å behandle søknaden din
27.08.2024 BKB3/BKB2, melding om mottatt søknad
26.08.2024 BKB2/BKB3, Drammen helsepark, Søknad om igangsettingstillatelse nr. 1 og søknad om endring av gitt tillatelse
31.10.2023 Drammen helsepark, nye bygg BKB2, BKB3 og BKB4, nye adresser til Jacob Borchs gate og Transformatorgata
26.05.2023 BKB2/BKB3, Drammen helsepark, rammetillatelse for oppføring av hotell, konferansesenter, kontor- og tjenesteytingsbygg samt etablering av midlertidig varemottak og avfallshåndtering
22.05.2023 113/1187, Drammen helsepark BKB3, avstandserklæringer BK3 og BK4
10.05.2023 BKB3/BKB2, Drammen Helsepark, oppdaterte planer med permanent fortausløsning
20.03.2023 BKB3/BKB2, drammen helsepark, Svar på mangelbrev
07.02.2023 BKB3/BKB2, Drammen helsepark, Vi trenger flere opplysninger for å behandle søknaden din
02.02.2023 Drammen Helsepark, Reviderte søknadsblanketter
27.01.2023 BKB3/BKB2, drammen helsepark, presisering vedrørende midlertidig fortausløsning
26.01.2023 BKB3/BKB2, Drammen helsepark, oversending av dispensasjon fra krav om tilfluktsrom
06.01.2023 BKB3/BKB2, Drammen Helsepark, Supplerende utomhusplan
23.12.2022 BKB3/BKB2, drammen helsepark, Presisering av etterspurt dokumentasjon
21.12.2022 BKB3/BKB2, Vi må be om flere opplysninger for å behandle søknaden deres
08.12.2022 BKB3/BKB2, Drammen Helsepark, Supplerende dokumentasjon
05.10.2022 BKB3/BKB2, melding om mottatt søknad
04.10.2022 Søknad om tillatelse til tiltak - Drammen Helsepark felt BKB3 og deler av felt BKB2