NewConstruction UnderBehandling Naeringsbygg

Oppføring av næringsbygg for kontor og helsetjenester i Transformatorgata 10, Drammen

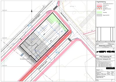
📍 Transformatorgata 10 , 3012 DRAMMEN

Nøkkelinfo

Sakstype
Nybygg
Bygningstype
Naeringsbygg
Bruksareal
24,517 m²
Kommune
Drammen
Fylke
Buskerud
Gnr / Bnr
113 / 1187
Saksnummer
25/43030
Fase
Under behandling

Om byggesaken

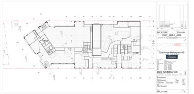
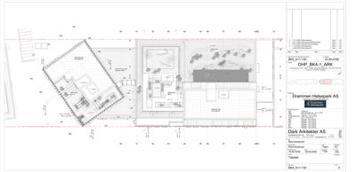
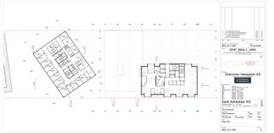
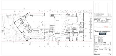
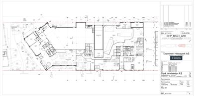
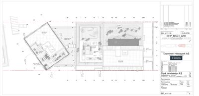
Prosjektet omfatter oppføring av to sammenkoblede næringsbygg, BK4.1 og BK4.2, i Drammen Helsepark, med et samlet bruksareal på ca. 24 517 m². BK4.1 er et 12-etasjers tårnbygg med fasade i tegl og metallplater, mens BK4.2 består av to volumer kledd med tegl i lyse nyanser, med opptil 10 etasjer. Byggene inneholder kontorer, helsetjenester, undervisning, bevertning, treningssenter og publikumsrettede funksjoner, inkludert en takterrasse med grønt tak og oppholdsarealer. Byggene plasseres oppå en eksisterende parkeringskjeller, og prosjektet inkluderer omfattende grunnundersøkelser med påvisning av forurenset grunn som skal håndteres i henhold til tiltaksplan. Det er etablert løsninger for overvann, renovasjon og tekniske installasjoner, samt krav til universell utforming, støy, og miljøoppfølging. Prosjektet har fått rammetillatelse med dispensasjon for korridorforbindelse mellom byggene.

Produkter og materialer

Vinduer Fasadevindu

🧱 Glass

Antall: 104

Store glassflater i fasade BK4-1, høye smale glassflater, curtain walls, lydisolasjon Rw+Ctr 41-43 dB.

Fasadevindu med høy lydisolasjon for kontor og møterom.

Trapper Innvendige trapper

🧱 Betong og stål

Antall: 2

Innvendige trapper i mesanin og øvrige plan, lydisolert med elastisk opplagring.

Innvendige trapper med lydisolasjon og universell utforming.

Kjøkken Kjøkkeninnredning

Kjøkken og storkjøkkenarealer i plan 1 og 4, med tilhørende tekniske installasjoner.

Kjøkkeninnredning og tilhørende tekniske løsninger.

VVS Varmepumpe

Varmepumpe inngår i VVS-installasjoner, med krav til vibrasjonsisolering.

Varmepumpe med vibrasjonsisolasjon.

Dører Ytterdører

🧱 Glass og metall

Antall: 2

Ytterdører i fasade BK4-1 og BK4-2, lydisolasjon Rw ≥ 38 dB for dørbindelse.

Ytterdører med lydisolasjon for kontor og publikumsarealer.

VVS Sanitær, sprinkling, ventilasjon, varme- og kuldeinstallasjoner

Omfattende VVS-installasjoner prosjektert av Rambøll Norge AS, inkl. sanitær, sprinkling, ventilasjon, varme- og kuldeinstallasjoner.

Tekniske installasjoner for sanitær, sprinkling, ventilasjon og varme/kulde.

Terrasse Takterrasse og uteoppholdsareal

🧱 Naturstein, tre, plantekasser

Takterrasse med natursteinbelegg, sittekanter i tre, pergola, plantekasser med sedum, eng, busker og trær.

Takterrasse med beplantning og møblering for opphold.

Bad Sanitærrom

Bad, dusj og toalettrom i ulike etasjer, med sanitærinstallasjoner.

Sanitærrom med dusj, toalett og vaskerom.

Stål Bæresystem

🧱 Stålramme

Stålrammesystem med hulldekke (HD) for bærende konstruksjon, tilrettelagt for demontering og ombruk.

Stålramme og hulldekke som bærende konstruksjon.

Fasade Tegl og metallplater

🧱 Tegl, metallplater

Fasader med keramiske tegl, skjermtegl, metallplater i lys gul og hvit tone, inkl. skalkfug for demontering.

Fasade med tegl og metallplater, tilpasset estetikk og ombruk.

Elektro Brannalarm og nødlys

Brannalarm og nødlys prosjektert av Rambøll Norge AS.

Brannalarm- og nødlysanlegg.

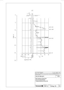
Grunnarbeid Massehåndtering og forurenset grunn

Tiltaksplan for forurenset grunn med håndtering av masser i ulike tilstandsklasser, inkl. farlig avfall, med krav til mellomlagring, transport og deponering.

Massehåndtering og miljøtiltak for forurenset grunn.

Ventilasjon Ventilasjonskanaler og lydfeller

Ventilasjonskanaler med lydfeller, vibrasjonsisolerte oppheng og kanalisolasjon.

Ventilasjonskanaler med lydisolasjon og vibrasjonsdemping.

Tak Grønne tak og takterrasse

🧱 Sedum, eng, stauder, busker, trær

Grønne tak med intensiv, semi-intensiv og ekstensiv vegetasjon, takterrasser med opphold, glassdekkede støyskjermer 1200 mm høyde.

Grønne tak og takterrasser med variert vegetasjon og støydemping.

Vinduer Fasadevindu

🧱 Glass

Antall: 12

Fasadevindu i BK4-2 med teglfasade, lydisolasjon Rw+Ctr 35-43 dB.

Fasadevindu med lydisolasjon for kontor og undervisning.

Annet Miljøoppfølgingsplan (MOP)

Miljøoppfølgingsplan med krav til energi, massehåndtering, overvåking, avfallshåndtering, støy og miljømål.

Miljøoppfølging og dokumentasjon i alle prosjektfaser.

Betong Kjeller og fundamenter

🧱 Betong

Eksisterende parkeringskjeller under bygg BK4.1 og BK4.2, dimensjonert for overliggende bebyggelse.

Betongkonstruksjoner for parkeringskjeller og fundamenter.

Maling Innvendig maling

Miljøvennlig maling med lav emisjon, dokumentert i miljøoppfølgingsplan.

Innvendig maling med dokumentert lav miljøpåvirkning.

Grunnarbeid Grunnundersøkelser

Omfattende grunnundersøkelser med totalsonderinger, trykksonderinger, prøvetaking og laboratorieanalyser. Påvist forurenset grunn med varierende tilstandsklasser, inkl. farlig avfall. Tiltaksplan for håndtering av forurensede masser.

Grunnundersøkelser og tiltaksplan for forurenset grunn, inkludert massehåndtering og overvåking.

Rekkverk Takterrasse rekkverk

🧱 Glass og stål

Glassdekkede støyskjermer og rekkverk på takterrasser, høyde 1200 mm, med stål- og treverkselementer.

Rekkverk og støyskjerming på takterrasser.

Gulv Parkett, teppe, fliser

🧱 Parkett, teppe, fliser

Parkett med 30-50 års levetid, teppe med easy release primer, fliser med fleksibelt lim, linoleum og vinyl med mulighet for ombruk.

Gulvbelegg med høy kvalitet og mulighet for ombruk.

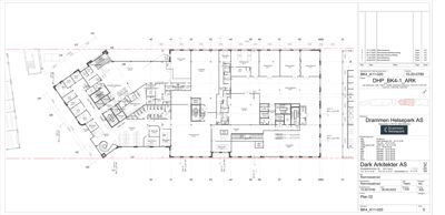
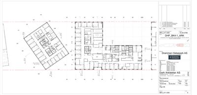
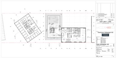
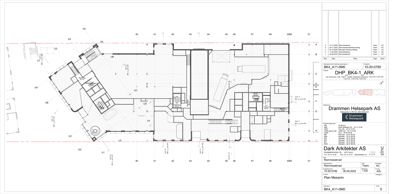
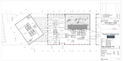
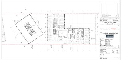
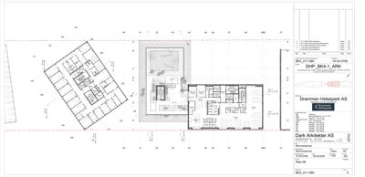
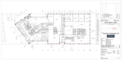
Plantegning

Plan Mesanin 2,260.0 m²

Etasje 0 0.0 m²

Rom Areal Vinduer Dører
Gang U1 12.5 m² 0 3
Gang U2 15.0 m² 0 2
Gang U3 18.0 m² 0 2
Gang U4 14.0 m² 0 2
Gang UA 10.0 m² 0 2
Gang UB 12.0 m² 0 2
Gang UC 16.0 m² 0 2
Gang UD 11.0 m² 0 2
Vaskerom U01 6.5 m² 0 2
Bad U02 8.0 m² 0 2
Toalett U03 3.5 m² 0 1
Teknisk rom U04 4.0 m² 0 1
Kjøkken U05 14.0 m² 1 2
Stue U06 35.0 m² 3 2
Spisestue U07 25.0 m² 2 2
Sovegang U08 12.0 m² 0 3
Soverom U09 14.0 m² 1 2
Soverom U10 13.0 m² 1 2
Soverom U11 12.0 m² 1 2
Soverom U12 11.0 m² 1 2
Bod U13 4.0 m² 0 1
Bod U14 3.5 m² 0 1
Bod U15 3.0 m² 0 1
Bod U16 2.5 m² 0 1
Bod U17 2.0 m² 0 1
Bod U18 1.5 m² 0 1
Bod U19 1.0 m² 0 1
Bod U20 0.5 m² 0 1
Gang 001 12.0 m² 0 2
Vaskerom 002 6.0 m² 0 1
Bad 003 8.0 m² 0 1
Teknisk rom 004 4.0 m² 0 1
Stue 005 35.0 m² 2 1
Spisestue 006 25.0 m² 2 1
Kjøkken 007 18.0 m² 1 1
Hovedsoverom 008 18.0 m² 1 1
Soverom 009 12.0 m² 1 1
Soverom 010 10.0 m² 1 1
Bad 011 6.0 m² 0 1
Gang 012 8.0 m² 0 2
Soverom UE 15.0 m² 1 2
Soverom UF 14.0 m² 1 2
Soverom UG 12.0 m² 1 2
Teknisk rom UH 8.0 m² 0 1
Gang UI 10.0 m² 0 2
Gang UJ 8.0 m² 0 2
Gang UK 6.0 m² 0 2
Gang UL 5.0 m² 0 2
Gang UM 4.0 m² 0 2
Gang UN 3.0 m² 0 2
Gang UO 2.0 m² 0 2
Gang UP 1.0 m² 0 2

Etasje 1 1,200.0 m²

Rom Areal Vinduer Dører
Inngang 101 12.0 m² 0 2
Gang 102 45.0 m² 0 4
Stue 103 65.0 m² 3 1
Spisestue 104 35.0 m² 2 1
Kjøkken 105 25.0 m² 1 1
Vaskerom 106 8.0 m² 0 1
Bad 107 10.0 m² 0 1
Toalett 108 4.0 m² 0 1
Soverom 1 109 15.0 m² 1 1
Soverom 2 110 14.0 m² 1 1
Soverom 3 111 13.0 m² 1 1
Soverom 4 112 12.0 m² 1 1
Soverom 5 113 11.0 m² 1 1
Soverom 6 114 10.0 m² 1 1
Teknisk rom 115 6.0 m² 0 1
Trapperom 116 15.0 m² 0 2
Rom 1 U1 0.0 m² 0 0
Rom 2 U2 0.0 m² 0 0
Rom 3 U3 0.0 m² 0 0
Rom 4 U4 0.0 m² 0 0
Rom 5 UA 0.0 m² 0 0
Rom 6 UB 0.0 m² 0 0
Rom 7 UC 0.0 m² 0 0
Rom 8 UD 0.0 m² 0 0

Etasje 3 1,060.0 m²

Rom Areal Vinduer Dører
Kommunikasjonsrom 41 34.0 m² 0 1
Komm.rom 42 15.0 m² 0 1
Komm.rom 43 15.0 m² 0 1
Komm.rom 44 15.0 m² 0 1
Komm.rom 45 18.0 m² 0 1
Kommunikasjonsrom 46 19.0 m² 0 1
IT-rom 47 12.0 m² 0 1
Rekvir.rom 48 7.0 m² 0 1
Kontor ansatte og forskere 49 51.0 m² 0 1
Gang 50 14.0 m² 0 2
Pauserom ansatte 51 25.0 m² 0 1
Kjøkkeningang 52 16.0 m² 0 1
Undervisningsrom 53 100.0 m² 0 1
Klasserom 54 50.0 m² 0 1
Trapp 55 20.0 m² 0 1
Vedlikehold 56 74.0 m² 0 1
Lager 57 30.0 m² 0 1
Teknisk 58 43.0 m² 0 1
Kontor/medisinsk 59 12.0 m² 0 1
Stillerom 60 8.0 m² 0 1
Personale 61 12.0 m² 0 1
Stillerom 62 8.0 m² 0 1
Sosial sone/klasserom 63 132.0 m² 0 1
Faste installasjoner 64 160.0 m² 0 1
Hørsal 65 19.0 m² 0 1
Bod 66 8.0 m² 0 1
IKT 67 9.0 m² 0 1
Trapp 68 20.0 m² 0 1
Bod 69 7.0 m² 0 1
Spisestue 70 120.0 m² 0 1

Etasje 10 0.0 m²

Rom Areal Vinduer Dører
0 U1 0.0 m² 0 0
0 U2 0.0 m² 0 0
0 U3 0.0 m² 0 0
0 U4 0.0 m² 0 0
0 UA 0.0 m² 0 0
0 UB 0.0 m² 0 0
0 UC 0.0 m² 0 0
0 UD 0.0 m² 0 0

Passasje takterrasse 0.0 m²

Etasje 3 0.0 m²

Rom Areal Vinduer Dører

Passasje 0.0 m²

Etasje 3 0.0 m²

Rom Areal Vinduer Dører
Takterrasse 0 0.0 m² 0 0

Fasader

Hovedbygg

Øst
Materiale
Tegl
Taktype
Flatt tak
Høyde
13.7 m
Mønehøyde
45.0 m
Vinduer
12
Dører
2
Synlige etasjer
10
Nord
Materiale
Tegl
Taktype
Flatt tak
Høyde
13.7 m
Mønehøyde
45.0 m
Vinduer
12
Dører
2
Synlige etasjer
10

BK4-1

Vest
Materiale
Glass
Taktype
Flatt tak
Høyde
13.0 m
Vinduer
104
Dører
0
Synlige etasjer
13
Sør
Materiale
Glass
Taktype
Flatt tak
Høyde
13.0 m
Vinduer
104
Dører
0
Synlige etasjer
13
Sydøst
Materiale
Glass
Taktype
Flatt tak
Høyde
13.0 m
Vinduer
104
Dører
0
Synlige etasjer
13
Syd
Materiale
Glass
Taktype
Flatt tak
Høyde
13.0 m
Vinduer
104
Dører
1
Synlige etasjer
13
Ukjent
Materiale
Betong
Taktype
Flatt tak
Høyde
22.0 m
Vinduer
48
Dører
1
Synlige etasjer
6
Nord
Materiale
Betong
Taktype
Flatt tak
Høyde
18.0 m
Vinduer
24
Dører
1
Synlige etasjer
6

BK3-1

Ukjent
Materiale
Betong
Taktype
Flatt tak
Høyde
14.0 m
Vinduer
24
Dører
1
Synlige etasjer
4

BK3-2

Ukjent
Materiale
Betong
Taktype
Flatt tak
Høyde
14.0 m
Vinduer
24
Dører
1
Synlige etasjer
4

BK4-3

Nord
Materiale
Betong
Taktype
Flatt tak
Høyde
18.0 m
Vinduer
24
Dører
1
Synlige etasjer
6

BK4-4

Nord
Materiale
Betong
Taktype
Flatt tak
Høyde
18.0 m
Vinduer
24
Dører
1
Synlige etasjer
6

BK4-5

Nord
Materiale
Betong
Taktype
Flatt tak
Høyde
18.0 m
Vinduer
24
Dører
1
Synlige etasjer
6

BK4-6

Nord
Materiale
Betong
Taktype
Flatt tak
Høyde
18.0 m
Vinduer
24
Dører
1
Synlige etasjer
6

Jacob Borchs Gate

Sør
Materiale
Betong
Taktype
Flatt tak
Høyde
12.0 m
Vinduer
24
Dører
1
Synlige etasjer
4

Hendelser

10.04.2026 Transformatorgata 10 m.fl., tegninger som vedlegg til rammetillatelse
26.03.2026 Transformatorgata 10 m.fl., Drammen Helsepark, rammetillatelse for oppføring av næringsbygg BK4.1 og BK4.2 for kontor og helsetjenester
18.02.2026 Transformatorgata 10 m.fl., Drammen Helsepark BK4, Svar på mangelbrev
27.01.2026 Transformatorgata 10 m.fl., Drammen Helsepark, vi trenger flere opplysninger for å behandle søknaden din
19.12.2025 Transformatorgata 10 m.fl., Drammen Helsepark, melding om mottatt søknad
18.12.2025 Transformatorgata 10 m.fl., Drammen Helsepark, næringsbygg BK4.1 og 4.2, Søknad om rammetillatelse