NewConstruction Avslatt Naeringsbygg

Ny energisentral i tidligere laboratoriebygg, Vaterlandsveien 25, Slemmestad

📍 Vaterlandsveien 23 , 3470 SLEMMESTAD

Nøkkelinfo

Sakstype
Nybygg
Bygningstype
Naeringsbygg
Bruksareal
570 m²
Kommune
Asker
Fylke
Akershus
Gnr / Bnr
238 / 543
Saksnummer
24/3868
Fase
Avslått

Om byggesaken

Etablering av en sjøvannsbasert energisentral i det tidligere laboratoriebygget i Vaterlandsveien 25, Slemmestad. Bygget er et verneverdig industribygg fra 1909 med høy/middels verneverdi, som skal ombygges til å romme teknisk utstyr som varmepumper, biokjeler, trafo og biooljetank. Omfattende bygningsmessige endringer planlegges, inkludert fjerning av etasjeskillere for å oppnå fri takhøyde på 5,5-6 meter, større porter for inntransport av maskiner, gjenmuring av vinduer og etablering av nye vindusåpninger. En pipe på 28 meter skal lede bort røykgass fra biokjeler, utformet med inspirasjon fra lokal industrihistorie. Energisentralen skal forsyne nye bolig- og næringsområder i Slemmestad med termisk energi fra sjøvann, og det planlegges publikumsrettet virksomhet i ca. 20 % av bygget med formidlingsrom og informasjonsskjermer. Utomhusarealer med gangsti, parkeringsplasser og plaza inngår i prosjektet. Prosjektet har fått delvis dispensasjon fra plankrav og høydebestemmelser, men er fortsatt under politisk og administrativ behandling.

Produkter og materialer

Trapper Innvendig trapp og utvendig trapp mellom nivåer

Antall: 1

Utvendig trapp mellom nivåer på østside, innvendig trapp i bygget

Trapper for adkomst og intern kommunikasjon

Grunnarbeid Grøfter for rørføringer, snusirkel for tunge kjøretøy

Grøfter for sjøvannsrør, varme- og kjølerør, snusirkel for tankbil og utstyr

Grunnarbeid for teknisk infrastruktur og logistikk

Ventilasjon Ventilasjonssystemer for tekniske rom

Ventilasjon for tekniske rom og maskinelt utstyr

Ventilasjon for driftssikkerhet og inneklima

Trafo Transformatorbygg med grunnflate 18 m²

Antall: 1

Trafo plassert i nordøst hjørne, utformet i tråd med laboratoriebyggets arkitektur

Transformatorbygg for energisentralen

Terrasse Utomhusplan med gangsti, parkeringsplasser og plaza

Utomhusplan under utarbeidelse, viser gangsti, parkeringsplasser, plaza og beplantning

Utomhusanlegg for energisentralens omgivelser

Dører Stor port 3,0 x 3,5 m for maskininntransport

Antall: 1

Port på sydvegg for inntransport av varmepumper og maskineri

Stor port for inntransport av teknisk utstyr

Elektro El-rom, kontrollrom, el-installasjoner

El-rom og kontrollrom i bygget, elektriske installasjoner for drift

Elektriske anlegg for energisentralen

VVS Nedgravd biooljetank

Antall: 1

Biooljetank under bakken, alternativt med grube

Tank for bioolje til spisslast

Fasade Pusset teglstein, cortén detaljer

🧱 Pusset teglstein, corténstål

Fasade med pusset teglstein, corténrammer på vinduer og dører, rustrødt uttrykk på pipe

Fasadeelementer med verneverdier og nye tilpasninger

VVS Varmepumper, biooljekjeler, varmevekslere

Antall: 3

Tre 1 MW varmepumper med arbeidsmedium R1234ze eller CO2/NH3, biooljekjeler som spisslast

Teknisk utstyr for energiproduksjon og distribusjon

Pipe Stålpipe inspirert av rotérovner, 28 meter høy

🧱 Stål

Antall: 1

Pipe for røykgass fra biokjeler, 28 m høy, rustrødt uttrykk, tilpasset industrihistorie

Pipe for spisslast med bioolje, høyde og utforming tilpasset omgivelsene

Isolasjon Akustisk isolasjon i porter og dører

Akustisk demping med R’w > 29 dB for porter og dører

Isolasjon for støyreduksjon

Vinduer Store vinduer og dører i corténramme

🧱 Corténstål rammer, glass

Større vinduer og dører i sørøst og nordhjørne, med informasjonsskilt og glasskonstruksjon for innsyn til energianlegg

Vinduer og dører tilpasset ny bruk og formidling, med sikkerhetsglass

Tak Saltak med takstein, flatt tak på deler

🧱 Takstein, betong

Saltak på laboratoriebygget, flate tak på energisentralens fasader

Takmaterialer og takformer som skal rehabiliteres/bevares

Maling Rustbeskyttelse og maling av pipe i corténstål

🧱 Corténstål

Antall: 1

Rustbeskyttelse og maling i rustrødt uttrykk

Overflatebehandling av pipe

Maling Maling av mur og fasadeelementer

Maling av murbånd og fasadeelementer i samsvar med vernekrav

Overflatebehandling for bevaring og estetikk

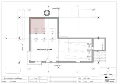
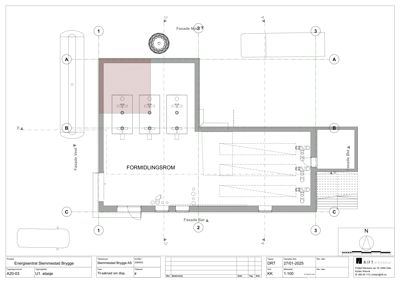
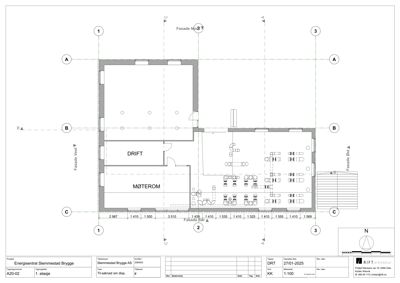
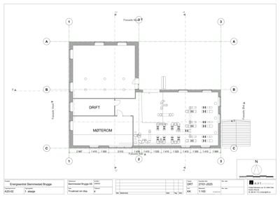
Plantegning

Energisentral Slemmestad Brygge 300.0 m²

Etasje -1 0.0 m²

Rom Areal Vinduer Dører
FORMIDLINGSROM U1 0.0 m² 0 0

Etasje 1 0.0 m²

Rom Areal Vinduer Dører
DRIFT 0 0.0 m² 3 2
MØTEROM 0 0.0 m² 3 2
Kontor 0 0.0 m² 3 2
DRIFT 101 0.0 m² 3 2
MØTEROM 102 0.0 m² 3 2
GANG 103 0.0 m² 0 1
Teknisk rom 104 3.9 m² 0 1
Garderobe 105 12.0 m² 0 1
Arkiv 106 42.0 m² 0 1
Arkiv 107 37.0 m² 0 1
Felles 108 35.0 m² 0 1
Felles 109 60.0 m² 0 1
Port 001 0.0 m² 0 0
VVX 002 0.0 m² 0 0
Elki 003 0.0 m² 0 0
Control rom 004 0.0 m² 0 0
EL rom 005 0.0 m² 0 0
Trafo 006 0.0 m² 0 0

Etasje 2 300.0 m²

Rom Areal Vinduer Dører
Kontrollrom 201 49.0 m² 0 1
El-rom 202 80.5 m² 0 1
Laboratorierom 203 170.5 m² 0 1
Trafo rom 204 0.0 m² 0 0
Control rom 205 0.0 m² 0 0
EL rom 206 0.0 m² 0 0
Trafo 207 0.0 m² 0 0

Teknisk anlegg 0.0 m²

Etasje 1 0.0 m²

Rom Areal Vinduer Dører
Bioolje-anlegg 1 0.0 m² 0 0
CO2-anlegg 2 0.0 m² 0 0

Fasader

Energisentral

Sør
Materiale
Betong
Taktype
Saltak
Takmat.
Taksten
Høyde
2.5 m
Mønehøyde
5.0 m
Vinduer
13
Dører
1
Synlige etasjer
2
Nord
Materiale
Betong
Taktype
Flatt tak
Høyde
2.5 m
Vinduer
2
Dører
1
Synlige etasjer
1
Øst
Materiale
Betong
Taktype
Flatt tak
Høyde
2.7 m
Vinduer
2
Dører
1
Synlige etasjer
1
Vest
Materiale
Betong
Taktype
Flatt tak
Høyde
2.5 m
Mønehøyde
2.5 m
Vinduer
4
Dører
1
Synlige etasjer
1
Ukjent
Materiale
Betong
Taktype
Flatt tak
Vinduer
6
Dører
2
Synlige etasjer
2

Laboratorietbygget / Ny Energisentral

Ukjent
Materiale
Betong
Taktype
Flatt tak
Vinduer
4
Dører
1
Synlige etasjer
1

Administrasjonsbygget / Restaurant

Ukjent
Materiale
Betong
Taktype
Flatt tak
Vinduer
4
Dører
1
Synlige etasjer
2

Portbua

Ukjent
Materiale
Betong
Taktype
Flatt tak
Vinduer
3
Dører
1
Synlige etasjer
1

Bilverksted

Ukjent
Materiale
Betong
Taktype
Flatt tak
Vinduer
12
Dører
0
Synlige etasjer
3

Administrasjonsbygget

Ukjent
Materiale
Betong
Taktype
Flatt tak
Vinduer
12
Dører
0
Balkonger
1
Synlige etasjer
3

CC

Ukjent
Materiale
Betong
Taktype
Flatt tak
Vinduer
11
Dører
2
Synlige etasjer
2

Ny Energisentral

Vest
Materiale
Betong
Taktype
Valmtak
Vinduer
6
Dører
0
Synlige etasjer
2

Hendelser

08.04.2026 238/543 Vaterlandsveien 25 - Statsforvalterens melding om forlenget saksbehandlingsfrist
19.02.2026 238/543 Vaterlandsveien 25 - Svar - Plassering av energisentral for Slemmestad sentrum
11.02.2026 238/543 Vaterlandsveien 25 - E-postkorrespondanse - Plassering av energisentral for Slemmestad sentrum
04.02.2026 238/543 Vaterlandsveien 25 - Plassering av energisentral for Slemmestad sentrum
12.01.2026 Oversendelse av klagesak - Asker - 238/543 - Vaterlandsveien 25 - klage dispensasjon plankrav
09.01.2026 238/543 Vaterlandsveien 25 - Statsforvalterens melding om saksbehandlingstid i klagesak
29.12.2025 238/543 Vaterlandsveien 25 - Kommentarer til klage på vedtak
27.12.2025 238/543 Vaterlandsveien 25 - Orientering om mottatt klage - dispensasjon plankrav
09.12.2025 238/543 Vaterlandsveien 25 - Melding om saksbehandlingstid
17.11.2025 238/543 Vaterlandsveien 25 - Klage på politisk vedtak
26.09.2025 238/543 Vaterlandsveien 25 - Melding om politisk vedtak - Energisentral i tidligere laboratoriebygg
22.09.2025 Vedtak fra utvalg for plan og byggesak
22.09.2025 238/543 Vaterlandsveien 25 - Dispensasjon utenom byggesak - Energisentral i tidligere laboratoriebygg. Kopi av politisk sak - klagebehandling
10.09.2025 238/543 Vaterlandsveien 25 - orientering om befaring og politisk behandling - Dispensasjon utenom byggesak - Energisentral i tidligere laboratoriebygg
19.06.2025 238/543 Vaterlandsveien 25 - Kvittering på mottatt klage
16.06.2025 238/543 Vaterlandsveien 25 - Klage på vedtak
12.06.2025 238/543 Vaterlandsveien 25 - Klage på avslag på søknad om dispensasjon
21.05.2025 238/543 Vaterlandsveien 25 - Anmodning om utsatt klagefrist på avslag
09.05.2025 238/543 Vaterlandsveien 25 - Avslag på søknad om dispensasjon - Energisentral
02.05.2025 238/543 Vaterlandsveien 25 - Fylkeskommunens uttalelse til reguleringsendring
11.04.2025 238/543 Vaterlandsveien 25 - Anmodning om uttalelse - rettelse pipe
07.04.2025 238/543 Vaterlandsveien 25 - Anmodning om uttalelse
21.03.2025 238/543 Vaterlandsveien 25 - svar på fremdrift i saken
06.03.2025 238/543 Vaterlandsveien 25 - Spørsmål om fremdrift i saksbehandling
11.02.2025 238/543 Vaterlandsveien 25 - Supplering av søknad
26.12.2024 238/543 Vaterlandsveien 25 - Ufullstendig søknad
01.11.2024 238/543 Vaterlandsveien 25 - Bekreftelse på at vi har mottatt din søknad
30.10.2024 238/543 Vaterlandsveien 25 - Søknad om dispensasjon utenom byggesak - Energisentral i tidligere laboratoriebygg