Rendering
3D-visualisering (rendering) av fasader og bygningens utseende fra ulike vinkler.
1 / 83
NewConstruction
Unknown
Naeringsbygg
Oppføring av nytt næringsbygg med riving av eksisterende
📍 Vestkapp 3535
Nøkkelinfo
- Sakstype
- Nybygg
- Bygningstype
- Naeringsbygg
- Kommune
- Stad
- Fylke
- Vestland
- Saksnummer
- 2025/4644
- Fase
- Unknown
Om byggesaken
Saken gjelder søknad om riving av eksisterende bygg og oppføring av nytt næringsbygg på Vestkapp 3535 i Stad kommune, inkludert dispensasjon og nabovarsel.
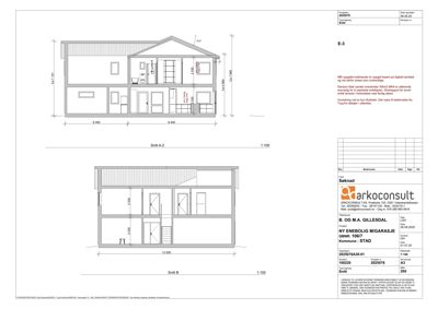
Plantegning
Enebolig 146.6 m²
Etasje 1 146.6 m²
| Rom | Areal | Vinduer | Dører |
|---|---|---|---|
| Gang 100 | 18.1 m² | 1 | 2 |
| Stue 101 | 22.6 m² | 2 | 1 |
| Gang 102 | 27.3 m² | 1 | 2 |
| Sove 103 | 12.3 m² | 1 | 1 |
| Sove 104 | 7.9 m² | 1 | 1 |
| Stue 105 | 18.9 m² | 1 | 1 |
| Gang 106 | 2.5 m² | 0 | 1 |
| Gang 107 | 17.6 m² | 0 | 1 |
| Vindfang 122 | 4.4 m² | 0 | 1 |
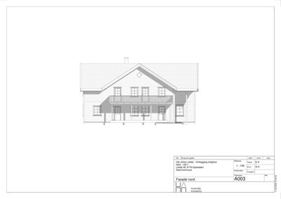
Fasader
Enebolig
Nord
- Materiale
- Tre
- Taktype
- Saltak
- Takmat.
- Tegl
- Høyde
- 5.0 m
- Mønehøyde
- 5.0 m
- Vinduer
- 6
- Dører
- 2
- Balkonger
- 1
- Synlige etasjer
- 2
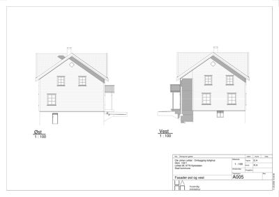
Øst
- Materiale
- Tre
- Taktype
- Saltak
- Takmat.
- Tegl
- Høyde
- 3.5 m
- Mønehøyde
- 6.0 m
- Vinduer
- 5
- Dører
- 1
- Synlige etasjer
- 2
Vest
- Materiale
- Tre
- Taktype
- Saltak
- Takmat.
- Tegl
- Høyde
- 3.6 m
- Mønehøyde
- 6.0 m
- Vinduer
- 4
- Dører
- 2
- Synlige etasjer
- 2
Sør
- Materiale
- Betong
- Taktype
- Saltak
- Takmat.
- Tegl
- Høyde
- 3.9 m
- Mønehøyde
- 6.4 m
- Vinduer
- 6
- Dører
- 1
- Synlige etasjer
- 2
Sørøst
- Materiale
- Tre
- Taktype
- Saltak
- Høyde
- 5.0 m
- Vinduer
- 3
- Dører
- 1
- Balkonger
- 1
- Synlige etasjer
- 2
Nordvest
- Materiale
- Tre
- Taktype
- Saltak
- Vinduer
- 4
- Dører
- 1
- Balkonger
- 1
- Synlige etasjer
- 2
Inngang
- Materiale
- Tre
- Taktype
- Flatt tak
- Høyde
- 4.2 m
- Vinduer
- 2
- Dører
- 1
- Synlige etasjer
- 2
Utsikt
- Materiale
- Tre
- Taktype
- Flatt tak
- Høyde
- 4.2 m
- Vinduer
- 2
- Dører
- 0
- Synlige etasjer
- 2
Hovedbygg
Sørvest
- Materiale
- Glass
- Taktype
- Flatt tak
- Vinduer
- 18
- Dører
- 1
- Synlige etasjer
- 1
Eksisterende hus
Nord
- Materiale
- Tre
- Taktype
- Saltak
- Vinduer
- 0
- Dører
- 1
- Synlige etasjer
- 1
Hendelser
20.04.2026
Nabovarsel for Jølavegen 14
15.04.2026
Nabovarsel for 45/13
07.04.2026
Nabovarsel for Hovevegen 99 - 256/302
01.04.2026
Nabovarsel for Hovevegen 55 - merknad fra eigedom
01.04.2026
Nabovarsel for Ytre Skårhaug 6 - 42/15 - merknad fra eigedom
31.03.2026
Nabovarsel for Ytre Skårhaug 6 - 42/15
31.03.2026
Nabovarsel for Fjellvegen 1 - 43/75
24.03.2026
Nabovarsel for 38/112 - merknad fra eigedom
19.03.2026
Nabovarsel for Uldegrova 15
19.03.2026
Nabovarsel for Hovevegen 55
18.03.2026
Nabovarsel for 38/112
13.03.2026
Nabovarsel for byggesak og utsleppsløyve - Vestkapp 3535 - Riving og oppføring av nytt bygg - 26.02.2026 - Merknad fra Eigedom
13.03.2026
Nabovarsel - Rindevegen - Tilbakemelding fra Eigedom
13.03.2026
Nabovarsel for Alleen 49A, 49B - Merknad fra Eigedom
13.03.2026
Nabovarsel for 44/622 - Tilbakemelding fra Eigedom
11.03.2026
Nabovarsel for Lefdal 28
06.03.2026
Nabovarsel for 205/21
27.02.2026
Nabovarsel for byggesak og utsleppsløyve - Vestkapp 3535 - Riving og oppføring av nytt bygg - 26.02.2026
25.02.2026
Nabovarsel for 44/622
25.02.2026
Nabovarsel for 44/622
18.02.2026
Nabovarsel for Øyane 11
11.02.2026
Nabovarsel for Alleen 49A, 49B
09.02.2026
Nabovarsel - Rindevegen
23.01.2026
Nabovarsel for 290/4
23.01.2026
Nabovarsel for Kvilda 8
22.01.2026
Nabovarsel for 256/130 - merknad fra Eigedom
22.01.2026
Nabovarsel for 44/666 - merkand fra eigedom
22.01.2026
Nabovarsel for Leirongane 1 - 43/19 - merknad fra eigedom
21.01.2026
Nabovarsel for Hausvegen 74
16.01.2026
Nabovarsel for 256/130
14.01.2026
Nabovarsel for Leirongane 1 - 43/19
12.01.2026
Nabovarsel for 44/666
02.01.2026
Nabovarsel grensejustering 106/1 - 1+6/7