NewConstruction Igangsettingstillatelse Naeringsbygg

Ny ishall med publikumsbygg og tilbygg på Vikahaugen 10, Stord

📍 Vikahaugen 10 , 5411 STORD

Nøkkelinfo

Sakstype
Nybygg
Bygningstype
Naeringsbygg
Bruksareal
6,572 m²
Kommune
Stord
Fylke
Vestland
Gnr / Bnr
41 / 63
Saksnummer
2023/7748
Fase
Igangsettingstillatelse

Om byggesaken

Ny ishall på totalt 6572 m² med tilhørende publikumsbygg og tilbygg til eksisterende klubbhus på Vikahaugen 10 i Stord. Bygget består av en ishall med isflate som kan brukes som kunstgressbane om sommeren, et publikumsbygg med kiosk, møterom, lager og tekniske rom, samt påbygg og tilbygg til eksisterende klubbhus med lager, garderober og foajé/scene. Bygget har sandwich-elementer i fasaden, isolert q-dekke tak med papptekking, og er utstyrt med ventilasjonsanlegg, brannalarmanlegg, løfteinnretninger og sanitærinstallasjoner. Det er etablert grunnarbeid, plasstøpte betongkonstruksjoner, stålkonstruksjoner og omfattende tekniske installasjoner. Det foreligger godkjente planer for VA, brann, trafikk og skilt, samt uavhengig kontroll og ansvarsrett for alle relevante fagområder. Bygget har fått midlertidig brukstillatelse og det pågår sluttføring av mindre arbeider.

Produkter og materialer

Solceller Solcelleanlegg på tak

Areal for solceller på tak, med krav til brannsikkerhet og merking

Solcellepaneler på tak for energiproduksjon

Ventilasjon Ventilasjonsanlegg og kanaler

🧱 Ventilasjonsaggregater med avfukting, kanaler i varmgalvanisert stål, VAV-spjeld, lydfeller, brannspjeld, motorstyrte spjeld, isolasjon av kanaler med steinull

Ventilasjonsanlegg med behovsstyring, SD-anlegg integrasjon, tetthetsklasse B, brannisolasjon unntatt for avtrekkskanaler

Komplett ventilasjons- og avfuktningsanlegg for ishall og publikumsbygg

VVS Varmeanlegg

🧱 Vannbårent varmeanlegg med radiatorer, konvektorer, gulvvarme, varmepumper, ekspansjonskar, energimålere

Varmeanlegg med overskuddsvarme fra kuldeanlegg, mengderegulering, trykkstyring, termometre og manometre

Vannbåren varme for nybygg og påbygg

Annet Skiltplan og trafikksikring

Skiltplan for varelevering og trafikkstyring med tidsavgrensing, godkjent av vegmyndighet

Trafikkskilt og skilting for varelevering og adkomst

Brannvern Brannslokkeanlegg og brannalarmanlegg

🧱 Brannslanger i skap, håndslukkeapparater, brannalarmanlegg kategori 2, ledesystem, nødbelysning, brannsentral, røykdetektorer, brannspjeld, brannheis

Brannslokkeutstyr og alarmer i henhold til TEK17 og NS-standarder, med dokumentasjon og kontroll

Brannsikkerhetsinstallasjoner for hele bygget

Stål Stålkonstruksjoner

🧱 Stålkonstruksjoner for bæresystem og montering

Bæresystem i stål for ishall og publikumsbygg

VVS Sanitærinstallasjoner

🧱 Rustfrie stålrør, PE80 SDR11 vannledninger, PVC spillvannsledninger, armaturer, servanter, toaletter, sluk, utslagsvask, kjøkkenvask, varmtvannsbereder

Sanitærinstallasjoner i henhold til TEK17 og våtromsnorm, inkl. HC-toaletter og berøringsfrie servantarmaturer

Komplett sanitæranlegg for ishall og publikumsbygg

Avfallshåndtering Avfallsplan og sortering

Plan for avfallshåndtering med sortering av trevirke, papir, jern, betong, mineralull, plast, spillolje og EE-avfall

Avfallshåndtering og miljøsanering under og etter byggeprosessen

Tak Isolert q-dekke med papptekking

🧱 Isolert q-dekke eller lignende, papptekket, evt. med solceller

Takutstikk 1 m, ventilasjon på tak

Isolert tak med papptekking og mulighet for solcellepaneler

Betong Plasstøpte betongkonstruksjoner

🧱 Betong C35, armering 57 kg/m, overdekning 30 mm

Fundamenter, søyler, dekker, trapper og amfi i plasstøpt betong

Bærekonstruksjoner i plasstøpt betong

Fasade Sandwichelement yttervegg

🧱 Sandwich med sinus 18 Plannja PL 45, hard coat, silver metallic, innside hvit med akustikkdempende overflate

RAL 8001 - Ockerbraun, isolert stendervegg stål 95-98 mm, malt MDF

Isolerte sandwich-elementer for yttervegger med lyd- og brannkrav

Tømrer Innredningsarbeid og tømrerarbeid

Innredningsarbeid i publikumsbygg og klubbhus, trapper, amfi, veggkledning, himlinger

Innvendige tømrer- og innredningsarbeider

Vinduer Rømningsvinduer med brannmotstand

🧱 Vinduer med EI60 brannmotstand i fasade mot rømningstrapp

Antall: 10

Brannmotstandsvinduer for rømningsveier

Maling Maling og overflatebehandling

Maling av sandwich-elementer og innvendige MDF-vegger

Overflatebehandling av fasader og innvendige vegger

Grunnarbeid Grunnarbeid og fundamentering

Grunnarbeid og fundamentering på kote +42 m, plasstøpte betongfundamenter på fjell

Grunnarbeid og fundamentering for ishall og publikumsbygg

Heis Løfteinnretning og heis

Antall: 1

Løfteplattform i publikumsbygg, heis med EI60 brannmotstand i sjakt og E90 heisdør

Heis og løfteinnretning for universell utforming

Dører Ytterdører og rømningsdører

🧱 Dører med panikkbeslag iht. NS-EN 1125:2008, EI2 30-60 Sa/CSa brannmotstand, utadslående dører til traforom

Antall: 4

Dører i rømningsvei skal være lett å åpne uten nøkkel, med maks åpningskraft 30-67 N

Brann- og rømningsdører med krav til funksjon og sikkerhet

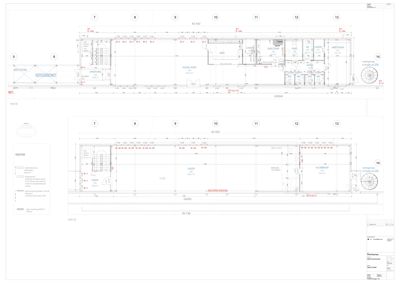
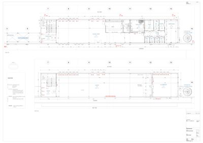
Plantegning

Stord Ishall 352.4 m²

Etasje 1 152.4 m²

Rom Areal Vinduer Dører
Sosial rom 104 152.4 m² 0 1

Etasje 2 200.0 m²

Rom Areal Vinduer Dører
Lager 202 200.0 m² 0 1

Publikumsbygg 59.6 m²

Etasje 1 29.8 m²

Rom Areal Vinduer Dører
TRAPP 201 29.8 m² 0 1

Etasje 2 29.8 m²

Rom Areal Vinduer Dører
VINDFANG 102 29.8 m² 1 1
SOSIAL ROM 104 152.4 m² 0 0
KIOSK 106 0.0 m² 0 1
LAGER 107 6.9 m² 0 1
DISP/TEKN 108 15.4 m² 0 1
HWC 109 7.6 m² 0 1
BK 110 5.6 m² 0 1
LAGER 111 4.7 m² 0 1
MØTEROM 115 25.7 m² 0 1
WC 112 2.2 m² 0 1
WC 113 2.0 m² 0 1
WC 114 2.0 m² 0 1
WC 116 2.0 m² 0 1
KLUBBRØM 203 59.9 m² 0 1

VIKA ARENA 12,664.6 m²

Etasje 1 6,290.3 m²

Rom Areal Vinduer Dører

Etasje 2 6,374.3 m²

Rom Areal Vinduer Dører

Klubbhus 414.3 m²

Etasje 1 414.3 m²

Rom Areal Vinduer Dører
Klubbhus/Garderobe 101 101.0 m² 0 2
Lager/Garasje 102 107.0 m² 0 1
Lager 2 103 68.3 m² 0 1
Billettssalg 104 0.0 m² 0 1
Kjøkken 105 0.0 m² 0 1
Gard. 106 0.0 m² 0 1
WC 107 0.0 m² 0 1
WC 108 0.0 m² 0 1
WC 109 0.0 m² 0 1
Dusj 110 0.0 m² 0 1
Gard. 111 0.0 m² 0 1
WC 112 0.0 m² 0 1
Dusj 113 0.0 m² 0 1
Tavlerom 114 0.0 m² 0 1
Fellesrom 115 0.0 m² 0 1
Vask 116 0.0 m² 0 1
Slipebu/Vent. 117 0.0 m² 0 1
Lager 3 1028 52.8 m² 0 0
Billettsal 1029 0.0 m² 0 0
Klubbhus/Garderobe 1030 0.0 m² 0 0
WC 1031 0.0 m² 0 0
WC dusj 1032 0.0 m² 0 0
Gard. 1033 0.0 m² 0 0
Gard. 1034 0.0 m² 0 0
WC 1035 0.0 m² 0 0
WC dusj 1036 0.0 m² 0 0
Fellesrom 1037 0.0 m² 0 0
Taylerom 1038 0.0 m² 0 0
Teknisk rom 1039 0.0 m² 0 0
Grube/grating 1040 0.0 m² 0 0
Garasje 1041 0.0 m² 0 0
Lager 2 1042 15.2 m² 0 0

Etasje 2 0.0 m²

Rom Areal Vinduer Dører
Slipebu/Vent. 2001 0.0 m² 0 0
Klubbhus/Garderobe 2002 0.0 m² 0 0
Teknisk rom 2003 0.0 m² 0 0
Ope ned til teknisk rom 2004 0.0 m² 0 0
Ope ned til garasje 2005 0.0 m² 0 0
WC 2006 0.0 m² 0 0
BK 2007 0.0 m² 0 0

Etasje 3 0.0 m²

Rom Areal Vinduer Dører
Lager/teknisk 301 67.0 m² 0 0
Fojaje/scene-råbygg 302 92.0 m² 0 0

Stord Forball 0.0 m²

Etasje 2 0.0 m²

Rom Areal Vinduer Dører
Slipebu/Ventilasjonsrom SLIPEBU/VENT. 0.0 m² 0 1
Treningssal TRENING 0.0 m² 0 1
Kontrollrom KONTROLLROM. 0.0 m² 0 1
Teknisk rom TEKNIKK 0.0 m² 0 0
WC WC 0.0 m² 0 1
Åpning ned til teknisk rom OPE NED TIL TEKNISK ROM 0.0 m² 0 0
Åpning ned til garasje OPE NED TIL GARASJE 0.0 m² 0 0

Fasader

Ishall

Nord
Materiale
Sandwich
Taktype
Saltak
Høyde
45.9 m
Mønehøyde
56.0 m
Vinduer
0
Dører
0
Synlige etasjer
1
Øst
Materiale
Sandwich
Taktype
Saltak
Høyde
45.9 m
Mønehøyde
56.0 m
Vinduer
0
Dører
0
Synlige etasjer
1
Sør
Materiale
Sandwich
Taktype
Flatt tak
Takmat.
Papptekket
Høyde
42.2 m
Mønehøyde
56.0 m
Vinduer
10
Dører
4
Synlige etasjer
1
Vest
Materiale
Sandwich
Taktype
Flatt tak
Takmat.
Papptekket
Høyde
49.9 m
Mønehøyde
56.0 m
Vinduer
0
Dører
1
Synlige etasjer
1

Hendelser

21.04.2026 Vurdering av behov for primærreinseanlegg - 41/63 - Nybygg ishall, Vikahaugen 10
20.04.2026 41/63 - Sluttrapport med avfallsplan Ishall Vikahaugen 10
14.04.2026 Avslutting av tilsyn med ansvarsområde i byggesak - 41/63/1 - nybygg ishall, Vikahaugen 10
25.03.2026 Vikahaugen 10, 20 Supplering av søknad 41/63
08.03.2026 Innmålingsdata for bygget - 41/63
01.02.2026 Mangel ved søknad om reparasjon/endring/supplerande tiltak på eksisterande sanitæranlegg - Vikahaugen 10, 41/63
19.01.2026 Vikahaugen 10, 20 Supplering av søknad 41/63
12.01.2026 Vikahaugen 10, 20 Supplering av søknad 41/63
12.01.2026 Svar vedkommande ansvarsområder Ishallen
30.12.2025 Førespurnad om utsett frist - 41/63
22.12.2025 Stadfesting utsett frist - 41/63
10.12.2025 2023/7748 - Tilbakemelding vedkomande bakgrunn for krav om primærreinsing ved bygging av ny ishall
10.12.2025 Vatn og avløp ishallen
09.12.2025 Status ferdigstilling - Mellombels bruksløyve Stord ishall
08.12.2025 Spørsmål gjennomføringsplan - 41/63
03.12.2025 Tilsyn med ansvarsområde i byggesak- 41/63/1 - førespurnad om innsending av dokumentasjon, Vikahaugen 10
03.12.2025 Matrikkelføring mellombels bruksløyve på ny ishall, Vikahaugen 10 - 41/63/1/0
26.11.2025 Melding om dokument fra Stord kommune: Mangel ved søknad om reparasjon/endring/supplerende tiltak på eksisterende sanitæranlegg - Vikahaugen 10, 41/63
26.11.2025 Mangel ved søknad om reparasjon/endring/supplerende tiltak på eksisterende sanitæranlegg - Vikahaugen 10, 41/63
25.11.2025 Mellombels bruksløyve - 41/63 - Ishall m.m., Vikahaugen 10
24.11.2025 Søknadssupplering - 41/63
20.11.2025 Melding om vedtak - Skiltplan Vikahaugane Ishallen
20.11.2025 Skiltplan Vikahaugane til godkjenning
20.11.2025 Løyve til endring - 41/63 - Nybygg ishall, Vikahaugen 10
19.11.2025 Førebels svar - 41/63 - søknad om mellombels bruksløyve, Vikahaugen 10
17.11.2025 Oversending gjennomføringsplan - 41/63
17.11.2025 Søknad om mellombels bruksløyve - 41/63 - heile tiltaket, Vikahaugen 10
17.11.2025 Innsyn i sak 41/63
13.11.2025 Mangel ved søknad om reparasjon/endring/supplerende tiltak på eksisterende sanitæranlegg - Vikahaugen 10, 41/63
13.11.2025 Søknad om endring - 41/63 , Vikahaugen 10
12.11.2025 Vi innvilger søknaden om samtykke etter automatisk saksbehandling
05.11.2025 Melding om endring av ansvarsrett UTF montering av stålkonstruksjoner - Ishall
13.10.2025 Vikahaugen 10, 20 Supplering av søknad 41/63
08.10.2025 Etterspør oppdatert gjennomføringsplan - 41/63 - Nybygg ishall, Vikahaugen 10
05.06.2025 Løyve til endring og igangsetting - 41/63 - Ishall - , Vikahaugen 10
04.06.2025 Søknad om igangsettingsløyve - 41/63 - resten av tiltaket, Vikahaugen 10
28.11.2024 Ishall
26.11.2024 Faktura Ishall
18.11.2024 Løyve til igangsetting- 41/63 - Ishall - deler av tiltak - Stålkonstruksjonar, Vikahaugen 10
18.11.2024 Supplering søknad om IG - 41/63
15.10.2024 Førebels svar - 41/63 - Ishall, Vikahaugen 10
14.10.2024 Vikahaugen 10, 20 Supplering av søknad 41/63
14.10.2024 Søknadssupplering - stadfesting frå Fagne - 41/63
19.09.2024 2023/7748 - Tilbakemelding vedkomande bakgrunn for krav om primærreinsing ved bygging av ny ishall
16.09.2024 Stadfesting av avklaring kring teknisk plan for utvendig VA-anlegg for Stord ishall
11.09.2024 Søknad om igangsettingsløyve - 41/63 - del av tiltaket, Vikahaugen 10
10.09.2024 Førebels svar - 41/63 - Ishall, Vikahaugen 10
13.08.2024 Matrikkelføring igangsetting -Ishall - deler av tiltaket - grunn og betongarbeid, Vikahaugen 10 - 41/63
12.08.2024 Løyve til igangsetting- 41/63 - Ishall - deler av tiltaket - grunn og betongarbeid, Vikahaugen 10
08.08.2024 Sak 2023/7748 - Oppdatert gjennomføringsplan - Ishall, Vikahaugen 10
08.08.2024 Vikahaugen 10, 20 Supplering av søknad 41/63
07.08.2024 Vi innvilger søknaden om samtykke etter automatisk saksbehandling
07.08.2024 Stadfesting av motteken søknad om igangsettingsløyve - 41/63 - Ishall - deler av tiltaket - grunn og betongarbeid, Vikahaugen 10
07.08.2024 Søknad om igangsettingsløyve - 41/63 - Ishall - deler av tiltaket - grunn og betongarbeid, Vikahaugen 10
18.04.2024 Matrikkelføring rammeløyve ny ishall med nytt publikumsbygg, samt påbygg og tilbygg til eksisterande klubbhus - Vikahaugen 6 og 10 - 41/63
11.04.2024 Rammeløyve - 41/63 - Ishall, Vikahaugen 10
10.04.2024 Rammeløyve - 41/63 - Ishall, Vikahaugen 10
09.04.2024 Førebel svar - 46/63 - Ishall, Vikahaugen 10
09.04.2024 Søknadssupplering - 41/63
08.04.2024 Søknadssupplering: VA-plan
08.04.2024 Søknadssupplering: Dialog tekniske tenester vedrørande primærreinsing
19.02.2024 Uttale - dispensasjon - ishall - gnr. 41 bnr. 63 - Vikahaugen 10 - Stord kommune
15.02.2024 Førebels svar - 41/63 - Ishall, Vikahaugen 10
17.01.2024 Førespurnad om uttale - 41/63 - Ishall, Vikahaugen 10
15.01.2024 Supplering av søknad - 41/63 - tilbakemelding vedrørande overvatn og rapport om områdestabilitet
16.11.2023 Førebels svar - 41/63 - Ishall, Vikahaugen 10
08.11.2023 Stadfesting av motteken søknad - 41/63 - Ishall, Vikahaugen 10
08.11.2023 Søknad om rammeløyve - 41/63, Vikahaugen 10