NewConstruction Rammetillatelse Naeringsbygg

Riving og ny driftsbygning i Vikøyvegen 362, Norheimsund

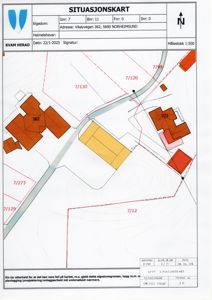
📍 Vikøyvegen 362 , 5600 NORHEIMSUND

Nøkkelinfo

Sakstype
Nybygg
Bygningstype
Naeringsbygg
Bruksareal
210 m²
Kommune
Kvam
Fylke
Vestland
Gnr / Bnr
7 / 11
Saksnummer
26/852
Fase
Rammetillatelse

Om byggesaken

Prosjektet omfatter riving av et eldre løebygg på 140 m² registrert som SEFRAK-minne, og oppføring av et nytt erstatningsbygg med samme plassering og omtrent samme størrelse. Det nye bygget får et bruttoareal på 210 m² fordelt på to etasjer, med et overbygd areal på 63 m². Gulvnivået heves med ca. 50 cm for bedre funksjonalitet og visuell kvalitet. Bygget skal ha to etasjer mot dagens tre, og låvebrua fjernes for å redusere risiko. Bygget plasseres på fjellgrunn, og det er godkjent tilknytning til offentlig vann og avløp. Gamle grind-/stavkonstruksjoner og natursteinsmurer skal tas vare på for gjenbruk. Tiltaket er i samsvar med gjeldende kommuneplan og plan- og bygningslovens krav.

Produkter og materialer

Tak Taktekking

Eksisterende tak med stålplater, ny taktekking ikke spesifisert men forventes tilsvarende.

Taktekking for nytt bygg, tilpasset eksisterende stil.

Riving Riving av eldre løebygg

🧱 Treverk, malt kledning, natursteinsmur, stålplater på tak

Antall: 140

Bygget er et eldre landbruksbygg med grind-/stavkonstruksjon på natursteinsmur, tak med stålplater, malt kledning. Bygget er SEFRAK-registrert.

Riving av eksisterende løebygg på 140 m² med sortering og håndtering av avfall i henhold til miljøkrav, inkludert farlig avfall og gjenbruk av grunnmurer og grindverk.

Riving Riving og gravearbeid

Utføres av Tomas Tyssebotn AS, ansvar for riving og gravearbeid.

Riving av eksisterende bygg og forberedelse av tomt.

Nybygg Ny driftsbygning i landbruk

🧱 Tre, betong, isolasjon, malt kledning, taktekking ikke spesifisert

Antall: 210

Nytt bygg med BYA 220 m², BTA 210 m², BRA 198 m² + 63 m² overbygd areal, to etasjer, gulvnivå hevet 50 cm, fjellgrunn, låvebru fjernes.

Oppføring av ny driftsbygning med tilsvarende funksjon og størrelse som eksisterende, tilpasset bedre bruk og visuell kvalitet.

Tømrer Tømrerarbeid og innmåling

🧱 Treverk, miljøkartlegging

Utføres av Hardanger Byggsenter AS, inkludert miljøkartlegging og innmåling av bygg.

Tømrerarbeid for nytt bygg og miljøkartlegging i tiltaksklasse 1.

Betong Betongarbeid og plassering av bygg

🧱 Betong for fundament og plassering

Betongarbeid utføres av M3 BETONG AS, inkludert plassering av bygg på fjellgrunn.

Fundamentering og betongarbeid for nytt bygg.

Miljøkartlegging Miljøkartlegging og miljøsanering

Utføres av Hardanger Byggsenter AS, inkludert miljøkartlegging av eksisterende bygg og håndtering av farlig avfall.

Kartlegging av miljøforhold og farlig avfall i forbindelse med riving.

VVS Rørleggjararbeid utvendig og innvendig

Utføres av BREKKE OG LIE VVS AS, inkludert tilknytning til offentlig vann og avløp.

VVS-installasjoner for nytt bygg.

Fasade Tre kledning og maling

🧱 Malt treverk

Ny driftsbygning får tre kledning med farge tilpasset eksisterende estetikk.

Fasade med malt treverk i landbruksstil.

Plantegning

Enebolig 355.0 m²

Etasje 1 220.0 m²

Rom Areal Vinduer Dører
Stue 101 100.0 m² 4 1
Gang 102 22.0 m² 0 1
Kjøkken 103 98.0 m² 2 1

Etasje 2 135.0 m²

Rom Areal Vinduer Dører
Soverom 201 44.9 m² 1 1
Soverom 202 44.9 m² 1 1
Gang 203 45.2 m² 0 1

Fasader

Hovedbygg

Ukjent
Taktype
Saltak
Vinduer
0
Dører
0
Synlige etasjer
0
Nord
Materiale
Tre
Taktype
Pulttak
Vinduer
4
Dører
0
Synlige etasjer
1

Enebolig

Sør
Materiale
Tre
Taktype
Saltak
Vinduer
3
Dører
0
Synlige etasjer
2
Nord
Materiale
Tre
Taktype
Saltak
Vinduer
4
Dører
0
Synlige etasjer
2
Vest
Materiale
Tre
Taktype
Saltak
Vinduer
1
Dører
1
Synlige etasjer
2
Øst
Materiale
Tre
Taktype
Saltak
Vinduer
1
Dører
1
Synlige etasjer
2

Hendelser

20.04.2026 Vedtak DRAD 090/26 - Godkjent søknad om løyve til tiltak i eitt steg på gnr 7, bnr 11 i Vikøy. Riving av løebygg og oppføring nytt erstatningsbygg med same plassering
01.04.2026 Supplering av søknad gnr 7 bnr 11
20.03.2026 Søknad om riving av bygg/oppføring av nybygg på gnr 7, bnr 11 i Vikøy. Behov for tilleggsopplysningar
16.03.2026 Førebels svar på søknad om tillatelse i ett trinn - riving og oppføring av ny driftsbygning på gnr 7 bnr 11, Vikøy
16.03.2026 Søknad om tillatelse i ett trinn gnr 7 bnr 11
24.02.2026 Svar på nabovarsel - riving og oppføring ny driftsbygning - gnr. 7 bnr. 11 - Vikøyvegen 362 - Kvam herad