Facade
Fasadetegning som viser bygningens utsyn mot de fire hovedretningene (N, S, E, V) samt en 3D-visualisering av fasaden.
1 / 3
NewConstruction
Rammetillatelse
Naeringsbygg
Ny lagerhall på 360 m² i Vindafjord, gnr 119 bnr 6
Nøkkelinfo
- Sakstype
- Nybygg
- Bygningstype
- Naeringsbygg
- Bruksareal
- 360 m²
- Kommune
- Vindafjord
- Fylke
- Rogaland
- Gnr / Bnr
- 119 / 6
- Saksnummer
- 2026/991
- Fase
- Rammetillatelse
Om byggesaken
Ny frittstående lagerhall på 360 m² med flatt tak og betongfasader, plassert på opparbeidet industriområde i Vindafjord kommune. Bygget har én etasje med et stort lagerrom uten vinduer, én dør og en port på 5x5 meter. Byggehøyden er 7,3 meter. Bygget skal ikke ha innlagt vann eller kloakk, og det er ikke installert pipe. Lagerhallen er planlagt for 60 arbeidstakere og oppfyller krav til arbeidsmiljø og sikkerhet. Bygget er prosjektert og utføres av flere ansvarlige foretak med ansvarsrett, og det foreligger godkjent løyve til tiltak.
Produkter og materialer
Tømrer
Bærende trekonstruksjoner
🧱 Tre
Bærende trekonstruksjoner prosjektert og utført
Tømrerarbeid for bærende trekonstruksjoner i lagerhall
Dører
Ytterdør
Antall: 1
1 dør på fasade sør
Ytterdør for personinngang
Tak
Flatt tak
Flatt tak på lagerhall
Taktekking for flatt tak på lagerhall
Fasade
Betongfasade
🧱 Betong
Betongfasader på alle sider, flatt tak
Betongfasader for lagerhallens yttervegger
Grunnarbeid
Utstikking og grunnarbeid
Utstikking av plassering og høyde, grunnarbeid for fundamentering
Grunnarbeid for lagerhallens fundament og plassering
Betong
Stedstøpte betongkonstruksjoner
🧱 Betong
Stedstøpte betongkonstruksjoner for bærende elementer
Betongkonstruksjoner for lagerhallens bærende struktur
Garasjeport
Port 5x5 meter
Antall: 1
Port 5x5 meter på fasade sør
Stor port for vareinn- og utkjøring
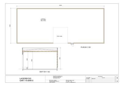
Plantegning
Lagerbygg 360.0 m²
Etasje 1 360.0 m²
| Rom | Areal | Vinduer | Dører |
|---|---|---|---|
| Lagerhall | 360.0 m² | 0 | 1 |
Fasader
Lagerbygg
Sør
- Materiale
- Betong
- Taktype
- Flatt tak
- Vinduer
- 0
- Dører
- 1
- Synlige etasjer
- 1
Øst
- Materiale
- Betong
- Taktype
- Flatt tak
- Vinduer
- 0
- Dører
- 0
- Synlige etasjer
- 1
Nord
- Materiale
- Betong
- Taktype
- Flatt tak
- Vinduer
- 0
- Dører
- 0
- Synlige etasjer
- 1
Vest
- Materiale
- Betong
- Taktype
- Flatt tak
- Vinduer
- 0
- Dører
- 0
- Synlige etasjer
- 1
Hendelser
20.04.2026
Løyve til Tiltak - Lagerbygg - Gnr. 119 bnr. 6
14.04.2026
Vi innvilger søknaden om samtykke etter automatisk saksbehandling
14.04.2026
Søknad om tillatelse i ett trinn 119/6