Facade
Fasadetegning av en gul hytte sett fra sør og øst, med målinger og tegningsdata.
1 / 12
VerticalExtension
UnderBehandling
Naeringsbygg
Påbygg og tilbygg på næringsbygg i Bjørnebråtan 1, Berger
📍 Bjørnebråtan 1 , 3075 BERGER
Nøkkelinfo
- Sakstype
- Påbygg
- Bygningstype
- Naeringsbygg
- Bruksareal
- 199 m²
- Kommune
- Drammen
- Fylke
- Buskerud
- Gnr / Bnr
- 340 / 190
- Saksnummer
- 26/08831
- Fase
- Under behandling
Om byggesaken
Prosjektet omfatter et påbygg og et mindre tilbygg på et eksisterende næringsbygg i Bjørnebråtan 1, Berger. Påbygget inkluderer innbygging av en eksisterende terrasse i andre etasje og utvidelse av vindfang i første etasje med et tilbygg på 3,6 m². Totalt nytt areal er 198,8 m² fordelt på 104 m² i første etasje og 94,8 m² i andre etasje. Bygget har saltak med teglstein og trekledning, og fasadene males i gul farge. Innvendig inneholder prosjektet flere rom som stuer, kjøkken, soverom, bad, gang og vinterhage. Det er én trapp i bygget. Bygget er prosjektert med hensyn til byggegrunn, visuell utforming og universell utforming, og det er søkt dispensasjon for plassering nær vei.
Produkter og materialer
Betong
Fundament og grunnmur
Fundament og grunnmur for påbygg og tilbygg
Gulv
Innvendige gulv
Gulvbelegg og overflater i påbygg og tilbygg
Elektro
El-installasjoner
Elektriske installasjoner i påbygg og tilbygg
Trapper
Innvendig trapp
Antall: 1
Innvendig trapp mellom etasjer i påbygg
Tømrer
Trekonstruksjoner
🧱 Tre
Tømrerarbeid for trekonstruksjoner i påbygg og tilbygg
Dører
Ytterdører og innerdører
Antall: 17
Ytterdører og innerdører i påbygg og tilbygg
Maling
Innvendig og utvendig maling
Maling av fasader og innvendige flater
Tak
Saltak med teglstein
🧱 Teglstein
Saltak med teglstein som takmateriale
Nytt tak til påbygg tilpasset eksisterende bygg
Vinduer
Fasadevindu
Antall: 14
Nye fasadevinduer i påbygg og tilbygg
Fasade
Trekledning
🧱 Tre
Fasade i tre med gul farge
Trekledning for fasader på påbygg og tilbygg
Isolasjon
Vegger og tak
Isolasjon for vegger og tak i påbygg og tilbygg
VVS
Sanitær og varme
VVS-installasjoner for bad og kjøkken i påbygg og tilbygg
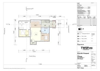
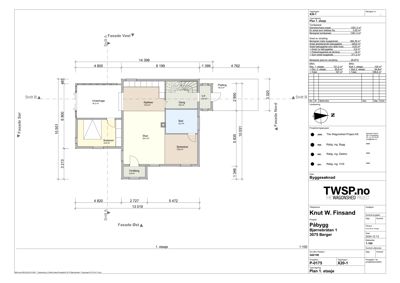
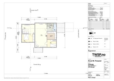
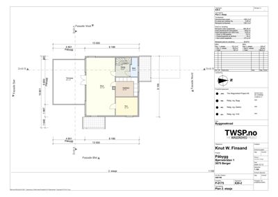
Plantegning
Påbygg 205.2 m²
Etasje 1 101.2 m²
| Rom | Areal | Vinduer | Dører |
|---|---|---|---|
| Vinterhage 101 | 16.2 m² | 1 | 1 |
| Soverom 102 | 12.9 m² | 0 | 1 |
| Kjøkken 103 | 13.6 m² | 1 | 1 |
| Stue 104 | 24.2 m² | 2 | 1 |
| Spisestue 105 | 10.8 m² | 1 | 1 |
| Vindfang 106 | 2.6 m² | 1 | 1 |
| Bad 107 | 8.3 m² | 0 | 1 |
| Gang 108 | 9.6 m² | 0 | 2 |
| Platting 109 | 16.4 m² | 0 | 1 |
| V.F. 110 | 2.9 m² | 0 | 1 |
Etasje 2 104.0 m²
| Rom | Areal | Vinduer | Dører |
|---|---|---|---|
| Stue 201 | 37.7 m² | 1 | 2 |
| Sov 202 | 13.2 m² | 0 | 1 |
| Kjøkken 203 | 9.7 m² | 0 | 1 |
| Sov 204 | 9.1 m² | 0 | 1 |
| Gang 205 | 6.3 m² | 0 | 2 |
| Bad 206 | 3.0 m² | 0 | 1 |
Fasader
Enebolig
Øst
- Materiale
- Tre
- Taktype
- Saltak
- Takmat.
- Tegl
- Vinduer
- 4
- Dører
- 0
- Synlige etasjer
- 2
Sør
- Materiale
- Tre
- Taktype
- Saltak
- Takmat.
- Tegl
- Vinduer
- 3
- Dører
- 1
- Synlige etasjer
- 2
Vest
- Materiale
- Tre
- Taktype
- Saltak
- Takmat.
- Tegl
- Vinduer
- 3
- Dører
- 0
- Balkonger
- 1
- Synlige etasjer
- 2
Nord
- Materiale
- Tre
- Taktype
- Saltak
- Takmat.
- Tegl
- Vinduer
- 3
- Dører
- 1
- Balkonger
- 1
- Synlige etasjer
- 2
Hendelser
13.04.2026
Bjørnebråtan 1, supplering av søknad
09.04.2026
Bjørnebråtan 1, vi trenger flere opplysninger for å behandle søknaden din
20.03.2026
Bjørnebråtan 1 Søknad om tillatelse i ett trinn 340/190