VerticalExtension UnderBehandling Naeringsbygg

Påbygg og fasadeendring på næringsbygg, Harastien 14

📍 Harastien 14 , 2014 BLYSTADLIA

Nøkkelinfo

Sakstype
Påbygg
Bygningstype
Naeringsbygg
Bruksareal
95 m²
Kommune
Rælingen
Fylke
Akershus
Gnr / Bnr
103 / 376
Saksnummer
2026/1286
Fase
Under behandling

Om byggesaken

Påbygg på eksisterende næringsbygg med to etasjer i Harastien 14, inkludert innbygging av terrasse i andre etasje og endringer i bærekonstruksjoner, våtrom og fasade. Bygget har saltak og flatt tak, med fasader i tre og flere nye vinduer og takvinduer. Innvendig omfatter prosjektet blant annet nye rom som soverom, bad, vaskerom, kjøkken og TV-stue, fordelt på to etasjer og kjeller. Det er planlagt nytt underbygg og fasadeendringer med nye vindusrekker. Arealet er ca. 95 m² fordelt på to etasjer, med omfattende tekniske og konstruksjonsmessige endringer.

Produkter og materialer

Tømrer Bærekonstruksjoner og montering

🧱 Tre

Endringer i bærekonstruksjoner, nytt underbygg og påbygg

Tømrerarbeid for bærekonstruksjoner og påbygg

Vinduer Fasadevindu

🧱 Tre med 3-lags energiglass

Antall: 14

Nye vindusrekker i fasader nord, vest, sør og øst, inkludert takvinduer

Nye fasadevinduer og takvinduer for påbygg og fasadeendring

Fasade Trepanel

🧱 Tre

Endring av fasade med ny kledning i tre

Ny trepanelkledning på påbygg og fasadeendringer

Grunnarbeid Fundamentering og underbygg

Nytt underbygg for påbygg

Grunnarbeid og fundamentering for påbygg

Rekkverk Terrasserekkverk

🧱 Tre eller metall

Rekkverk for innbygging av terrasse i andre etasje

Rekkverk for terrasse og balkongområder

VVS Sanitær og varme

Installasjon av sanitærutstyr i nye våtrom og oppdatering av eksisterende

VVS-installasjoner for bad og vaskerom

Gulv Gulvbelegg og parkett

Gulv i nye rom, type ikke spesifisert

Gulvbelegg i påbygg og eksisterende bygg

Bad Våtromsinnredning

Antall: 2

Nye våtrom i påbygg med bad og vaskerom

Innredning og tekniske installasjoner i våtrom

Dører Ytterdører og innvendige dører

🧱 Tre eller tilsvarende

Antall: 15

Dører i nye rom som soverom, bad, vaskerom, bod og entre

Nye ytter- og innerdører i påbygg og eksisterende bygg

Elektro Elektriske installasjoner

Elektriske installasjoner i påbygg og eksisterende bygg, inkludert belysning og el-føringer

Elektroarbeid for nytt og endret bygg

Tak Saltak og flatt tak

🧱 Tre, taktekking ikke spesifisert

Nytt saltak på påbygg, nytt flatt tak på deler av bygget, inkludert takvinduer

Taktekking og takkonstruksjon for påbygg

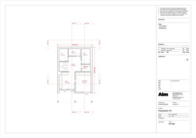
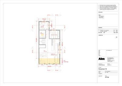
Plantegning

Enebolig 94.7 m²

Etasje 2 57.8 m²

Rom Areal Vinduer Dører
Soverom 201 10.0 m² 1 1
Bad 202 4.7 m² 0 1
Vaskerom 203 4.0 m² 0 1
TV-stue/soverom 204 13.0 m² 0 1
Kjøkken og spisestue 205 21.5 m² 1 1

Etasje 1 36.9 m²

Rom Areal Vinduer Dører
Bod 101 7.1 m² 0 1
Garderobe 102 11.7 m² 0 1
Entre 103 7.5 m² 0 2
Gang 104 8.7 m² 0 2
Vaskerom 105 2.8 m² 0 1
Soverom 106 14.0 m² 1 1
Entre 107 12.0 m² 1 2

Etasje 0 0.0 m²

Rom Areal Vinduer Dører
Sov 1 U01 12.2 m² 0 1
Sov 2 U02 13.7 m² 0 1
Sov 3 U03 15.0 m² 0 1
Bod U04 8.0 m² 0 1
Bade U05 4.6 m² 0 1
Vask U06 4.5 m² 0 1
Entré U07 8.0 m² 0 2
Teknisk U08 0.0 m² 0 0

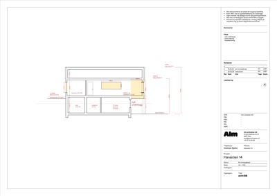
Fasader

Enebolig

Nord
Materiale
Tre
Taktype
Flatt tak
Høyde
6.2 m
Mønehøyde
7.9 m
Vinduer
1
Dører
0
Synlige etasjer
2
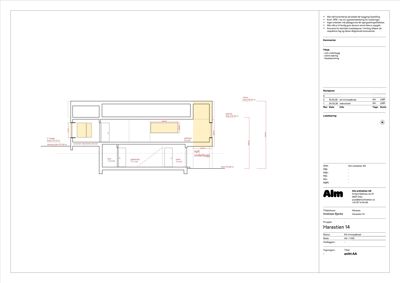
Vest
Materiale
Tre
Taktype
Saltak
Høyde
6.3 m
Mønehøyde
8.0 m
Vinduer
6
Dører
1
Synlige etasjer
2
Sør
Materiale
Tre
Taktype
Saltak
Høyde
7.9 m
Mønehøyde
9.9 m
Vinduer
3
Dører
1
Synlige etasjer
2
Øst
Materiale
Tre
Taktype
Saltak
Høyde
2.7 m
Mønehøyde
2.8 m
Vinduer
3
Dører
0
Synlige etasjer
2

Hovedbygg

Ukjent
Materiale
Tre
Taktype
Saltak
Høyde
3.0 m
Mønehøyde
4.7 m
Vinduer
1
Dører
1
Synlige etasjer
2

Hendelser

10.04.2026 Mangler i mottatt byggesak - Oppføring av påbygg - Endring av bærekonstruksjoner, innvendig og våtrom i bygg - Endring av fasade - Harastien 14 - Gnr/Bnr/Fnr/Snr 103/376
17.03.2026 Søknad om tillatelse i ett trinn - Harastien 14 - Gnr/Bnr/Fnr/Snr 103/376
16.03.2026 Bekreftelse på mottatt søknad - Ett-trinns søknad - Harastien 14. Gnr/Bnr 103/376