VerticalExtension UnderBehandling Naeringsbygg

Ombygging til lakkerings- og bilverksted i Lassemoveien 146

📍 Lassemoveien 146 , 7892 TRONES

Nøkkelinfo

Sakstype
Påbygg
Bygningstype
Naeringsbygg
Bruksareal
520 m²
Kommune
Namsskogan
Fylke
Trøndelag - Trööndelage
Gnr / Bnr
49 / 11
Saksnummer
2024/583
Fase
Under behandling

Om byggesaken

Ombygging av en eldre driftsbygning på Lassemoveien 146 til lakkerings- og bilverksted med et samlet bruksareal på ca. 520 m². Bygget består av betongkonstruksjoner med flatt tak og inneholder lakkeringsbod, lager for lakk, vaskerom, garderober, kontor, tekniske rom og vedlikeholdsrom. Det etableres en brannsikker lakkeringsboks i stål med eget ventilasjonssystem. Innvendige endringer inkluderer oppdeling i brannceller, ventilasjonsanlegg, slamavskiller, oljeutskiller og infiltrasjonsanlegg for avløp. Parkeringsplasser er etablert på nordsiden av bygget. Tiltaket omfatter også universell utforming og oppfyller krav til arbeidsmiljø og brannsikkerhet. Det gis midlertidig dispensasjon fra krav om oljeutskiller med frist for ferdigstillelse av resterende arbeider innen 31.12.2026.

Produkter og materialer

VVS Slamavskiller og infiltrasjonsanlegg

Antall: 1

Slamavskiller og infiltrasjonsanlegg for sanitært avløpsvann, dimensjonert for 2 PE

Avløpsanlegg med slamavskiller og infiltrasjon

Tømrer Innvendige vegger og himlinger

Oppdeling i brannceller med brannskillevegger og himlinger

Innvendige konstruksjoner for brannskille og rominndeling

Ventilasjon Ventilasjonsanlegg

Ventilasjonsanlegg for lakkeringsboksen og verksted, delvis etablert, gjenstående arbeid på ventilasjon

Ventilasjonsanlegg for lakkerings- og bilverksted

Tak Flatt tak

Flatt tak på eksisterende bygg

Eksisterende flatt tak på bygget

Vinduer Fasadevindu

Antall: 16

Vinduer i fasader mot øst, vest og sør

Fasadevinduer i verkstedbygget

VVS Oljeutskiller

Antall: 1

Midlertidig dispensasjon gitt for etablering av oljeutskiller, frist 18.03.2027

Oljeutskiller for verkstedets oljeholdige avløpsvann

Fasade Betong yttervegger

🧱 Betong

Eksisterende betongkonstruksjon med flatt tak

Byggets yttervegger i betong med flatt tak

Grunnarbeid Parkeringsplass og adkomst

Opparbeidet parkeringsplass på nordsiden av bygget

Parkeringsareal for ansatte og kunder

Trapper Innvendig trapp

Antall: 2

Innvendige trapper i bygget

Trapper mellom etasjer i verkstedbygget

Innvendig konstruksjon Branncellebegrensende konstruksjoner

🧱 Stål (lakkeringsboks)

Antall: 1

Brannsikker lakkeringsboks i stål med eget ventilasjonssystem

Innvendig branncelle for lakkeringsboksen

Dører Innvendige dører

Antall: 15

Dører til lager, lakkeringsbod, vaskerom, garderober, kontor, tekniske rom mv.

Innvendige dører i verkstedbygget

Maling Innvendig maling

Innvendig maling av vegger og tak i ombygde lokaler

Overflatebehandling innvendig

Elektro Belysning og elektriske installasjoner

Belysning og elektriske installasjoner tilpasset verksteddrift

Elektroinstallasjoner for verksted og kontor

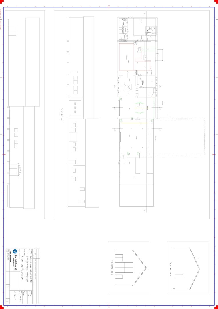
Plantegning

Lakkeringsverksted 0.0 m²

Etasje 1 0.0 m²

Rom Areal Vinduer Dører
Lager for lakk 0 0.0 m² 0 1
Lakkeringsbod 0 0.0 m² 0 1
Vask 0 0.0 m² 0 1
Garderobe 0 0.0 m² 0 1
Betteskott 0 0.0 m² 0 1
Garderobe 0 0.0 m² 0 1
Vask 0 0.0 m² 0 1
Disp/Lager 0 0.0 m² 0 1
Passerom 0 0.0 m² 2 1
Kontor 0 0.0 m² 2 1
Vedlikehold 0 0.0 m² 0 1
Bod 0 0.0 m² 0 1
Teknisk rom 0 0.0 m² 0 1

Etasje 0 0.0 m²

Rom Areal Vinduer Dører
Teknisk 0 0.0 m² 0 1
Lager 0 0.0 m² 0 1
Gjeldeskjeller 0 0.0 m² 0 0

Lakkerings- og bilverksted 0.0 m²

Etasje 0 0.0 m²

Rom Areal Vinduer Dører
Teknisk 001 0.0 m² 0 0
Lager 002 0.0 m² 0 0

Etasje 1 0.0 m²

Rom Areal Vinduer Dører
Lakkeringsbod 101 0.0 m² 0 0
Lager for lakk 102 0.0 m² 0 0
Vaskerom 103 0.0 m² 0 0
Badeklosett 104 0.0 m² 0 0
Garderobe 105 0.0 m² 0 0
Garderobe 106 0.0 m² 0 0
Vask 107 0.0 m² 0 0
Vask 108 0.0 m² 0 0
Disp./Lager 109 0.0 m² 0 0
Passerom 110 0.0 m² 0 0
Kontor 111 0.0 m² 0 0
Vedlikehold 112 0.0 m² 0 0
Vedlikehold 113 0.0 m² 0 0

Fasader

Lakkeringsverksted

Sør
Materiale
Betong
Taktype
Flatt tak
Vinduer
10
Dører
1
Synlige etasjer
1
Vest
Materiale
Betong
Taktype
Flatt tak
Vinduer
1
Dører
1
Synlige etasjer
1
Øst
Materiale
Betong
Taktype
Flatt tak
Vinduer
1
Dører
1
Synlige etasjer
1

Hendelser

09.04.2026 Søknad om forlengelse av midlertidig brukstillatelse - lakkerings- og bilverksted - Lassemoveien 146
19.02.2026 Søknad om forlengelse midlertidig brukstilatelse
11.06.2025 Dato for ferdigstillelse - Søknad om midlertidig brukstillatelse - Lassemoveien 146
11.06.2025 Behandling av søknad om midlertidig brukstillatelse - Lakkerings- og bilverksted - gnr/bnr 49/11 - Lassemoveien 146
02.06.2025 Søknad om midlertidig brukstillatelse
18.03.2025 Oppdatert vedtak: Behandling av søknad om ombygging lakkerings- og bilverksted - gnr/bnr 49/11 - Lassemoveien 146
11.03.2025 Beregning av gebyr - Ombygging lakkeringsverksted - gnr/bnr 49/11 - Lassemoveien 146
11.03.2025 Behandling av søknad om ombygging lakkeringsverksted - gnr/bnr 49/11 - Lassemoveien 146
04.03.2025 Supplering av søknad - gnr/bnr 49/11 - Lassemoveien 146
11.02.2025 Lassemoveien 146 Supplering av søknad 49/11
06.09.2024 Søknad om dispensasjon fra arealformål - gnr/bnr 49/11 - Lassemoveien 146
23.08.2024 Ett-trinns søknad - Endring innvendig i bygg - bærekonstruksjoner i bygg,Endring innvendig i bygg - brannskille i bygg - gnr/bnr 49/11 - Lassemoveien 146