VerticalExtension UnderBehandling Naeringsbygg

Påbygg og bruksendring av fjøs og anneks i Flååsvegen 19

📍 Trongvegen 307 , 7234 LER

Nøkkelinfo

Sakstype
Påbygg
Bygningstype
Naeringsbygg
Bruksareal
135 m²
Kommune
Melhus
Fylke
Trøndelag - Trööndelage
Gnr / Bnr
137 / 1
Saksnummer
2025/2828
Fase
Under behandling

Om byggesaken

Prosjektet omfatter påbygg og bruksendring av eksisterende fjøs og stabbur på gården i Flååsvegen 19, med totalt ca. 135 m² areal. Stabburet skal isoleres innvendig, få nye vinduer og dører, og omgjøres til anneks for bruk i Inn på tunet-virksomheten. I fjøset etableres bad og toalett for besøkende. Det planlegges også et nytt uteområde på ca. 398 m² for snuplass og oppbevaring av rundballer og maskinelt utstyr, tilknyttet gårdens næringsaktivitet. Bygningene har trekledning og saltak, og fjøset har to etasjer med flere rom som oppholdsrom, hønsehus, gang, fjøs og bod. Tiltakene inkluderer også et nytt minirenseanlegg med infiltrasjonsbed. Geotekniske vurderinger viser at tiltakene ikke forverrer områdestabiliteten i kvikkleiresonen. Prosjektet støtter gårdens Inn på tunet-tilbud og tilrettelegger for økt aktivitet og bedre fasiliteter for brukerne.

Produkter og materialer

Fasade Trekledning

🧱 Tre

Eksisterende bygninger med trekledning, vedlikehold og oppgradering ved påbygg og bruksendring

Oppgradering og vedlikehold av trekledning på fjøs og stabbur

Tak Saltak

🧱 Tre og taktekking

Saltak på fjøs og anneks

Taktekking og eventuelle reparasjoner i forbindelse med påbygg

Isolasjon Innvendig isolering av stabbur

Innvendig isolering av deler av stabbur for bruk som anneks

Isolasjon for oppvarmet oppholdsareal i anneks

Bad Bad og toalett i låvebygg

Antall: 1

Etablering av bad og toalett i fjøs/låvebygg for besøkende i Inn på tunet-virksomheten

Sanitærinstallasjoner og våtromsarbeid i låvebygg

Maling Innvendig og utvendig maling

Maling og overflatebehandling av nye og eksisterende flater i anneks og fjøs

Overflatebehandling for beskyttelse og estetikk

Elektro Elektrisk installasjon i anneks

Legge inn strøm i stabbur som skal brukes som anneks

Elektriske installasjoner for belysning og strøm i anneks

Tømrer Påbygg og oppgradering av fjøs og anneks

Tømrerarbeid knyttet til påbygg, isolering, vindus- og dørskifting

Tømrerarbeid for påbygg og bruksendring

Vinduer Utskifting av vinduer i stabbur

Nye vinduer i stabbur som skal isoleres og gjøres om til anneks

Utskifting av vinduer for bedre isolasjon og bruk i anneks

VVS Sanitærinstallasjoner bad/toalett

Antall: 1

Innvendig rør og sanitærarbeid i bad/toalett i låvebygg

VVS-installasjoner for nytt bad og toalett

Dører Utskifting av dører i stabbur

Nye dører i stabbur i forbindelse med bruksendring til anneks

Utskifting av dører for bedre isolasjon og funksjon

Grunnarbeid Minirenseanlegg med infiltrasjonsbed

Antall: 1

Nytt minirenseanlegg med slamsikringstank og infiltrasjonsbed, ca. 2,4 m dypt, 2,0 m bredt og 25 m langt

Avløpsanlegg for sanitært avløp tilknyttet bad/toalett i låvebygg

Grunnarbeid Uteområde for snuplass og lagring

Antall: 398

Etablering av uteområde på ca. 398 m² for snuplass og oppbevaring av rundballer og maskinelt utstyr

Graving, planering og opparbeidelse av uteområde for næringsaktivitet

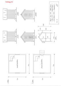
Plantegning

Fjøs 135.2 m²

Etasje 1 111.0 m²

Rom Areal Vinduer Dører
Opphold 101 35.2 m² 1 2
Hønsehus 102 16.5 m² 1 1
Gang 103 4.5 m² 0 3
Fjøs 104 35.2 m² 1 1
Bod 105 10.1 m² 0 1

Etasje 0 24.2 m²

Rom Areal Vinduer Dører
Kjeller 001 24.2 m² 0 1

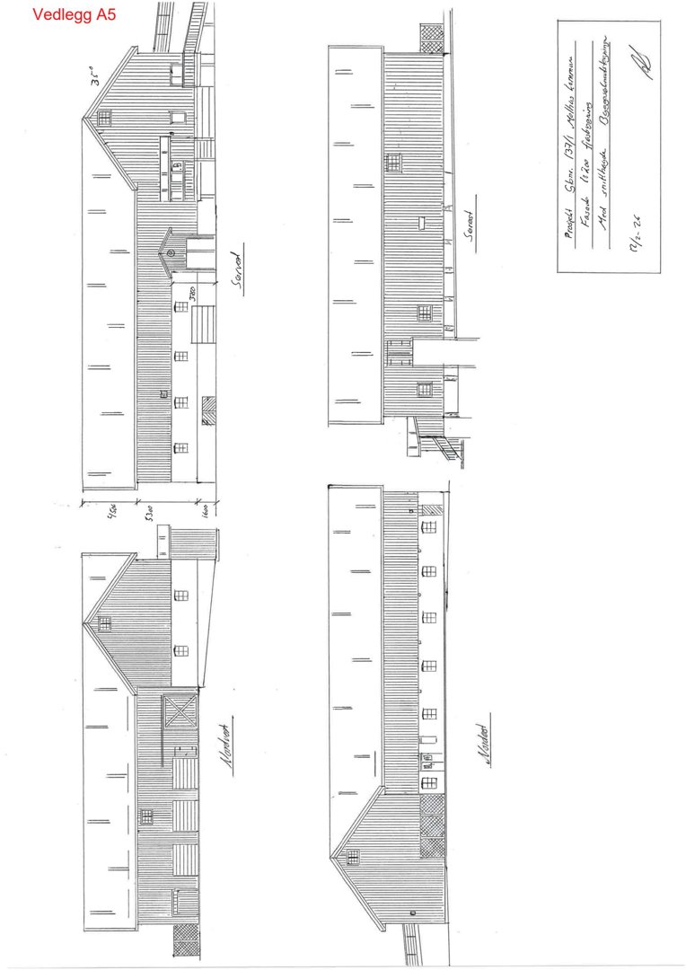
Fasader

Fjøs

Nordvest
Materiale
Tre
Taktype
Saltak
Vinduer
3
Dører
1
Synlige etasjer
2
Nordøst
Materiale
Tre
Taktype
Saltak
Vinduer
6
Dører
1
Synlige etasjer
2
Sørvest
Materiale
Tre
Taktype
Saltak
Vinduer
4
Dører
1
Balkonger
1
Synlige etasjer
2
Sørøst
Materiale
Tre
Taktype
Saltak
Vinduer
4
Dører
1
Balkonger
1
Synlige etasjer
2

Hendelser

10.04.2026 Orientering om status i sak gjeldende søknad om bruksendring fra tilleggsdel til hoveddel på gnr/bnr 137/1 - Flååsvegen 19
09.04.2026 Søknad om dispensasjon - Nytt anlegg - nytt anlegg/konstruksjon - 137/1 - Flååsvegen 19
11.03.2026 Bekreftelse på mottatt søknad - Flååsvegen 19 - gnr/bnr 137/1
11.03.2026 Ett-trinns søknad - Endring av bruk - bruksendring fra tilleggsdel til hoveddel,Nytt anlegg - nytt anlegg/konstruksjon - 137/1 - Flååsvegen 19
28.11.2025 Referat fra forhåndskonferanse gjeldende gnr 137/1 - Flååsvegen 19
04.09.2025 Møtebekreftelse - Forhåndskonferanse gjeldende gnr/bnr 137/1 - Flååsvegen 19
01.09.2025 Bekreftelse på mottatt anmodning om forhåndskonferanse Flååsvegen 19
28.08.2025 Timebestilling av forhåndskonferanse i byggesak