Rehabilitation Soeknad Naeringsbygg

Ombygging av næringsbygg til tannlegekontor i Gate 1 112, Måløy

📍 Gate 1 112 , 6700 MÅLØY

Nøkkelinfo

Sakstype
Rehabilitering
Bygningstype
Naeringsbygg
Bruksareal
184 m²
Kommune
Kinn
Fylke
Vestland
Gnr / Bnr
315 / 170
Saksnummer
2026/4405
Fase
Søknad

Om byggesaken

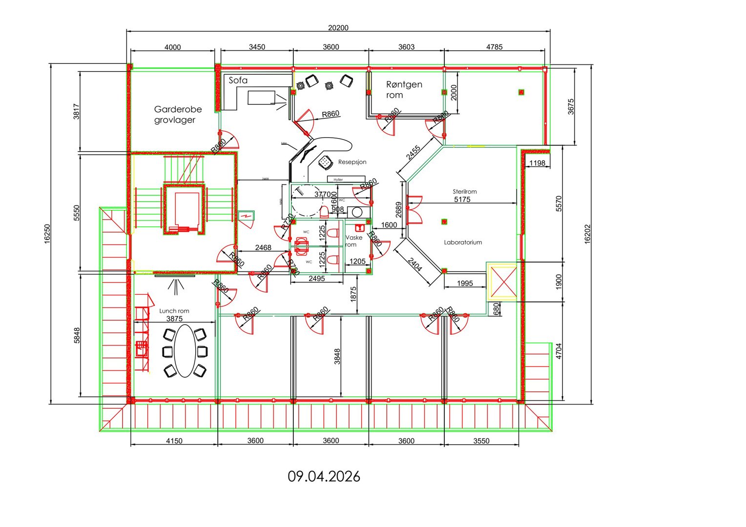
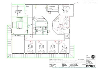
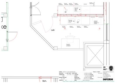
Ombygging av eksisterende kontorbygg på 184,4 m² til et moderne tannlegekontor med flere behandlingsrom, røntgenrom, sterilrom, laboratorium, resepsjon, garderobe, vaskerom, WC og personalrom. Lokalet tilpasses helserelatert virksomhet med nye tekniske installasjoner for ventilasjon, elektro og VVS. Interiøret inkluderer spesialinnredning som kombinasjonsskap, skuffeskap og vaskeskap i hvit melamin med aluminiumdetaljer. Ventilasjonsanlegget oppgraderes for å tilfredsstille krav til luftmengder og trykkforhold i behandlingsrom. Prosjektet omfatter også omdisponering av rom og flytting av kjøkken/spiserom.

Produkter og materialer

Elektro Elektriske installasjoner

Elektroarbeid utført av SÆTREN AS med sentral godkjenning

Elektriske installasjoner tilpasset tannlegekontorets behov

Fasade Innvendige veggkledninger

🧱 Hvit melamin med aluminiumdetaljer

Veggbekledning i hvit melamin U11209VV med 20 mm og 30 mm tykkelse, aluminium 2xR6 og 300 mm aluminium lister

Innvendige veggflater og skapvegger i behandlingsrom og laboratorier

Dører Innvendige dører

Antall: 27

Dører til behandlingsrom, røntgenrom, sterilrom, laboratorier, WC og garderober

Nye og eksisterende innvendige dører i ombygde lokaler

Ventilasjon Ventilasjonsanlegg

Ventilasjonsanlegg tilpasset krav for tannhelsetjenester med luftmengder, filtrering og trykkforhold

Oppgradering og tilpasning av ventilasjon for helserelatert virksomhet

Tømrer Innvendige ombyggingsarbeider

Ombygging av eksisterende kontorlokaler med nye vegger, dører og romdisponering

Innvendige konstruksjoner og tilpasninger for tannlegekontor

Kjøkken Laboratorieinnredning og benkeplater

🧱 Melamin og aluminium

Kombinasjonsskap, skuffeskap, vaskeskap med selvåpnende funksjon, bordplater 1000x615 mm

Innredning for laboratorier og sterilrom med spesialskap og benkeplater

VVS Sanitærinstallasjoner

Oppgradering av sanitærinstallasjoner i WC, vaskerom og sterilrom

Nye og tilpassede VVS-installasjoner for tannlegekontor

Trapper Innvendig trapp

Antall: 1

En innvendig trapp i bygget

Trapp mellom etasjer i eksisterende bygg

Plantegning

Tannlegekontor 184.4 m²

Etasje 1 184.4 m²

Rom Areal Vinduer Dører
Garderobe grovlager 101 14.8 m² 0 1
Sofa 102 12.2 m² 0 1
Røntgen rom 103 14.5 m² 0 2
Resepsjon 104 18.6 m² 0 2
Sterilrom 105 29.2 m² 0 2
Laboratorium 106 33.6 m² 0 2
Vaske rom 107 14.8 m² 0 2
WC 108 3.6 m² 0 1
WC 109 3.6 m² 0 1
Lunch rom 110 14.9 m² 0 1
Behandlingsrom 1 1 0.0 m² 0 1
Behandlingsrom 2 2 0.0 m² 0 1
Behandlingsrom 3 3 0.0 m² 0 1
Behandlingsrom 4 4 0.0 m² 0 1
Røntgen rom 5 0.0 m² 0 1
Steril 6 0.0 m² 0 1
Lab 7 0.0 m² 0 1
Vaske rom 8 0.0 m² 0 1
WC 9 0.0 m² 0 1
WC 10 0.0 m² 0 1
Resepsjon 11 0.0 m² 0 1
Garderobe grovlager 12 0.0 m² 0 1
Sofa 13 0.0 m² 0 0
Røntgenrom 3428 34.3 m² 0 1

Kontor 0.0 m²

Etasje 1 0.0 m²

Rom Areal Vinduer Dører
Lager Lager 0.0 m² 1 1
Møterom Meterom 0.0 m² 0 1
Korridor Korridor 0.0 m² 0 0
Garderobe Garderobe 0.0 m² 0 1
Vaskerom Vaskerom 0.0 m² 0 1
Kontor Kontor 0.0 m² 0 1
Kontor Kontor 0.0 m² 0 1
Kontor Kontor 0.0 m² 0 1
Kontor Kontor 0.0 m² 0 1
Kontor Kontor 0.0 m² 0 1
Kontor Kontor 0.0 m² 0 1
Teknisk Teknisk 0.0 m² 0 1

Etasje 2 0.0 m²

Rom Areal Vinduer Dører
WC WC 0.0 m² 0 1
WC WC 0.0 m² 0 1
Kontor Kontor 0.0 m² 0 1
Kontor Kontor 0.0 m² 0 1
Kontor Kontor 0.0 m² 0 1
Kontor Kontor 0.0 m² 0 1
Kontor Kontor 0.0 m² 0 1
Kontor Kontor 0.0 m² 0 1
Kontor Kontor 0.0 m² 0 1
Kontor Kontor 0.0 m² 0 1
Kontor Kontor 0.0 m² 0 1
Kontor Kontor 0.0 m² 0 1

Hendelser

21.04.2026 Søknad om tillatelse i ett trinn gbnr 315/170