Rehabilitation UnderBehandling Naeringsbygg

Oppgradering av næringsbygg på Grønland 55, Drammen

📍 Grønland 55 , 3045 DRAMMEN

Nøkkelinfo

Sakstype
Rehabilitering
Bygningstype
Naeringsbygg
Bruksareal
11,289 m²
Kommune
Drammen
Fylke
Buskerud
Gnr / Bnr
110 / 960
Saksnummer
24/39299
Fase
Under behandling

Om byggesaken

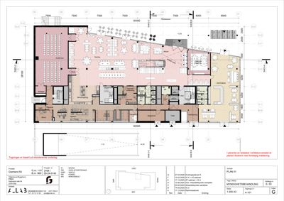
Grønland 55 er et eksisterende kontorbygg på ca. 11 000 m² BRA, oppført i 2009, som gjennomgår en omfattende rehabilitering og oppgradering for å tilpasses nye leietakere og omformes fra et introvert enbrukerbygg til et ekstrovert flerbrukerbygg. Tiltaket inkluderer utvidelse av første etasje med ca. 125 m² til utadrettet virksomhet, fasadeendringer med ny fargepalett, teknisk påbygg på tak med innkapslet teknisk rom, bruksendring av deler av første etasje, innvendige ombygginger med inngrep i bærende konstruksjoner, etablering av takterrasse, samt omfattende innvendige arbeider i flere etasjer. Bygget har 7 etasjer over bakken og kjeller med parkeringskjeller og tekniske rom. Det er planlagt høy grad av ombruk (>90%) av eksisterende materialer og komponenter, inkludert glassfasader, dører, himlinger, gulv og inventar. Prosjektet er underlagt krav til miljøsanering, brannsikkerhet, bygningsfysikk, konstruksjonssikkerhet og universell utforming. Det foreligger dispensasjoner fra reguleringsplanens høyde- og parkeringsbestemmelser. Arbeidstilsynet har gitt samtykke til tiltaket. Gjennomføringsplan og ansvarsretter er etablert for alle relevante fagområder. Bygget ligger i et område med aktsomhet for flom og kvikkleire, men tiltaket vurderes ikke å forverre områdestabiliteten.

Produkter og materialer

Terrasse Takterrasse med rekkverk

🧱 Tremmegulv og rekkverk i aluminium eller tilsvarende

Antall: 1

Ny takterrasse i plan 7 med rekkverk tilsvarende eksisterende takterrasse i plan 5

Utendørs takterrasse med gulv og rekkverk

Rekkverk Rekkverk på takterrasse

🧱 Aluminium eller tilsvarende

Antall: 1

Rekkverk på ny takterrasse i plan 7, utførelse som eksisterende takterrasse

Sikkerhetsrekkverk på takterrasse

Elektro Elektroinstallasjoner

Generelle elektroinstallasjoner i bygget

Elektroarbeider for byggets tekniske anlegg

Fasade Glassfasade med aluminiumprofiler

🧱 Aluminium med høy grad av resirkulert materiale

Glassfasader med NDVK kontroll, IPF kontrollordning, og kuldebrobryter i dekkeforkanter

Nye og eksisterende glassfasader med krav til varmeisolering, lufttetthet, regntetthet, damptetthet, solavskjerming og dagslys

Betong Plasstøpte betongkonstruksjoner

Bæresystem i kjeller og etasjeskiller, inkl. lukking av atrium i plan 5

Eksisterende og nye betongkonstruksjoner for bæresystem og dekker

Maling Innvendige og utvendige malte flater

Maling av vegger og himlinger, med krav til luminanskontraster

Overflatebehandling av innvendige og utvendige flater

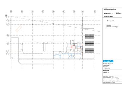
Annet Miljøsanering og farlig avfallshåndtering

Miljøkartlegging og sanering av helse- og miljøfarlige stoffer som ftalater, PCB, tungmetaller, klorparafiner, EE-avfall, asbest mv.

Miljøsaneringstjenester og håndtering av farlig avfall i rehabiliteringsprosjektet

Ventilasjon Ventilasjon- og klimainstallasjoner

Ventilasjons- og klimainstallasjoner i rehabiliteringsprosjektet

Ventilasjons- og klimainstallasjoner for inneklima

VVS Sanitær- og slukkeinstallasjoner

Sanitærinstallasjoner, slukkeinstallasjoner og varme- og kuldeinstallasjoner

VVS-installasjoner for sanitær, brannslukking og varme/kulde

Vinduer Isolerglassvinduer

Antall: 48

2-lags isolerglass med verdi 65/33, type HAGEN, levert av Glassfabrikken AS, Larvik

Isolerglassvinduer i glassfasader, inkludert i atrium og kontoretasjer, med miljøfarlige stoffer i fugemasse som krever forsvarlig håndtering ved riving

Dører Glassdører

Antall: 195

Glassdører i kontorarealer, inkludert nøddører ved trapper, brannsikre og med høy ombruksverdi

Mur Murarbeid

Murarbeider i rehabiliteringsprosjektet

Murarbeid knyttet til rehabilitering og ombygging

Grunnarbeid Drenering og overvannshåndtering

Terrengutforming for å lede vann vekk fra bygget, drenering iht. Byggforskserien

Grunnarbeid for drenering og overvannshåndtering

Tak Takterrasse med tremmegulv

🧱 Tremmegulv

Eksisterende takterrasse i plan 5, ny ytterdør til terrasse, membran med sokkelovergang iht. Byggforsk datablad

Takterrasse med ny dør og oppbygget terrassegulv, med membran og sokkelovergang for fuktsikring

Gulv Teppegulv

🧱 Ftalatfritt

Tarkett Essence DESSO, ftalatfritt produkt

Teppegulv i kontorarealer i 4., 6. og 7. etasje, med god ombruksverdi og krever rengjøring

Kjøkken Kjøkkeninnredning og kantineutstyr

Kjøkkeninnredning i kantine og kontorkjøkken, med mulighet for ombruk eller demontering for ombruk andre steder

Innredning og utstyr for kantine og kjøkken

Fasade Teglstein

🧱 Bratsberg egenprodusert teglstein

Beholdes i fasaden, god stand

Teglsteinsfasade som bevares og inngår i byggets visuelle uttrykk

Stål Stålkonstruksjoner

Montering av stålkonstruksjoner for bærende elementer

Stålkonstruksjoner for bærende ramme og montasje

Isolasjon Isolasjon i vegger, tak og gulv

Isolasjon for varmeisolering, kondensisolering og kuldebrobryting i nye og eksisterende konstruksjoner

Isolasjonsmaterialer for klimaskjerm og tekniske rom

Bad Våtrom og garderober

Våtrom med membran, sluk, vanntette overflater, robust utførelse for storkjøkken og garderober

Våtromsarbeider med membran og fliser, inkl. storkjøkken og garderober

Vinduer Glassfelt i systemvegger

Antall: 323

Glassfelt i kontordører og systemvegger med høy ombruksverdi, demonterbare og kan ombrukes i samme eller andre bygg

Tømrer Tømrerarbeid og montering av trekonstruksjoner

🧱 Trekonstruksjoner

Innvendige og utvendige trekonstruksjoner, inkl. trapper og rekkverk

Tømrerarbeid for montering av trekonstruksjoner og trapper

Gulv Linoleum gulvbelegg

🧱 Ftalatholdig lim under gulvbelegg

Forbo Artoleum 5315 i kontorarealer, med ftalater i lim som må håndteres som farlig avfall

Linoleum gulvbelegg i kontorarealer, med ftalatholdig lim som krever særskilt håndtering ved riving

Elektro Brannalarmanlegg og ledesystemer

Installasjon av brannalarmanlegg og ledesystemer

Elektroinstallasjoner for brannsikkerhet og ledelys

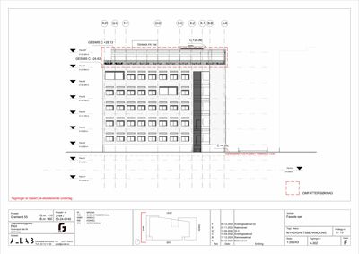
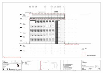
Fasader

Hovedbygg

Øst
Materiale
Glass
Taktype
Flatt tak
Høyde
27.5 m
Mønehøyde
30.2 m
Vinduer
48
Dører
2
Synlige etasjer
6
Sør
Materiale
Betong
Taktype
Flatt tak
Høyde
24.6 m
Mønehøyde
28.1 m
Vinduer
28
Dører
0
Synlige etasjer
7
Vest
Materiale
Glass
Taktype
Flatt tak
Høyde
28.1 m
Mønehøyde
30.7 m
Vinduer
12
Dører
2
Synlige etasjer
6
Ukjent
Materiale
Tegl
Taktype
Flatt tak
Høyde
27.5 m
Vinduer
42
Dører
3
Synlige etasjer
6

Grønland 55

Nord
Materiale
Glass
Taktype
Flatt tak
Høyde
28.1 m
Mønehøyde
28.9 m
Vinduer
24
Dører
1
Balkonger
1
Synlige etasjer
8

NAV DRAMMEN

Vest
Materiale
Glass
Høyde
27.5 m
Vinduer
42
Dører
0
Synlige etasjer
6
Ukjent
Materiale
Glass
Høyde
27.5 m
Vinduer
24
Dører
0
Balkonger
1
Synlige etasjer
6

Hendelser

14.04.2026 Grønland 55, vi trenger flere opplysninger for å behandle søknaden din
30.03.2026 Grønland 55 Søknad om endring av gitt tillatelse eller godkjenning 110/960
27.03.2026 Grønland 55, igangsettingstillatelse nr. 5 for oppgradering av næringsbygg
27.03.2026 Grønland 55 Supplering av søknad 110/960
27.03.2026 Grønland 55 Søknad om igangsettingstillatelse 110/960
24.03.2026 Grønland 55, vi innvilger søknaden om samtykke etter automatisk saksbehandling
16.03.2026 Kopi: Grønland 55 - Vi innvilger søknaden om samtykke etter automatisk saksbehandling
03.02.2026 Grønland 55, tillatelse til endring av tidligere gitt tillatelse
02.02.2026 Grønland 55, komplettering av søknad
19.01.2026 Grønland 55 Søknad om endring av gitt tillatelse eller godkjenning 110/960
08.01.2026 Grønland 55, igangsettingstillatelse nr. 4 og unntak fra TEK17 § 13-7
18.12.2025 Grønland 55 Søknad om igangsettingstillatelse 110/960
17.12.2025 Grønland 55, Vi innvilger søknaden om samtykke etter automatisk saksbehandling
27.06.2025 Grønland 55, igangsettingstillatelse nr. 3 og unntak fra TEK17 § 13-7
24.06.2025 Grønland 55 Gjennomføringsplan 110/960
23.06.2025 Grønland 55 Søknad om igangsettingstillatelse 110/960
16.06.2025 Kopi: Grønland 55, Vi innvilger søknaden om samtykke etter automatisk saksbehandling
05.06.2025 Grønland 55, igangsettingstillatelse nr. 2 for oppgradering av næringsbygg
02.06.2025 Grønland 55, bekreftelse vedrørende omfang av søknad
28.05.2025 Grønland 55, Supplering IG2 - samtykke fra Arbeidstilsynet
28.05.2025 Grønland 55, Kopi: Vi innvilger søknaden om samtykke etter automatisk saksbehandling
20.05.2025 Grønland 55, vi trenger flere opplysninger for å behandle søknaden din
14.05.2025 Grønland 55 Søknad om igangsettingstillatelse 110/960
15.04.2025 Grønland 55, igangsettingstillatelse nr. 1 for oppgradering av næringsbygg
11.04.2025 Grønland 55, vedrørende Søknad om igangsettingstillatelse for deler av tiltaket
11.04.2025 Grønland 55 Søknad om endring av gitt tillatelse eller godkjenning 110/960
24.03.2025 Grønland 55 Søknad om igangsettingstillatelse 110/960
28.02.2025 Grønland 55, tillatelse til oppgradering av næringsbygg, med dispensasjon fra maks gesimshøyde og parkeringskrav
19.02.2025 Grønland 55, supplering - Kommentar til uttalelse fra byantikvaren
17.02.2025 Grønland 55 Gjennomføringsplan 110/960
13.02.2025 Grønland 55, supplering av søknad vedrørende rivearbeider
13.02.2025 Grønland 55, orientering om tilbakemelding fra byantikvaren
20.01.2025 Grønland 55, søknad om dispensasjon fra parkeringskrav
13.01.2025 Grønland 55, vi trenger flere opplysninger for å behandle søknaden din
23.12.2024 Grønland 55 - supplering til innsendt ramme - Miljøsaneringsbeskrivelse
19.12.2024 Grønland 55, søknad om rammetillatelse
03.12.2024 Grønland 55, Kopi - Vedlegg til Nabovarsel
28.11.2024 Grønland 55, Referat fra forhåndskonferanse
05.11.2024 Grønland 55, orientering om tidspunkt for forhåndskonferanse
29.10.2024 Grønland 55, Anmodning om forhåndskonferanse