Rehabilitation Rammetillatelse Naeringsbygg

Ombygging av datasenter med fasadeendring i Handelandsvegen 140, Sauda

πŸ“ Handelandsvegen 140 , 4200 SAUDA

NΓΈkkelinfo

Sakstype
Rehabilitering
Bygningstype
Naeringsbygg
Bruksareal
650 mΒ²
Kommune
Sauda
Fylke
Rogaland
Gnr / Bnr
43 / 148
Saksnummer
2025/648
Fase
Rammetillatelse

Om byggesaken

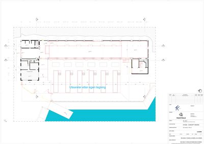
Ombygging av eksisterende kraftstasjon til datasenter for kunstig intelligens i Handelandsvegen 140, Sauda. Prosjektet inkluderer etablering av en ny 2. etasje i tidligere maskinhall med økning av bruksareal på 650 m², fasadeendringer med ny fasade og innfestninger, samt bygging av støttemur mot Storlivannet for å utvide utearealet til plassering av fem containerbaserte dieselgeneratorer. Det etableres nytt betongdekke innendørs, og kjøleanlegget endres fra luft- til vannkjøling med vann hentet fra Storlivatnet. Datasenteret vil ha tekniske installasjoner som nødstrømsgeneratorer, ventilasjon, sanitær, brannslokke- og alarmanlegg. Støyvurderinger viser at normal drift gir akseptable støynivåer, mens testkjøring av nødstrømsaggregater er begrenset til hverdager mellom 08:00 og 18:00. Skredfarevurderinger konkluderer med at tiltaket tilfredsstiller sikkerhetsklasse S1 i TEK17. Prosjektet har godkjente ansvarsretter og uavhengig kontroll for brannkonsept.

Produkter og materialer

Vinduer Vindusåpninger

Prosjektering og bygging av vindusåpninger i ny fasade

Vindusåpninger i ny fasade

Annet Vannkjøleanlegg

Vannkjøling med inntak og utslipp av vann fra Storlivatnet, temperaturøkning opp til 12 ℃ ved utslipp

Vannbasert kjølesystem for datasenteret

Tømrer Innvendige arbeider og montering

Innvendig montering av mezzanin i datahall, tømrerarbeider i forbindelse med vindusåpninger

Innvendige konstruksjoner og tilpasninger i datasenteret

Annet Støttemur

🧱 Betong eller Big Block

Støttemur i eksisterende skråning mot vann for å utvide uteareal

Støttemur for å gi plass til nødstrømsgeneratorer

Brannvern Brannslokkeanlegg og brannalarmanlegg

Brannslokkeanlegg og brannalarmanlegg i datasenter

Brannsikkerhetstiltak i datasenteret

Betong Betongfundamenter og mur

🧱 Betong og Big Block fra Ølen Betong eller tilsvarende

Betongfundamenter for generatorer, betongmur/støttemur mot vann, betongdekke inkl. armering for ny 2. etasje i datahall

Fundamentering og støttemur for utvidelse av uteareal og ny etasje i datasenter

VVS Sanitærinstallasjoner

Sanitærinstallasjoner i prosjektet

Sanitærinstallasjoner for datasenter og personalarealer

Grunnarbeid Planering og murarbeid

Planering av grunn for generatorer, mur og utfylling i eksisterende skråning mot vann

Grunnarbeider for støttemur og plassering av nødstrømsgeneratorer

Stål Stålkonstruksjon for dekke 2. etasje

🧱 Stål

Montering av stålkonstruksjon for nytt dekke i datahall

Bærekonstruksjon for ny 2. etasje i datasenter

Annet Dieselgeneratorer i containere

Antall: 5

Fem containeriserte dieselgeneratorer, 2.5 MVA hver, lydisolerte containere, lydnivå 75 dBA @ 5 m

Nødstrømsaggregater plassert utendørs for backup-strøm

Tak Taktekking

Taktekking i prosjektet

Nytt tak på fasadeendringer

Grunnarbeid Drenering

Erosjonssikret dreneringskanal ved støttemur

Drenering for å sikre stabilitet og hindre erosjon

Fasade Ny fasade inkl. innfestninger

Nye fasadetegninger for bygget, arkitektur og utforming av fasader

Fasadeendringer på eksisterende bygg i forbindelse med ombygging til datasenter

Elektro Nødlys og ledelys

Nødlys og ledelys i prosjektet

Nødlys og ledelys i datasenter og personalarealer

Ventilasjon Ventilasjon for kontor, personal og datahaller

Ventilasjon i kontor- og personalarealer samt datahaller

Ventilasjonsanlegg for datasenter og tilhørende arealer

Hendelser

21.04.2026 Handelandsvegen 140 Supplering av søknad 43/148
09.04.2026 Vi trenger flere opplysninger for å behandle søknaden – varsel om avslag på søknad
27.03.2026 Tilbakemelding om mangler - 43/148, Handelandsvegen 140 - Ombygging av datasenter til KI
26.03.2026 Handelandsvegen 140 Supplering av søknad 43/148
27.02.2026 Handelandsvegen 140 Søknad om endring av gitt tillatelse eller godkjenning 43/148
19.12.2025 Mottatt nabovarsel for byggeplaner i Handelandsvegen 140, 4200 Sauda (gårdsnr. 43, bruksnr. 148)
26.11.2025 Handelandsvegen 140 Supplering av søknad 43/148
25.11.2025 Handelandsvegen 140 Supplering av søknad 43/148
17.11.2025 Handelandsvegen 140 Supplering av søknad 43/148
10.11.2025 Handelandsvegen 140 Supplering av søknad 43/148
22.09.2025 Melding om vedtak - 43/148, Handelandsvegen 140 - Ombygging av datasenter til KI
22.09.2025 Tillatelse til tiltak - 43/148, Handelandsvegen 140 - Ombygging av datasenter til KI
11.09.2025 Handelandsvegen 140 Supplering av søknad 43/148
29.08.2025 Fortsatt mangler ved søknaden - 43/148, Handelandsvegen 140 - Ombygging av datasenter til KI
12.08.2025 -Integrasjonsnotat – Støyvurderingsrapport
05.08.2025 Handelandsvegen 140 Supplering av søknad 43/148
05.08.2025 Søknad Datasenter Hellandsbygd Sak 25/648
17.07.2025 Tilbakemelding om mangler - 43/148, Handelandsvegen 140 - Ombygging av datasenter til KI
17.07.2025 Handelandsvegen 140
16.07.2025 Handelandsvegen 140
16.07.2025 Handelandsvegen 140
16.07.2025 Handelandsveien 140
15.07.2025 Handelandsvegen 140 Supplering av søknad 43/148
15.07.2025 Tilbakemelding om mangler - 43/148, Handelandsvegen 140 - Ombygging av datasenter til KI
08.07.2025 Handelandsvegen 140 Søknad om tillatelse i ett trinn 43/148