Rehabilitation Ferdigattest Naeringsbygg

Piperehabilitering og skorsteinsrehabilitering i Smøla kommune

Nøkkelinfo

Sakstype
Rehabilitering
Bygningstype
Naeringsbygg
Kommune
Kristiansund
Fylke
Møre og Romsdal
Saksnummer
20/04560
Fase
Ferdigattest

Om byggesaken

Prosjektet omfatter rehabilitering av eksisterende piper og skorsteiner på flere næringsbygg og boliger i Smøla kommune, blant annet på adresser som Mauskarsundet 2 og 11, Skjærgårdsveien 873, Vattholmveien 6 og Einesveien 72. Rehabiliteringen inkluderer utskifting og innsetting av nye stålrør i pipene, med materialer som 150 mm syrefast stålrør i kvalitet 316L (1.4404) i henhold til EN-1856-2 standard. Arbeidene utføres av ansvarlige foretak med sentral godkjenning eller relevant kompetanse, og omfatter prosjektering, utførelse og dokumentasjon i henhold til plan- og bygningsloven. Tiltakene er ferdigattestert og godkjent av kommunen, og inkluderer også overlevering av FDV-dokumentasjon til eierne. Prosjektene er tiltaksklasse 1 og gjelder tekniske installasjoner i bygg, med fokus på sikkerhet og funksjonalitet i pipe- og skorsteinsanlegg.

Produkter og materialer

Dokumentasjon FDV-dokumentasjon

Dokumentasjon for forvaltning, drift og vedlikehold overlevert eier.

Nødvendig dokumentasjon for drift og vedlikehold av rehabiliterte pipeløsninger.

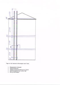
Pipe Stålrør til piperehabilitering

🧱 Syrefast stål 316L (1.4404)

150 mm diameter, EN-1856-2 standard, T600N1WV2L50050GL50050, korrosjonsklasse L50050

Innsetting av nye stålrør i eksisterende piper for rehabilitering og forbedring av skorsteinsfunksjon og sikkerhet.

Utførelse Ansvarlig utførelse

Utførelse av piperehabilitering med ansvar for kvalitet og samsvar med tillatelse.

Utførende entreprenør for rehabilitering av skorstein og pipe.

Prosjektering Ansvarlig prosjektering

Planlegging og kvalitetssikring av piperehabilitering i henhold til plan- og bygningsloven og forskrifter.

Prosjektering av tekniske installasjoner for piperehabilitering.

Tømrer Rehabilitering av skorstein

Rehabilitering av eksisterende skorstein inkludert reparasjon og oppgradering av konstruksjon og tetting.

Arbeid knyttet til rehabilitering av skorsteinsstruktur for å sikre funksjonalitet og brannsikkerhet.

Hendelser

17.04.2026 20/04560-100 Vedr. BYGG-26-00150-2 - 051/001 - Vedtak om piperehabilitering
17.04.2026 20/04560-99 Vedr. BYGG-26-00149-2 - 035/014 - Vedtak om piperehabilitering
13.04.2026 20/04560-98 GID 052/109 - Vedtak om ferdigattest for piperehabilitering
31.03.2026 20/04560-97 Vedr. BYGG-26-00091-5 - 052/217 - Vedtak om ferdigattest for piperehabilitering
23.03.2026 20/04560-96 Vedr. BYGG-26-00111-2 - 052/206 - Vedtak om piperehabilitering
23.03.2026 20/04560-95 Vedr. BYGG-26-00108-2 - 052/108 - Vedtak om piperehabilitering
16.03.2026 20/04560-94 Vedr. BYGG-26-00105-2 - 051/008 - Vedtak om piperehabilitering - Kopi av brev til utfører
12.03.2026 20/04560-93 Vedr. BYGG-25-00326-5 - 044/030 - Vedtak om ferdigattest for skorsteinrehabilitering
09.03.2026 20/04560-92 Vedr. BYGG-25-00387-4 - 052/160 - Vedtak om ferdigattest for skorsteinsrehabilitering
09.03.2026 20/04560-91 Vedr. BYGG-25-00387-6 - 052/160 - Vedtak om ferdigattest for skorsteinsrehabilitering
09.03.2026 20/04560-90 Vedr. BYGG-25-00335-4 - 052/177 - Vedtak om ferdigattest for skorsteinsrehabilitering
05.03.2026 20/04560-89 Vedr. BYGG-26-00090-2 - 052/109 - Vedtak om piperehabilitering