Rehabilitation UnderBehandling Naeringsbygg

Ombygging og fasadeendring av Amfi plan 1, Saunesvegen 2

📍 Saunesvegen 10 , 6065 ULSTEINVIK

Nøkkelinfo

Sakstype
Rehabilitering
Bygningstype
Naeringsbygg
Bruksareal
1,400 m²
Kommune
Ulstein
Fylke
Møre og Romsdal
Gnr / Bnr
8 / 220
Saksnummer
2024/438
Fase
Under behandling

Om byggesaken

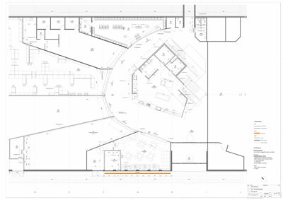
Ombygging av deler av plan 1 i Amfi kjøpesenter i Saunesvegen 2, Ulsteinvik, med nye delevegger, tekniske installasjoner og våtrom. Prosjektet inkluderer også en fasadeendring på sørfasaden med nye glassfelt og tettfelt over en lengde på ca. 13,9 meter. Bygget er et næringsbygg med flere butikklokaler og fellesarealer, totalt ca. 1400 m² BRA. Tiltaket omfatter også oppgradering av brannkonsept, ventilasjon, sanitær- og slukkeinstallasjoner, samt brannalarmanlegg og ledesystem. Prosjektet har gjennomført obligatorisk uavhengig kontroll og har mottatt midlertidig brukstillatelse.

Produkter og materialer

Betong Plasstøpte betongkonstruksjoner

🧱 Betong, armering

Fundamenter, vegger, søyler, bjelker og dekker i ombygget areal

Betongarbeider i forbindelse med ombygging

Slukkeinstallasjoner Sprinkleranlegg

Montering av komplette rørsystemer og utstyr, lyd- og branntetting av rørføringer

Slukkeinstallasjoner i ombygget areal

Sanitær Sanitærinstallasjoner

Montering av komplette rørsystemer og tilhørende komponenter, lyd- og branntetting av rørføringer

Sanitærinstallasjoner i våtrom og øvrige deler av ombygget plan 1

Maling Innvendig og utvendig maling

Maling av vegger, himlinger og fasadeelementer i ombygget areal

Overflatebehandling i ombygget areal

Grunnarbeid Ingen nye grunnarbeider

Ingen endringer i grunnarbeid eller tilkomst

Tiltaket medfører ingen ny eller endret tilkomst eller grunnarbeid

Fasade Glassfasade sør

🧱 Glass og tettfelt

Ny glasfasade på ca. 13,9 m lengde med kombinasjon av glassfelt og tettfelt

Fasadeendring med nye glassfelt og tettfelt på sørfasade i 1. etasje

Ventilasjon Balansert ventilasjonsanlegg

Montering av komplett balansert ventilasjonsanlegg med varme-, kjøle- og gjenvinningsfunksjoner, lyd- og brannisolering

Ventilasjons- og klimainstallasjoner i ombygget plan 1

Tømrer Innvendige delevegger

🧱 Tre, gips, mineralull isolasjon

Nye delevegger i plan 1, inkludert bærende og ikke-bærende konstruksjoner

Oppføring og montering av nye innvendige vegger i ombygget areal

Glass Glasskonstruksjoner fasade

🧱 Glass

Montering av glasskonstruksjoner i ny fasade sør

Glassfasadeelementer i sørfasade

Brannvern Brannalarmanlegg og ledesystem

Installasjon av brannalarmanlegg og ledesystem i henhold til brannkonsept

Brannalarmanlegg og ledesystem i ombygget areal

Plantegning

Enebolig 244.5 m²

Etasje 1 244.5 m²

Rom Areal Vinduer Dører
Stue 101 42.5 m² 3 2
Kjøkken 102 18.2 m² 1 1
Spisestue 103 12.0 m² 0 1
Gang 104 8.5 m² 0 3
Bad 105 6.5 m² 0 1
Toalett 106 2.5 m² 0 1
Vaskerom 107 4.5 m² 0 1
Gang 108 12.0 m² 0 2
Soverom 109 14.5 m² 1 1
Soverom 110 16.0 m² 1 1
Soverom 111 15.5 m² 1 1
Soverom 112 14.0 m² 1 1
Soverom 113 13.5 m² 1 1
Sovegang 114 10.0 m² 0 2
Bad 115 8.5 m² 0 1
Toalett 116 2.0 m² 0 1
Gang 117 15.0 m² 0 2
Gang 118 10.0 m² 0 1
Gang 119 12.0 m² 0 1
Gang 120 10.0 m² 0 1
Gang 121 10.0 m² 0 1
Gang 122 10.0 m² 0 1
Gang 123 10.0 m² 0 1
Gang 124 10.0 m² 0 1
Gang 125 10.0 m² 0 1
Gang 126 10.0 m² 0 1
Gang 127 10.0 m² 0 1
Gang 128 10.0 m² 0 1
Gang 129 10.0 m² 0 1
Gang 130 10.0 m² 0 1
Gang 131 10.0 m² 0 1
Gang 132 10.0 m² 0 1
Gang 133 10.0 m² 0 1
Gang 134 10.0 m² 0 1
Gang 135 10.0 m² 0 1
Gang 136 10.0 m² 0 1
Gang 137 10.0 m² 0 1
Gang 138 10.0 m² 0 1
Gang 139 10.0 m² 0 1
Gang 140 10.0 m² 0 1
Gang 141 10.0 m² 0 1
Gang 142 10.0 m² 0 1
Gang 143 10.0 m² 0 1
Gang 144 10.0 m² 0 1
Gang 145 10.0 m² 0 1
Gang 146 10.0 m² 0 1
Gang 147 10.0 m² 0 1
Gang 148 10.0 m² 0 1
Gang 149 10.0 m² 0 1
Gang 150 10.0 m² 0 1
Gang 151 10.0 m² 0 1
Gang 152 10.0 m² 0 1
Gang 153 10.0 m² 0 1
Gang 154 10.0 m² 0 1
Gang 155 10.0 m² 0 1
Gang 156 10.0 m² 0 1
Gang 157 10.0 m² 0 1
Gang 158 10.0 m² 0 1
Gang 159 10.0 m² 0 1
Gang 160 10.0 m² 0 1
Gang 161 10.0 m² 0 1
Gang 162 10.0 m² 0 1
Gang 163 10.0 m² 0 1
Gang 164 10.0 m² 0 1
Gang 165 10.0 m² 0 1
Gang 166 10.0 m² 0 1
Gang 167 10.0 m² 0 1
Gang 168 10.0 m² 0 1
Gang 169 10.0 m² 0 1
Gang 170 10.0 m² 0 1
Gang 171 10.0 m² 0 1
Gang 172 10.0 m² 0 1
Gang 173 10.0 m² 0 1
Gang 174 10.0 m² 0 1
Gang 175 10.0 m² 0 1
Gang 176 10.0 m² 0 1
Gang 177 10.0 m² 0 1
Gang 178 10.0 m² 0 1
Gang 179 10.0 m² 0 1
Gang 180 10.0 m² 0 1
Gang 181 10.0 m² 0 1
Gang 182 10.0 m² 0 1
Gang 183 10.0 m² 0 1
Gang 184 10.0 m² 0 1
WC 185 4.1 m² 0 1
Lager 186 5.7 m² 0 1
Lager 187 5.7 m² 0 1

Fasader

Hovedbygg

Sør
Materiale
Glass
Taktype
Saltak
Høyde
7.7 m
Mønehøyde
11.9 m
Vinduer
12
Dører
1
Synlige etasjer
2

Hendelser

22.04.2026 Saunesvegen 2 Supplering av søknad 8/220
20.06.2024 Endringsvedtak - Fasadeendring - Ombygging av Amfi plan 1 - Saunesvegen 2 - gnr 8 bnr 220
24.05.2024 Søknad om endring av gitt løyve
03.05.2024 Mellombels bruksløyve - Ombygging av Amfi plan 1 - Saunesvegen 2 - gnr 8 bnr 220
12.04.2024 Søknad om mellombels bruksløyve
04.03.2024 Sjekkliste - søknad om tiltak
29.02.2024 Løyve til tiltak - Ombygging av Amfi plan 1 - Saunesvegen 2 - gnr 8 bnr 220
14.02.2024 Søknad om eittrinnsløyve
07.02.2024 Innvilga søknaden om samtykke etter automatisk saksbehandling