Rehabilitation UnderBehandling Naeringsbygg

Endring av bærende konstruksjon i hovedlager, Smelteverket 61, Odda

📍 Smelteverket 57 , 5750 ODDA

Nøkkelinfo

Sakstype
Rehabilitering
Bygningstype
Naeringsbygg
Bruksareal
499 m²
Kommune
Ullensvang
Fylke
Vestland
Gnr / Bnr
61 / 441
Saksnummer
2026/997
Fase
Under behandling

Om byggesaken

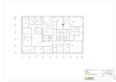
Prosjektet omfatter endring av bærende konstruksjon i hovedlageret på Smelteverket 61 i Odda, et eksisterende næringsbygg med ca. 499 m² areal i 1. etasje. Bygget består av kontor- og lagerarealer i to etasjer, med bærende murt yttervegg, stålsøyler, plasstøpt dekke og takstoler i tre. Tiltaket inkluderer riving av deler av eksisterende bærende konstruksjon, etablering av nytt sentralt trapperom, ny rømningsdør til terrasse med utvendig trapp, og oppdatering av ventilasjonsanlegg. Ombyggingen tilpasses NAVs kravspesifikasjon og innebærer omdisponering av arealer, blant annet ombygging av lager til helsestasjon. Brannteknisk konsept oppdateres med krav til brannceller, brannskiller, brannalarmanlegg kategori 2, og rømningsveier. Bygget har vernet fasade som delvis tilbakeføres og oppgraderes. Det installeres nye tekniske installasjoner, inkludert ventilasjonsaggregater og elektro, med krav til brannsikring og branntetting. Prosjektet krever søknad om ansvarsrett og samsvarserklæring, og det er gjennomført førehandskonferanse med kommunen.

Produkter og materialer

Brannvern Manuelt slokkeutstyr

Brannslanger i alle arealer, håndslokkere i tekniske rom og arkiver, skilting og merking iht. krav

Slokkeutstyr for effektiv brannslokking

Isolasjon Brannsikker isolasjon

🧱 A2-s1,d0 ubrennbar eller begrenset brennbar isolasjon

Isolasjon i vegger, etasjeskillere og kanaler med brannmotstand og brannklasse iht. TEK10

Isolasjonsmaterialer som ikke bidrar til brannspredning

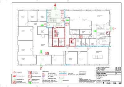
Trapper Innvendig trapperom og utvendig trapp

Antall: 1

Nytt sentralt trapperom med branncellebegrensning EI30, og utvendig trapp til terrasse som rømningsvei

Trapper som sikrer to uavhengige rømningsveier fra 2. etasje

Ventilasjon Ventilasjonsaggregater med brannspjeld

Antall: 2

To ventilasjonsaggregater plassert på teknisk mesanin, med brannspjeld EI30 og røykdeteksjon som stanser aggregat ved brann

Ventilasjonsanlegg for helsestasjon og kontorer med brannsikring

Maling Brannmaling av stålkonstruksjoner

Brannmaling av stålsøyler og takstoler for å oppnå R30 brannmotstand

Brannbeskyttelse av stålkomponenter

Fasade Murt yttervegg

🧱 Mur

Eksisterende murt yttervegg med vernet fasade, delvis tilbakeføres og pusses opp

Bærende yttervegg med kulturminneverdi

Grunnarbeid Utvendig trapp og terrasse

Antall: 1

Ny utvendig trapp til terrasse som rømningsvei, med branncellebegrensning og tilpasning til terreng

Utendørs rømningsvei med trapp og terrasse

Elektro El-tavler og kabler

El-tavler plassert i tekniske rom eller egne brannceller, kabler føres i sjakter eller hulrom med branntetting

Elektriske installasjoner med krav til brannsikring

Vinduer Fasadevindu i vernet fasade

Vinduer i vernet fasade med krav til brannmotstand og avstand mellom vinduer iht. NBI 520.310

Vinduer i fasade som må ivareta brannkrav og vern

Dører Rømningsdører og brannklassifiserte dører

Dører med brannmotstand EI30, selvlukkere, og dør til terrasse med minimum 160 cm høyde og 70 cm bredde

Dører i rømningsvei og brannceller, inkludert ny dør til terrasse

Stål Stålsøyler og stålstag i takstoler

🧱 Stål

Stålsøyler og stålstag i takstoler må brannmales for å ivareta brannmotstand R30

Bærende stålkonstruksjoner som må brannbeskyttes

Tømrer Tresøyler og tredekker

🧱 Tre

Tresøyler og tredekker i lav del av bygget, må kontrolleres for brannmotstand

Bærende trekonstruksjoner i lav del av bygget

Brannvern Brannalarmanlegg kategori 2

Fulldekkende brannalarmanlegg med mulighet for forriglinger, visuelle meldere vurderes for universell utforming

Brannalarmanlegg for tidlig varsling og styring av branntekniske installasjoner

Betong Plasstøpt dekke

Eksisterende plasstøpt dekke i høy del, må kontrolleres og tilpasses ny bærende konstruksjon

Betongdekke i høy del av bygget som inngår i bærende konstruksjon

Hendelser

14.04.2026 Gnr. 61, bnr. 441 - Smelteverket 61, Odda - spørsmål vedkomande nabovarsel
31.03.2026 Referat førehandskonferanse- Gnr. 61, bnr. 441 - Smelteverket 61, Odda - Endring av berekonstruksjon
13.03.2026 Gnr. 61, bnr. 441 - Smelteverket 61, Odda - Tinging av førehandskonferanse - Endring av berekonstruksjon