Rehabilitation MidlertidigBrukstillatelse Naeringsbygg

Rehabilitering og leietakertilpasning av Wernergården, Tollbugata 4-6, Drammen

📍 Tollbugata 4 , 3044 DRAMMEN

Nøkkelinfo

Sakstype
Rehabilitering
Bygningstype
Naeringsbygg
Bruksareal
6,200 m²
Kommune
Drammen
Fylke
Buskerud
Gnr / Bnr
110 / 542
Saksnummer
24/00217
Fase
Midlertidig brukstillatelse

Om byggesaken

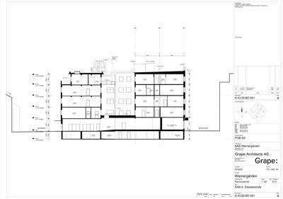
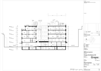
Wernergården er et sammensatt næringsbygg på 5 etasjer pluss kjeller, med en bygningsmasse fra flere epoker inkludert et bygg fra 1710. Prosjektet omfatter omfattende rehabilitering og oppgradering av eksisterende bygningsmasse, inkludert innvendig ombygging, bruksendring av deler av plan 1 og kjeller, fasadeendringer med restaurering og utskifting av vinduer og dører, samt oppgradering av tekniske installasjoner som ventilasjon, varme, kjøling, brannalarmanlegg og løfteinnretninger. Det etableres nye tekniske anlegg på taket, skjermet med spilevegg, og det gjøres tiltak for universell utforming med nye heiser og ramper. Arealet er ca. 6 200 m² BRA for tiltaket, med kontor, bevertning, forretning og tekniske rom. Prosjektet inkluderer også miljøsanering, avfallsplan og uavhengig kontroll. Det gis dispensasjon og unntak fra enkelte TEK17-krav for å ivareta kulturminneverdier og byggets tekniske begrensninger.

Arbeidsomfang

- Fasadeendring av eksisterende bygg (Wernergården) med dispensasjon og unntak fra TEK17. - Innvendig ombygging og leietakertilpasning for Evat AS på del av plan 2. - Oppføring av 2 stk kontorarbeidsplasser, prosjektsone, sosial sone/tekjøkken og møterom. - Tilrettelegging av adkomst til renholdsrom/bøttekott via felleskorridor på samme plan. - Tilrettelegging av adkomst til WC-d, wc-h og hcwc via felleskorridor på samme plan. - Oppføring av trinnfri adkomst via heis og ny rampe. - Adkomsttilrettelggelse til felles kantine på plan 1. - Adkomsttilrettelggelse til felles sykkelparkering, garderobe og dusj på pluss K1. - Tømrerarbeid og montering av trekonstruksjoner. - Installasjon av brannalarmanlegg og ledesystem. - Sanitær-, varme- og slukkeinstallasjoner. - Ventilasjon- og klimainstallasjoner. - Branntetting.

Produkter og materialer

Trapper Innvendig trapp

Antall: 3

Nytt dekke i utsparing for Trapp 1 i plan 03, utsparinger i vegg rundt trapp 1 plan 03-05

Oppgradering og tilrettelegging av trapper for bedre intern kommunikasjon

Elektro Brannalarmanlegg og ledesystem

Installasjon av brannalarmanlegg og ledesystem i hele bygget

Brannsikkerhetssystemer

VVS Ventilasjon, varme, kjøling, sanitær, slukkeinstallasjoner

Ventilasjonsaggregater på tak og i kjeller, varmepumper, fjernvarme, sprinkleranlegg med vanntåke, fettutskiller for kjøkken

Oppgradering av VVS-anlegg for bedre inneklima og energieffektivitet

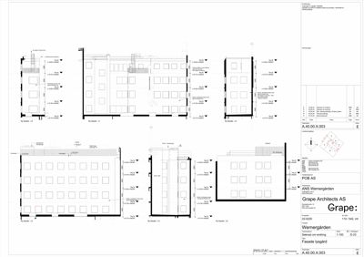
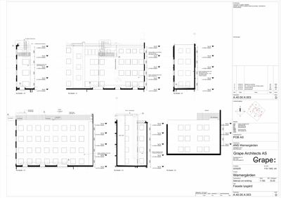
Vinduer Fasadevindu

🧱 Lakkerte aluminiumsvinduer, trekarmer i 1710-bygget

Antall: 39

RAL-farge til avklaring, 3-lags isolerglass, noen med blyglass, karmer i tre for 1710-bygget

Utskifting og restaurering av fasadevinduer i ulike deler av bygget

Tak Taktekking og takoppbygg

🧱 Isolasjon, membran, beslag i sink eller lakkert aluminium

Ny takoppbygging med isolasjon, membran, sluk, beslag på gesims, stålrammeverk for teknisk anlegg

Oppgradering av tak med ny tekking og tekniske installasjoner

Tømrer Montering av trekonstruksjoner

🧱 Tre

Montering av trekonstruksjoner i fasade, takterrasser, overlys og innvendig ombygging

Tømrerarbeid for fasade og innvendige konstruksjoner

Mur Murarbeider på fasade

Murarbeider og puss på fasade

Fasadevedlikehold og reparasjon

Dører Ytterdør i eik

🧱 Eik

Antall: 5

Nye doble dører i eik i hovedinngang, gjenbruk av eldre dør til bevertning 2

Oppgradering og utskifting av ytterdører i fasade

Mur Isolasjonspuss

🧱 Mineralull 100 mm, gjennomfarget puss

Etterisolering og pussing av fasade i lysgård og bakgård

Fasadeisolasjon og overflatebehandling

Rekkverk Nytt rekkverk og parapet

Nytt rekkverk atrium 5. etasje og ny parapet/gesims 5. etasje mot Tollbugata

Sikkerhetsrekkverk og fasadebeslag

Heis Personheis og vareheis

Antall: 2

Ny heis i eksisterende heissjakt, Heis 2 oppgraderes, fravik fra krav til båreheis

Heisinstallasjon og oppgradering for universell utforming

Grunnarbeid Nedkjøringsrampe og parkering

Eksisterende nedkjøringsrampe til kjellerparkering opprettholdes

Adkomst og parkering for bil og sykkel

Ventilasjon Lyddemping og kanalføringer

Lyddemping på ventilasjonsaggregater og kanalføringer i fasade og tak

Støyreduserende tiltak for ventilasjon

Fasade Pusset murfasade og spilevegg

🧱 Puss, trepanel/spilevegg

Pussing av murfasade, skjermvegg i spiler av tre rundt tekniske installasjoner på tak

Fasadeoppgradering og visuell skjerming av tekniske anlegg

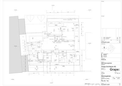
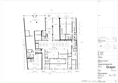
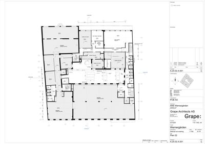
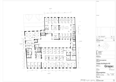
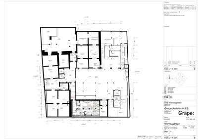
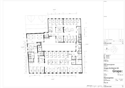
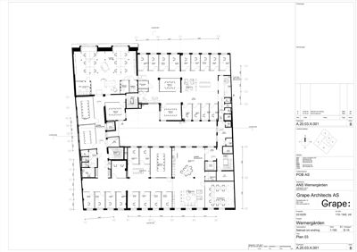
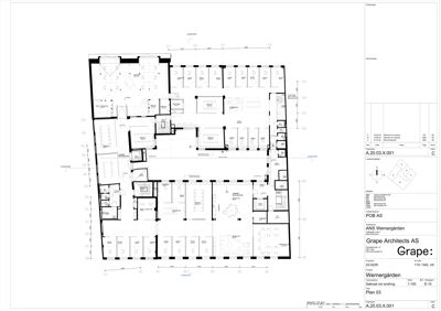
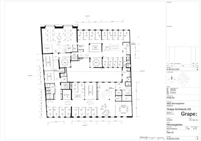
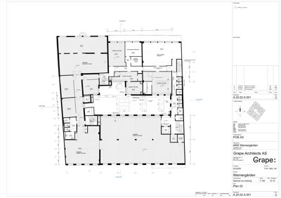
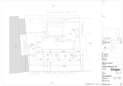
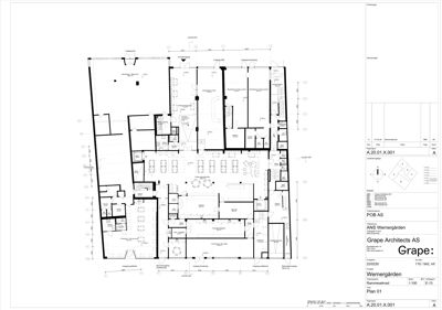
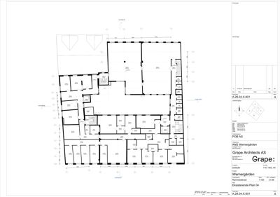
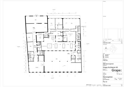
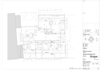
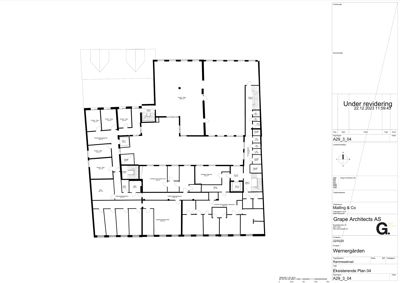
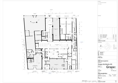
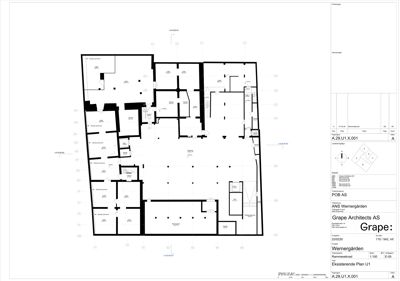
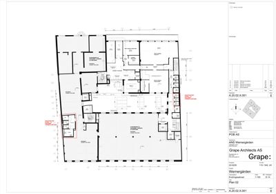
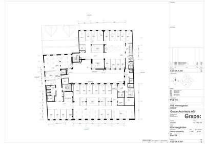
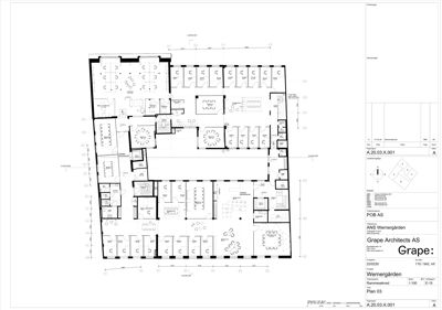
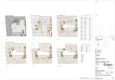
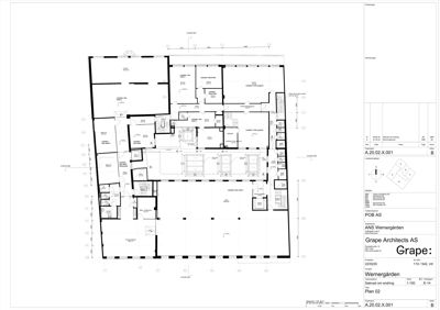
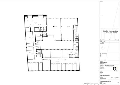
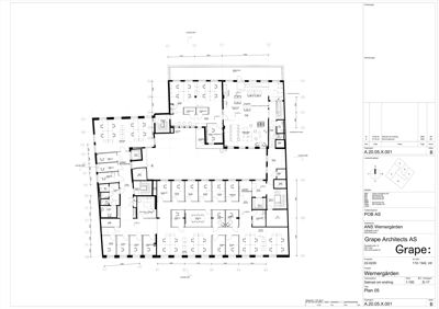
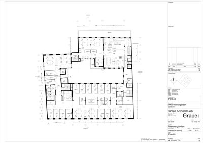
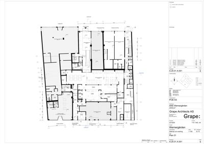
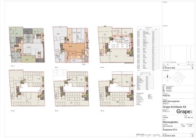
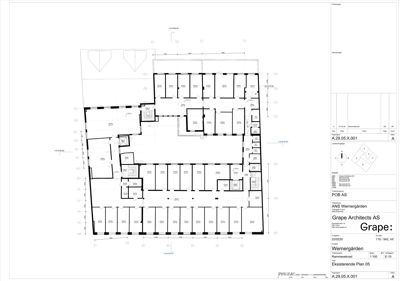
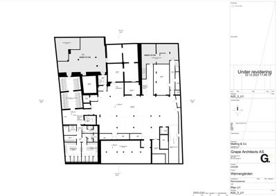
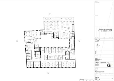
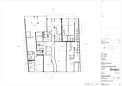
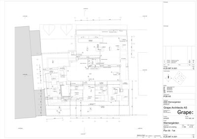
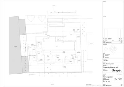
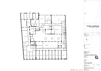
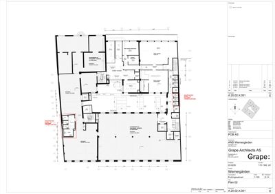
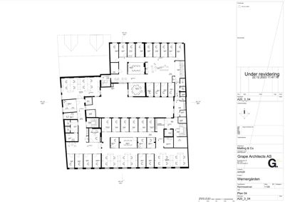
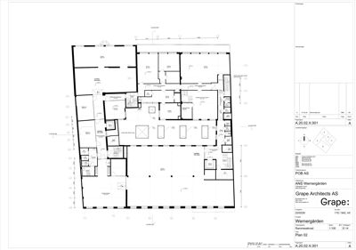
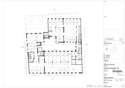
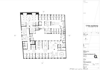
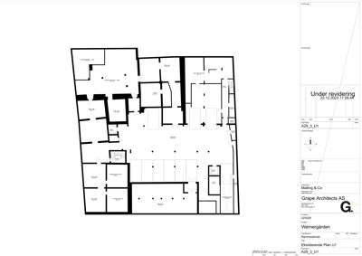
Plantegning

Skjema hovedinngang Tollbugata 0.0 m²

Etasje 1 0.0 m²

Rom Areal Vinduer Dører
Inngangsparti 0 0.0 m² 0 1
Gang 0 0.0 m² 0 1
Bevertning 2. etasje 0 0.0 m² 0 0
Forretningslokale 0 0.0 m² 0 0
Trapp 4 0 0.0 m² 0 0

Wernergården 2,505.7 m²

Etasje 1 546.2 m²

Rom Areal Vinduer Dører
Stue 101 86.3 m² 2 2
Kjøkken 102 34.2 m² 1 2
Spisestue 103 54.2 m² 1 2
Gang 104 12.1 m² 0 4
Toalett 105 3.6 m² 0 1
Bad 106 5.7 m² 0 1
Vaskerom 107 3.0 m² 0 1
Teknisk 108 3.8 m² 0 1
Gang 109 3.4 m² 0 2
Gang 110 2.5 m² 0 1
Gang 111 5.1 m² 0 1
Gang 112 2.8 m² 0 1
Gang 113 2.2 m² 0 1
Gang 114 1.6 m² 0 1
Gang 115 1.5 m² 0 1
Gang 116 1.4 m² 0 1
Gang 117 1.3 m² 0 1
Gang 118 1.2 m² 0 1
Gang 119 1.1 m² 0 1
Gang 120 1.0 m² 0 1
Gang 121 0.9 m² 0 1
Gang 122 0.8 m² 0 1
Gang 123 0.7 m² 0 1
Gang 124 0.6 m² 0 1
Gang 125 0.5 m² 0 1
Gang 126 0.4 m² 0 1
Gang 127 0.3 m² 0 1
Gang 128 0.2 m² 0 1
Gang 129 0.1 m² 0 1

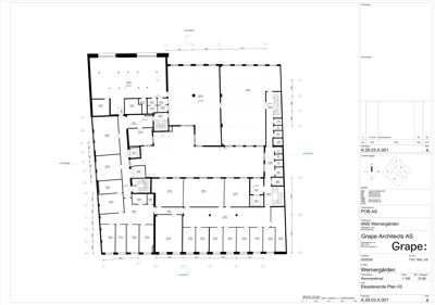
Etasje 0 265.5 m²

Rom Areal Vinduer Dører
Vaskerom U11 24.0 m² 0 1
Sykkeloppslag U12 32.5 m² 0 1
Sykkeloppslag U13 17.0 m² 0 1
Parkering U14 205.0 m² 0 1
Lager U15 14.0 m² 0 1
Redusert lokaler U16 17.0 m² 0 1
Gang U17 15.0 m² 0 2
Lager 001 33.5 m² 0 1
Lager 002 107.3 m² 0 1
Dispo. Lager 003 26.4 m² 0 1
Dispo. Lager 004 20.1 m² 0 1
Teknisk 005 25.8 m² 0 1
Mask 1 006 3.0 m² 0 1
Stikk 007 3.2 m² 0 1
Gang 008 20.3 m² 0 2
Fenom 009 27.1 m² 0 1
Bluss 010 14.0 m² 0 1
Lager 011 49.7 m² 0 1
Tilbrynn 012 22.6 m² 0 1
Tilbrynn 013 24.4 m² 0 1
Sykkeloppbevaring 14dk 014 24.8 m² 0 1
Varmesentral 015 21.3 m² 0 1
Sykkeloppbevaring 17dk 016 46.0 m² 0 1
Varmesentral 017 17.0 m² 0 1
Sykkeloppbevaring 12dk 018 22.1 m² 0 1
Lager Frakt og Grant 019 69.1 m² 0 1
IKT 020 9.6 m² 0 1
Lager 021 8.5 m² 0 1
Lager 1 022 8.3 m² 0 1
Parkering 023 286.2 m² 0 0
Teknisk rom 024 37.4 m² 0 1
Teknisk rom 025 27.5 m² 0 1
Taushus 026 14.5 m² 0 1
Hus 2 027 5.7 m² 0 1
Parkering 028 286.2 m² 0 0

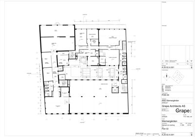
Etasje 2 338.8 m²

Rom Areal Vinduer Dører
Kontor 201 34.7 m² 1 1
Gang 202 17.1 m² 0 2
Kontor 203 10.2 m² 1 1
Felles gangareal 204 71.0 m² 0 2
Felles gangareal 205 18.7 m² 0 2
Kjøkken 206 33.8 m² 1 1
Kontor 207 9.8 m² 1 1
Malerom 208 16.0 m² 1 1
Gang 209 58.5 m² 0 2
Kontor 210 54.0 m² 1 1
Malerom 211 35.4 m² 1 1
Gang 212 170.9 m² 0 2

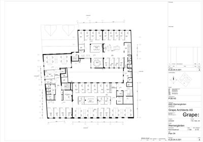
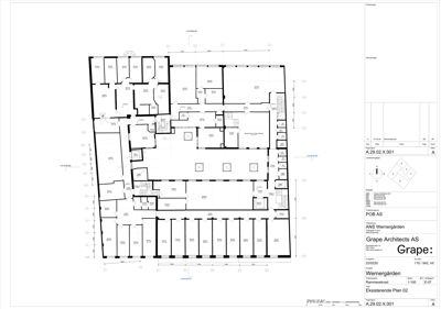
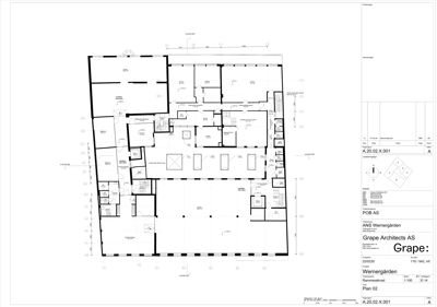
Etasje 3 338.8 m²

Rom Areal Vinduer Dører
Kontor 301 34.7 m² 1 1
Gang 302 17.1 m² 0 2
Kontor 303 10.2 m² 1 1
Felles gangareal 304 71.0 m² 0 2
Felles gangareal 305 18.7 m² 0 2
Kjøkken 306 33.8 m² 1 1
Kontor 307 9.8 m² 1 1
Malerom 308 16.0 m² 1 1
Gang 309 58.5 m² 0 2
Kontor 310 54.0 m² 1 1
Malerom 311 35.4 m² 1 1
Gang 312 170.9 m² 0 2

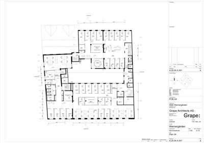
Etasje 4 338.8 m²

Rom Areal Vinduer Dører
Kontor 401 34.7 m² 1 1
Gang 402 17.1 m² 0 2
Kontor 403 10.2 m² 1 1
Felles gangareal 404 71.0 m² 0 2
Felles gangareal 405 18.7 m² 0 2
Kjøkken 406 33.8 m² 1 1
Kontor 407 9.8 m² 1 1
Malerom 408 16.0 m² 1 1
Gang 409 58.5 m² 0 2
Kontor 410 54.0 m² 1 1
Malerom 411 35.4 m² 1 1
Gang 412 170.9 m² 0 2

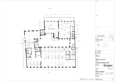
Etasje 5 338.8 m²

Rom Areal Vinduer Dører
Kontor 501 34.7 m² 1 1
Gang 502 17.1 m² 0 2
Kontor 503 10.2 m² 1 1
Felles gangareal 504 71.0 m² 0 2
Felles gangareal 505 18.7 m² 0 2
Kjøkken 506 33.8 m² 1 1
Kontor 507 9.8 m² 1 1
Malerom 508 16.0 m² 1 1
Gang 509 58.5 m² 0 2
Kontor 510 54.0 m² 1 1
Malerom 511 35.4 m² 1 1
Gang 512 170.9 m² 0 2

Etasje 6 338.8 m²

Rom Areal Vinduer Dører
Kontor 601 34.7 m² 1 1
Gang 602 17.1 m² 0 2
Kontor 603 10.2 m² 1 1
Felles gangareal 604 71.0 m² 0 2
Felles gangareal 605 18.7 m² 0 2
Kjøkken 606 33.8 m² 1 1
Kontor 607 9.8 m² 1 1
Malerom 608 16.0 m² 1 1
Gang 609 58.5 m² 0 2
Kontor 610 54.0 m² 1 1
Malerom 611 35.4 m² 1 1
Gang 612 170.9 m² 0 2

Kontorbygg 8,069.0 m²

Etasje 0 1,113.0 m²

Rom Areal Vinduer Dører
Lager U01 277.0 m² 0 2
Tekn. U01 179.0 m² 0 1
Trerom U01 116.0 m² 0 1
Vert. komm. U01 39.0 m² 0 1
Felles U01 551.0 m² 0 0

Etasje 1 1,331.0 m²

Rom Areal Vinduer Dører
Bod 01 551.0 m² 0 0
Felles 01 292.0 m² 0 0
Felles kontor 01 270.0 m² 0 0
Funksjon 01 162.0 m² 0 0
Kjøkken 01 57.0 m² 0 0
Nedgang P 01 23.0 m² 0 0
Tekn. 01 18.0 m² 0 0
Tekn. LT 01 1.0 m² 0 0
Vert. komm. 01 30.0 m² 0 0

Etasje 2 1,277.0 m²

Rom Areal Vinduer Dører
Bod 02 83.0 m² 0 0
Felles 02 131.0 m² 0 0
Kontor 02 922.0 m² 0 0
Tekn. 02 28.0 m² 0 0
Tekn. LT 02 12.0 m² 0 0
Vert. komm. 02 99.0 m² 0 0

Etasje 3 1,220.0 m²

Rom Areal Vinduer Dører
Felles 03 12.0 m² 0 0
Korridor 03 1,111.0 m² 0 0
Tekn. 03 28.0 m² 0 0
Tekn. LT 03 14.0 m² 0 0
Vert. komm. 03 54.0 m² 0 0

Etasje 4 1,224.0 m²

Rom Areal Vinduer Dører
Felles 04 1,224.0 m² 0 0

Etasje 5 927.0 m²

Rom Areal Vinduer Dører
Felles 05 12.0 m² 0 0
Korridor 05 880.0 m² 0 0
Tekn. 05 29.0 m² 0 0
Tekn. LT 05 17.0 m² 0 0
Vert. komm. 05 69.0 m² 0 0

Etasje 6 977.0 m²

Rom Areal Vinduer Dører
Felles 06 12.0 m² 0 0
Kontor 06 322.0 m² 0 0
Tekn. 06 408.0 m² 0 0
Tekn. LT 06 63.0 m² 0 0
Vert. komm. 06 129.0 m² 0 0

Tak 0.0 m²

Etasje 6 0.0 m²

Rom Areal Vinduer Dører

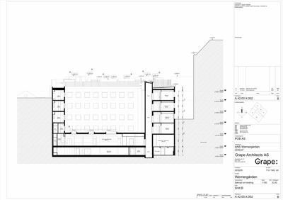
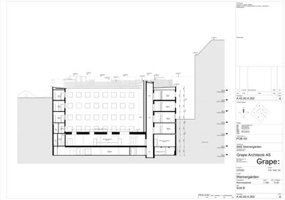
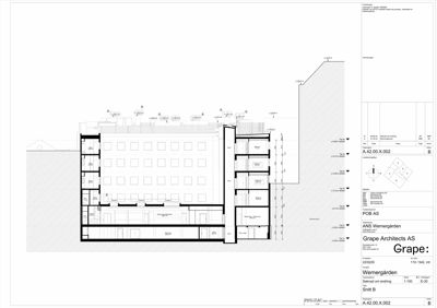
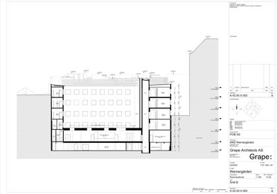
Fasader

Wernergården

Nord
Materiale
Betong
Taktype
Flatt tak
Høyde
6.7 m
Vinduer
1
Dører
1
Balkonger
1
Synlige etasjer
5
Sør
Materiale
Betong
Taktype
Flatt tak
Høyde
6.7 m
Vinduer
15
Dører
1
Synlige etasjer
5
Vest
Materiale
Betong
Taktype
Flatt tak
Høyde
6.7 m
Vinduer
15
Dører
1
Synlige etasjer
5
Øst
Materiale
Betong
Taktype
Flatt tak
Høyde
6.7 m
Vinduer
15
Dører
1
Synlige etasjer
5
Ukjent
Materiale
Betong
Taktype
Flatt tak
Høyde
13.8 m
Vinduer
24
Dører
4
Synlige etasjer
4

1710-bygg

Vest
Materiale
Betong
Taktype
Flatt tak
Høyde
12.8 m
Vinduer
16
Dører
4
Synlige etasjer
4

Rammesøknad

Vest
Materiale
Betong
Taktype
Flatt tak
Høyde
17.9 m
Vinduer
26
Dører
5
Synlige etasjer
4

Lysgård 5

Ukjent
Materiale
Betong
Vinduer
2
Dører
1
Balkonger
1
Synlige etasjer
3

Lysgård 1

Ukjent
Materiale
Betong
Vinduer
19
Dører
1
Synlige etasjer
4

Lysgård 2

Ukjent
Materiale
Betong
Vinduer
6
Dører
1
Synlige etasjer
3

Lysgård 6

Ukjent
Materiale
Betong
Vinduer
8
Dører
0
Synlige etasjer
3

Lysgård 3

Ukjent
Materiale
Betong
Vinduer
19
Dører
0
Synlige etasjer
4

Lysgård 4

Ukjent
Materiale
Betong
Vinduer
2
Dører
1
Synlige etasjer
3

Lysgård

Ukjent
Materiale
Betong
Taktype
Flatt tak
Høyde
10.1 m
Vinduer
12
Dører
0
Synlige etasjer
3

Eksisterende fasade Schultz gate

Sør
Materiale
Betong
Taktype
Flatt tak
Høyde
13.0 m
Vinduer
24
Dører
3
Synlige etasjer
4

Tollbugata 8

Vest
Materiale
Betong
Taktype
Flatt tak
Høyde
17.9 m
Vinduer
28
Dører
4
Synlige etasjer
4

Tollbugata

Nord
Materiale
Mur
Taktype
Flatt tak
Høyde
17.9 m
Vinduer
18
Dører
3
Synlige etasjer
5

Tiltak fasade

Ukjent
Materiale
Pusset
Vinduer
20
Dører
2
Synlige etasjer
5

Hendelser

31.03.2026 Tollbugata 4-6, igangsettingstillatelse nr. 5 og endringstillatelse for rehabilitering av Wernergården igangsettingstillatelse
18.03.2026 Tollbugata 4-6 Søknad om igangsettingstillatelse 110/542 igangsettingstillatelse
15.01.2026 Tollbugata 4 - 6, vi innvilger søknaden om samtykke etter automatisk saksbehandling søknad
30.06.2025 Tollbugata 4-6, midlertidig brukstillatelse for rehabilitering av Wernergården midlertidig_brukstillatelse
25.06.2025 Tollbugata 4-6 Supplering av søknad 110/542 søknad
13.06.2025 Tollbugata 4-6 Søknad om midlertidig brukstillatelse 110/542 midlertidig_brukstillatelse
13.06.2025 Tollbugata 4-6 Gjennomføringsplan 110/542
12.06.2025 Tollbugata 4-6 Gjennomføringsplan 110/542
12.06.2025 Tollbugata 4-6, igangsettingstillatelse nr. 4 for rehabilitering av Wernergården igangsettingstillatelse
27.05.2025 Tollbugata 4-6 Gjennomføringsplan 110/542
20.05.2025 Tollbugata 4-6 Søknad om igangsettingstillatelse 110/542 igangsettingstillatelse
06.12.2024 Tollbugata 4-6, igangsettingstillatelse nr. 3 for rehabilitering av Wernergården igangsettingstillatelse
06.12.2024 Tollbugata 4-6, Vi innvilger søknaden om samtykke søknad
12.11.2024 Tollbugata 4-6, supplering til søknad om IG3 søknad
08.11.2024 Tollbugata 4-6, melding om mottatt søknad søknad
07.11.2024 Tollbugata 4-6 Søknad om igangsettingstillatelse 110/542 igangsettingstillatelse
25.10.2024 Tollbugata 4-6 Gjennomføringsplan 110/542
28.08.2024 Tollbugata 4-6, igangsettingstillatelse nr. 2 for rehabilitering av Wernergården igangsettingstillatelse
20.08.2024 Tollbugata 4-6, melding om mottatt søknad søknad
19.08.2024 Tollbugata 4-6 Søknad om igangsettingstillatelse 110/542 igangsettingstillatelse
01.08.2024 Tollbugata 4-6, igangsettingstillatelse nr. 1 for rehabilitering av Wernergården igangsettingstillatelse
13.07.2024 Tollbugata 4-6, melding om mottatt søknad søknad
12.07.2024 Tollbugata 4-6 Søknad om igangsettingstillatelse 110/542 igangsettingstillatelse
08.07.2024 Tollbugata 4-6, rammetillatelse for rehabilitering av Wernergården med dispensasjon og unntak fra TEK17 rammetillatelse
28.06.2024 Saksprotokoll Hovtt, 27062024, Sak 55/24, Tollbugata 4-6, dispensasjon fra bestemmelser om åpne tekniske anlegg over tak, byggehøyde og sykkelparkering for rehabilitering av Wernergården dispensasjon
17.06.2024 Tollbugata 4-6, orientering om politisk behandling
11.06.2024 Tollbugata 4-6, tilbakemelding på fylkeskommunens anbefalinger
30.05.2024 Tollbugata 4-6 - Vi innvilger søknaden om samtykke etter automatisk saksbehandling søknad
15.05.2024 Tollbugata 4-6 - Wernergården, Fasadeendring, dispensasjon m.m. - Kulturminnefaglig uttalelse dispensasjon
10.05.2024 Tollbugata 4-6, anmodning om utsatt frist for kulturminnefaglig uttalelse
07.05.2024 Tollbugata 4-6, komplettering av søknad søknad
29.04.2024 Kopi: Tollbugata 4-6 - Vi innvilger søknaden om samtykke etter automatisk saksbehandling søknad
11.04.2024 Tollbugata 4-6 - Wernergården, anmodning om kulturminnefaglig uttalelse
07.03.2024 Tollbugata 4-6, tilleggsdokumentasjon til søknad, avstandserklæring søknad
05.03.2024 Tollbugata 4-6, melding om mottatt søknad søknad
04.03.2024 Tollbugata 4-6 Søknad om rammetillatelse 110/542 rammetillatelse
01.02.2024 Tollbugata 4-6, referat fra forhåndskonferanse
03.01.2024 Tollbugata 4-6, anmodning om forhåndskonferanse