Extension UnderBehandling Naeringsbygg

Oppføring av parkeringskjeller med boder i Bergerløkka, Asker

📍 Bergerløkka

Nøkkelinfo

Sakstype
Tilbygg
Bygningstype
Naeringsbygg
Bruksareal
2,732 m²
Kommune
Asker
Fylke
Akershus
Gnr / Bnr
32 / 104
Saksnummer
24/297
Fase
Under behandling

Om byggesaken

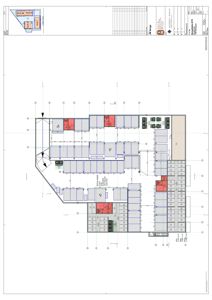
Ny parkeringskjeller med boder på totalt 2731,5 m² bruttoareal oppføres under mesteparten av felt B9 i Bergerløkka, Asker. Kjelleren inneholder et stort antall boder (85 stk. à 12,5 m²) og gangarealer, med tilhørende tekniske installasjoner som varme, sanitær, slukkeanlegg, ventilasjon og løfteinnretninger. Bygget er en del av et større boligprosjekt med tilhørende boligblokker og utomhusanlegg. Bygget er prosjektert med betong- og stålkonstruksjoner, membran- og flisarbeider, taktekking, samt fasadekledning og glasskonstruksjoner. Det er etablert omfattende anleggs- og trafikksikkerhetsplaner, og det foreligger dispensasjoner knyttet til reguleringsplanens rekkefølgekrav. Prosjektet er i igangsettingsfase med flere igangsettingstillatelser gitt for råbygg og resterende arbeider, inkludert utomhus.

Produkter og materialer

VVS Sanitærinstallasjoner

Sanitærinstallasjoner i kjeller og boligblokker

VVS-installasjoner for vann og avløp

Løfteinnretninger Heiser og løfteinnretninger

Løfteinnretninger levert og installert av KONE AKSJESELSKAP

Heiser og løfteinnretninger i bygg

VVS Varme- og kuldeinstallasjoner

Varme- og kuldeinstallasjoner i bygg

Varme- og kjøleanlegg for parkeringskjeller og boligblokker

Ventilasjon Ventilasjon og klimainstallasjoner

Ventilasjonsanlegg for parkeringskjeller og boligblokker

Ventilasjon og klimainstallasjoner

VVS Slukkeinstallasjoner

Brannslukkingsanlegg i parkeringskjeller og bygg

Slukkeinstallasjoner for brannsikkerhet

Elektro Ledesystem

Ledesystem for rømningsveier

Installasjon av ledesystem for sikkerhet

Trapper Innvendige trapper

Antall: 2

Innvendige trapper i boligblokker og parkeringskjeller

Trapper for adkomst mellom etasjer

Dører Ytterdører og boddører

Antall: 100

Dører til boder og innganger i parkeringskjeller og boligblokker

Ytterdører og boddører i prosjektet

Maling Fargekonsept og maling

Fargekonsept med ulike teglfarger, trepanel og puss

Maling og overflatebehandling av fasader og balkonger

Mur Murarbeid, membran- og flisarbeider

Membran- og flisarbeider i kjeller og boder

Vanntetting og flislegging i kjeller og boder

Vinduer Fasadevindu

🧱 Mørk grå RAL 9005 aluminium

Antall: 117

Vinduer i boligblokker Hus 7, 8, 9 med mørk grå rammer

Fasadevinduer for boligblokker i prosjektet

Stål Bærende stålkonstruksjoner

🧱 Stål

Bærekonstruksjoner i stål for råbygg

Stålkonstruksjoner for bæresystem i parkeringskjeller

Betong Plasstøpte betongkonstruksjoner

🧱 Betong

Bunnplate, dekker, bærekonstruksjoner i betong

Betongkonstruksjoner for parkeringskjeller og boder

Tak Taktekkingsarbeid

Taktekkingsarbeid for overliggende bygg

Taktekking for tilstøtende boligblokker

Grunnarbeid Grunnarbeider og fundamentering

Grunnarbeider, pelearbeider, spunt og kalksementstabilisering

Grunnarbeider for parkeringskjeller og bygg

Tømrer Tømrerarbeid og montering av trekonstruksjoner

🧱 Trekonstruksjoner

Tømrerarbeid for boligblokker og tilhørende bygg

Tømrerarbeid og montering av trekonstruksjoner

Terrasse Balkonger og uteplasser

🧱 Glassrekkverk, trepanel, metallbeslag

Balkonger med glassrekkverk og trekledning

Balkonger til boligblokker med rekkverk og kledning

Elektro Brannalarmanlegg

Brannalarmanlegg installert av IRBY ELEKTRO AS

Brannalarmanlegg for sikkerhet i bygg

Fasade Fasadekledning og glasskonstruksjoner

🧱 Tegl, Swisspearl, Superwood, glass

Fasadekledning i tegl, Swisspearl, Superwood og glassfasader

Fasadeelementer for boligblokker

Utendørs Utomhusanlegg og landskapsutforming

Landskapsplan med beplantning, gangveier, belysning, lekeplasser og terrengtilpasning

Utomhusanlegg for boligfeltet

Mur Murarbeid

Murarbeid i kjeller og utomhus

Murarbeid for konstruksjon og utomhus

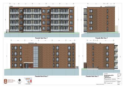
Fasader

Hus 9

Syd
Materiale
Mur
Taktype
Flatt tak
Høyde
11.8 m
Mønehøyde
21.7 m
Vinduer
11
Dører
1
Balkonger
4
Synlige etasjer
4
Nord
Materiale
Mur
Taktype
Flatt tak
Høyde
11.1 m
Mønehøyde
17.6 m
Vinduer
12
Dører
1
Balkonger
4
Synlige etasjer
4
Vest
Materiale
Mur
Taktype
Flatt tak
Høyde
16.1 m
Mønehøyde
27.2 m
Vinduer
34
Dører
10
Balkonger
12
Synlige etasjer
5
Øst
Materiale
Mur
Taktype
Flatt tak
Høyde
9.8 m
Mønehøyde
30.8 m
Vinduer
26
Dører
3
Synlige etasjer
4
Sør
Materiale
Mur
Høyde
18.8 m
Vinduer
10
Dører
0
Balkonger
4
Synlige etasjer
5

Hus 9B

Sør
Materiale
Mur
Høyde
18.8 m
Vinduer
10
Dører
0
Balkonger
4
Synlige etasjer
5

Hendelser

14.04.2026 32/306 Vestre Billingstad felt B9 - BT6 - Parkeringskjeller med boder - Igangsettingstillatelse nr. 2 - Resterende arbeider
24.03.2026 32/104 Kabelfaret 1, 3, 5, 7 (tidl. Bergerløkka) - Søknad om igangsettingstillatelse 2 - Resterende arbeider, inkludert utomhus
29.01.2026 32/104 Kabelfaret 1-7 / Bergerløkka - Henvendelse angående fortsatt støy før kl 0700 - Miljørettet helsevern - kopi
28.10.2025 32/104 Kabelfaret 1-7 / Bergerløkka - Formell klage - Helsemessig uakseptabel byggestøy og vibrasjoner
28.10.2025 32/104 Kabelfaret 1-7 / Bergerløkka - Oppdatering av ansvarlig utbygger – Korrigering i klagesak og anmodning om mottaksbekreftelse
18.07.2025 32/104 Kabelfaret 1, 3, 5, 7 (tidl. Bergerløkka) - Igangsettingstillatelse nr. 1 for bunnplate og komplett råbygg for parkeringskjeller med boder
10.07.2025 32/104 Kabelfaret 1-7 (tidligere Bergerekra 1) - Søknad om igangsettingstillatelse
26.06.2024 32/104 Felt B9 - Bergerløkka BT6 - Søknad om rammetillatelse for oppføring av parkeringskjeller med boder
21.06.2024 32/104 Felt B9 - Rammetillatelse for oppføring av parkeringskjeller med boder