Extension Rammetillatelse Naeringsbygg

Tilbygg på næringsbygg i Bjerkelundveien 23, Røyken

📍 Bjerkelundveien 23 , 3440 RØYKEN

Nøkkelinfo

Sakstype
Tilbygg
Bygningstype
Naeringsbygg
Bruksareal
88 m²
Kommune
Asker
Fylke
Akershus
Gnr / Bnr
222 / 259
Saksnummer
26/674
Fase
Rammetillatelse

Om byggesaken

Tilbygg på næringsbygg i Bjerkelundveien 23 består av en utvidelse av kjøkkendelen for cateringvirksomhet. Tilbygget er oppført i to etasjer med trekledning og saltak med teglstein. Det totale tillegget utgjør 88 m², fordelt på 73 m² godkjent i 2010 og en påbygget del på 15 m² godkjent i 2011. Bygget har flere rom som stue, kjøkken, gang, soverom, bad og veranda i første etasje, samt kjøkken, kjøl, WC/vask, vindfang, el-rom og tilbygg i andre etasje. Fasaden har flere vinduer og dører, og det er pipe tilknyttet bygget. Tilbygget er godkjent for næringsvirksomhet og har tilknytning til vann- og avløp, brannslokkeutstyr og radonforebygging.

Produkter og materialer

Trapper Innvendig trapp

Antall: 1

Innvendig trapp i tilbygget

Brannvern Husbrannslange

Påbud om montering av husbrannslange som slokkeutstyr

Brannslokkeutstyr i tilbygget

Tømrer Bygningskonstruksjon

🧱 Tre

Bygging av tilbyggets konstruksjon i tre

Tømrerarbeid for tilbyggets konstruksjon

Grunnarbeid Oppmåling og plassering

Plassering utført av kvalifisert oppmålingsfirma ved minimumsavstand til nabogrense

Oppmåling og plassering av tilbygget

Fasade Trekledning

🧱 Tre

Trekledning på fasader nord og øst

Fasade med trekledning på tilbygget i to etasjer

VVS Vann- og avløpsinstallasjon

Tilknytning til vann- og avløp må godkjennes av kommunalteknikk

Vann- og avløpsinstallasjon i tilbygget

Tak Saltak med teglstein

🧱 Teglstein

Saltak med teglstein på tilbygget

Saltak med teglstein som takmateriale

Dører Ytterdører

Antall: 2

Dører på fasade nord og øst, totalt 2 dører

Ytterdører i tilbygget

Isolasjon Radonforebygging

Tiltak mot radon i henhold til byggteknisk forskrift

Radonforebyggende tiltak i tilbygget

Elektro Elektrisk installasjon

Elektriske installasjoner i tilbygget iht. forskrifter

Elektroinstallasjon i tilbygget

Vinduer Fasadevindu

Antall: 8

Vinduer på fasade nord og øst, totalt 8 vinduer

Fasadevinduer i tilbygget, fordelt på to etasjer

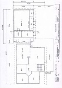
Plantegning

TILBYGG 0.0 m²

Etasje 1 0.0 m²

Rom Areal Vinduer Dører
STUE 101 0.0 m² 1 1
KJØKKEN / SP.STUE 102 0.0 m² 1 1
GANG 103 0.0 m² 0 2
SOV 104 0.0 m² 1 1
SOV 105 0.0 m² 1 1
BAD 106 0.0 m² 0 1
VERANDA 107 0.0 m² 1 1

Etasje 2 0.0 m²

Rom Areal Vinduer Dører
KJØKKEN 201 0.0 m² 1 1
KJØL 202 0.0 m² 0 1
WC/VASK 203 0.0 m² 0 1
VF 204 0.0 m² 0 1
EL 205 0.0 m² 0 1
TILBYGG 206 0.0 m² 1 1

Fasader

TILBYGG

Nord
Materiale
Tre
Taktype
Saltak
Vinduer
4
Dører
1
Synlige etasjer
2
Øst
Materiale
Tre
Taktype
Saltak
Vinduer
4
Dører
1
Balkonger
1
Synlige etasjer
2

Enebolig

Nord
Materiale
Tre
Taktype
Saltak
Takmat.
Tegl
Vinduer
4
Dører
1
Synlige etasjer
2
Sør
Materiale
Tre
Taktype
Saltak
Takmat.
Tegl
Vinduer
3
Dører
1
Balkonger
1
Synlige etasjer
2
Vest
Materiale
Tre
Taktype
Saltak
Vinduer
1
Dører
1
Balkonger
1
Synlige etasjer
2

Hendelser

09.04.2026 222/259 Bjerkelundveien 23 - Svar på forespørsel om registrert tilbygg på eiendom - Næringsbygg eller vanlig tilbygg
02.03.2026 222/259 Bjerkelundveien 23 - Forespørsel om registrert tilbygg på eiendom - Næringsbygg eller vanlig tilbygg