Extension UnderBehandling Naeringsbygg

Tilbygg og fasadeendring på næringsbygg i Gamlegata 56A, Gvarv

📍 Gamlegata 56 , 3810 GVARV

Nøkkelinfo

Sakstype
Tilbygg
Bygningstype
Naeringsbygg
Bruksareal
8 m²
Kommune
Midt-Telemark
Fylke
Telemark
Gnr / Bnr
175 / 42
Saksnummer
25/12271
Fase
Under behandling

Om byggesaken

Prosjektet omfatter et tilbygg på 8 m² og fasadeendring på eksisterende varemottak ved Gamlegata 56A i Gvarv. Tilbygget består av en utvidelse av rampe med 90 cm bredde og 72 cm høyde over terreng, samt nytt skjermtak med to vegger over deler av varemottaket. Fasadeendringen innebærer utskifting av eksisterende trepanel med nye fasadeplater av typen Steni eller tilsvarende. Bygget har flatt tak og gesimshøyde på ca. 3,55 meter. Det totale arealet for varemottaket er 114 m², mens det øvrige næringsbygget har et areal på 2154 m². Tiltaket inkluderer også oppgradering av fasader på sør, vest og øst, med nye fasadeplater. Det er én trapp og flere dører i bygget, men ingen vinduer i tilbyggdelen. Prosjektet krever dispensasjon fra byggegrenser i reguleringsplan og kommuneplanens arealdel.

Produkter og materialer

Fasade Fasadeplater

🧱 Steni eller tilsvarende fasadeplater

Nye fasadeplater skal erstatte eksisterende trepanel på fasader sør, vest og øst

Fasadeplater til utskifting av eksisterende trepanel på varemottakets fasader

Tak Skjermtak

Antall: 1

Nytt skjermtak med to vegger over deler av varemottaket

Skjermtak over utvidet rampe ved varemottaket

Betong Rampeutvidelse

🧱 Betongdekke

Utvidelse av eksisterende rampe med 90 cm bredde og 72 cm høyde over terreng, totalt 8 m²

Betongarbeid for utvidelse av rampe ved varemottaket

Dører Ytterdører

Antall: 1

Dør i tilbygg/varemottak

Ny dør i tilbygg/varemottak

Grunnarbeid Byggegrunnssikring

Vurdering og sikring av byggegrunn iht. krav om kvikkleire og flomfare

Grunnundersøkelser og eventuelle sikringstiltak for byggegrunn

Tømrer Vegger

Nye vegger for skjermtak og tilbygg

Tømrerarbeid for nye vegger i skjermtak og tilbygg

Ventilasjon Ventilasjonsrom

Eksisterende ventilasjonsrom på 29 m² i tilknytning til varemottak

Ventilasjonsløsninger i tilbygg og eksisterende bygg

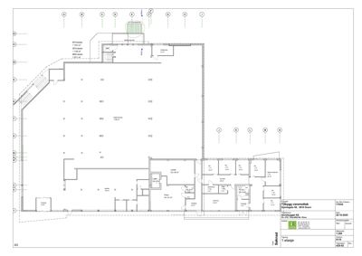
Plantegning

Tilbygg vareomottak 2,154.0 m²

Etasje 1 2,154.0 m²

Rom Areal Vinduer Dører
Inngang 101 10.0 m² 0 1
Mattorening 102 1,096.0 m² 0 0
Apotek 103 176.0 m² 0 1
Lager 104 6.0 m² 0 1
Friser 105 47.0 m² 0 1
WC 106 4.0 m² 0 1
Inngang 107 23.0 m² 0 1
Lokale 108 48.0 m² 0 1
Korridor 109 49.0 m² 0 0
Ktr 110 12.0 m² 0 1
Ktr 111 13.0 m² 0 1
Ktr 112 10.0 m² 0 1
Ktr 113 13.0 m² 0 1
Spise-lømeterom 114 20.0 m² 0 1
Ktr 115 10.0 m² 0 1
Ktr 116 11.0 m² 0 1
Arkivrom 117 33.0 m² 0 1
Garderobe 118 7.0 m² 0 1
Data 119 4.0 m² 0 1
HC-wc 120 9.0 m² 0 1
Inngang 121 7.0 m² 0 1

Tilbygg varemottak 114.0 m²

Etasje 0 114.0 m²

Rom Areal Vinduer Dører
Varemottak 001 61.0 m² 0 1
Spiserom 002 14.0 m² 0 1
Spiserom 003 30.0 m² 0 0
Heis 004 9.0 m² 0 0

Fasader

Vareområde

Sør
Materiale
Platemontasje
Taktype
Flatt tak
Høyde
3.5 m
Vinduer
6
Dører
1
Synlige etasjer
1
Nord
Materiale
Platemontasje
Taktype
Flatt tak
Høyde
3.5 m
Vinduer
6
Dører
1
Synlige etasjer
1
Øst
Materiale
Platemontasje
Taktype
Flatt tak
Høyde
3.5 m
Vinduer
0
Dører
0
Synlige etasjer
1

Hendelser

16.04.2026 Spørsmål om tiltak på gbnr 175/42 fremdeles er aktuelt
09.02.2026 Nytt nabovarsel for tiltak på gbnr 175/42
08.12.2025 Tilbakemelding om mangler - gbnr. 175/42 - Gamlegata 56A - Fasadeendring og tilbygg
17.11.2025 Søknad om tillatelse i ett trinn 175/42 Gamlegata 56A
30.10.2025 Nabovarsel for tiltak på gbnr 175/42