Extension UnderBehandling Naeringsbygg

Bruksendring og tilbygg ved Gansvikaveien 13, Lillestrøm

📍 Gansvikaveien 11 , 1903 GAN

Nøkkelinfo

Sakstype
Tilbygg
Bygningstype
Naeringsbygg
Bruksareal
257 m²
Boenheter
1
Kommune
Lillestrøm
Fylke
Akershus
Gnr / Bnr
461 / 5
Saksnummer
25/07567
Fase
Under behandling

Om byggesaken

Prosjektet omfatter bruksendring av en tidligere driftsbygning til enebolig med et samlet bruksareal på 257 m², inkludert tilbygg til garasje på 132 m² og en frittstående bod på 42 m². Bygningene har saltak og tre som hovedmateriale i fasaden. Garasjen er ombygd til en trippelgarasje med saltak og pipe, og boden har endret takform fra pulttak til saltak med økt mønehøyde. Eiendommen ligger i et LNF-område med kulturhistoriske hensyn, og tiltaket har fått dispensasjon fra byggegrense mot vassdrag. Det er gjennomført uavhengig kontroll av våtrom og fuktsikring. Prosjektet inkluderer også oppdatering av situasjonskart, tegninger og ansvarsrett for selvbygger.

Produkter og materialer

Balkong Balkong på bolig

Antall: 1

Balkong på fasade nord på bolig

Balkong til bolig

Ventilasjon Ventilasjon i bolig

Ventilasjon iht. TEK17 krav for bolig

Ventilasjonssystem i bolig

Fasade Tre kledning

🧱 Tre

Tre som hovedmateriale i fasade på bolig og tilbygg

Tre kledning på bolig og tilbygg

Gulv Gulv i bolig

Gulv i bolig med standard overflater

Innvendige gulv i bolig

Tak Saltak

🧱 Ikke spesifisert

Antall: 4

Saltak på bolig, garasje, tilbygg til garasje og bod

Saltak på alle bygg, inkludert endret takform på bod fra pulttak til saltak

Grunnarbeid Fundamentering på fjell i dagen

Byggene står på synlig fjell i dagen, fundamentering vurdert som tilfredsstillende

Fundamentering på fjell i dagen for garasje og bod

Rekkverk Rekkverk til balkong

Antall: 1

Rekkverk til balkong på bolig

Rekkverk for balkong

Isolasjon Isolasjon i vegger og tak

Isolasjon i vegger og tak iht. TEK17 krav for bolig

Isolasjon for boligstandard

Vinduer Fasadevindu

🧱 Tre

Antall: 5

Fasadevindu i tre, inkludert 1 vindu i stue og 1 i sov, samt 3 vinduer på tilbygg til garasje

Fasadevindu i tre til bolig og tilbygg

Dører Ytterdør og boddør

🧱 Tre

Antall: 7

Ytterdører til bolig, bod og carport/bod

Ytterdører i tre til bolig, bod og carport/bod

VVS Fuktsikring våtrom

Uavhengig kontroll av fuktsikring i våtrom utført av Lillestrøm Rørleggerbedrift AS

Fuktsikring og kontroll av våtrom

Elektro Elektriske varmekabler og panelovner

Elektriske varmekabler og panelovner installert

Elektrisk oppvarming i bolig

Tømrer Ombygging og tilbygg

🧱 Tre

Bruksendring av låve til bolig, tilbygg til garasje, ombygging av carport til bod

Tømrerarbeid for bruksendring og tilbygg

Bad Bad og våtrom

Antall: 2

To bad i bolig, kontrollert for fuktsikring

Bad og våtrom i bolig

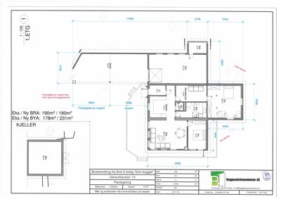
Plantegning

Enebolig 257.0 m²

Etasje 0 26.0 m²

Rom Areal Vinduer Dører
Bod 26.0 m² 0 1

Etasje 1 231.0 m²

Rom Areal Vinduer Dører
Carport 5,896.0 m² 0 0
Gang 4.0 m² 0 1
Kjøkken 16.0 m² 0 1
Vaskerom 4.0 m² 0 1
Stue 26.0 m² 1 1
Sov 13.0 m² 1 1
Bad 10.0 m² 0 1
Vg 1.0 m² 0 0
Sekunder-stue 12.0 m² 0 1
Sov 26.0 m² 0 1
Bad 41.0 m² 0 1
Bod 5.0 m² 0 1

Bod 42.0 m²

Etasje 0 42.0 m²

Rom Areal Vinduer Dører
Bod 42.0 m² 3 1
Bod 42.0 m² 0 0

Fasader

Enebolig

Nord
Materiale
Tre
Taktype
Saltak
Høyde
5.0 m
Vinduer
1
Dører
0
Balkonger
1
Synlige etasjer
2
Vest
Materiale
Tre
Vinduer
0
Dører
0
Synlige etasjer
1

Garasje

Nord
Taktype
Saltak
Høyde
3.7 m
Mønehøyde
5.4 m
Vinduer
0
Dører
0
Synlige etasjer
1

Tilbygg til garasje

Syd
Taktype
Saltak
Høyde
5.4 m
Mønehøyde
8.1 m
Vinduer
3
Dører
0
Synlige etasjer
1
Sør
Taktype
Saltak
Høyde
5.4 m
Mønehøyde
8.1 m
Vinduer
3
Dører
0
Synlige etasjer
1

Bod

Nord
Taktype
Saltak
Høyde
4.5 m
Vinduer
0
Dører
1
Synlige etasjer
1

Hendelser

09.04.2026 25/07567-17 461/5 Supplering av søknad om ferdigattest
03.02.2026 25/07567-16 461/5 Innsending av supplerende dokumentasjon - Dispensasjonssøknad 19.06.2025
02.02.2026 25/07567-15 461/5, Gansvikaveien 13, godkjent endring av tillatelse for bruksendring fra driftsbygning til bolig, tilbygg til garasje og bod – dispensasjon fra byggegrense mot vassdrag
13.01.2026 25/07567-13 461/5 Uttalelse til søknad om tiltak på SEFRAK-registrert bygning fra før 1850
06.01.2026 25/07567-12 461/5, Gansvikaveien 13, anmodning om uttalelse til tiltak på SEFRAK-registrert bygning fra før 1850 i KULA-område
02.01.2026 25/07567-11 461/5 Supplering - Søknad om endring av gitt tillatelse
10.12.2025 25/07567-10 461/5, Gansvikaveien 13, mangelbrev til søknad om søknad om ferdigattest for bruksendring fra driftsbygning til bolig, trippelgarasje og carport (bod)
01.12.2025 25/07567-7 461/5 Søknad om ferdigattest
01.12.2025 25/07567-8 461/5 Ettersender signert egenerklæring for selvbygger
13.11.2025 25/07567-6 461/5, Gansvikaveien 11-13, referat dialogmøte 07.11.2025