Extension MidlertidigBrukstillatelse Naeringsbygg

Tilbygg, påbygg og hovedombygging av næringsbygg i Gråterudveien 8, Drammen

πŸ“ Gråterudveien 8

NΓΈkkelinfo

Sakstype
Tilbygg
Bygningstype
Naeringsbygg
Bruksareal
7,090 mΒ²
Kommune
Drammen
Fylke
Buskerud
Saksnummer
23/36642
Fase
Midlertidig brukstillatelse

Om byggesaken

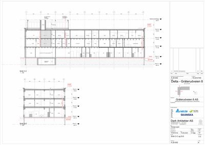
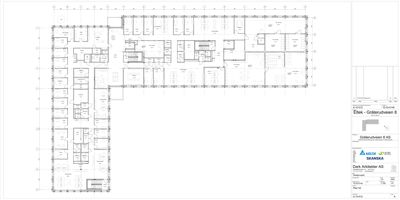
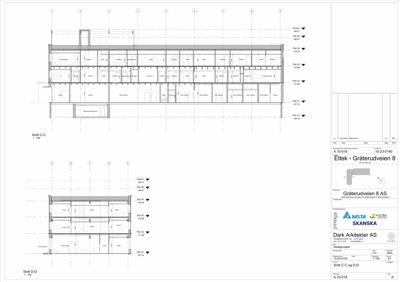
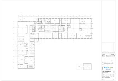
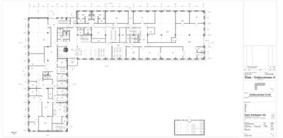
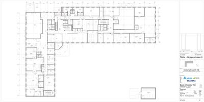
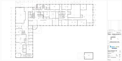
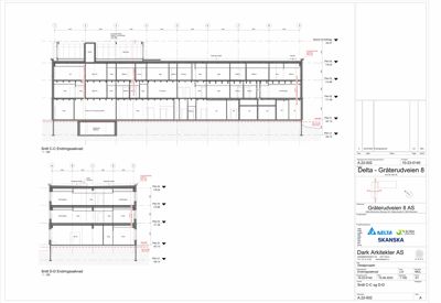
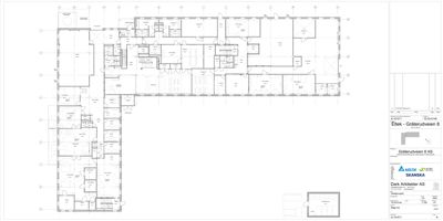
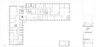
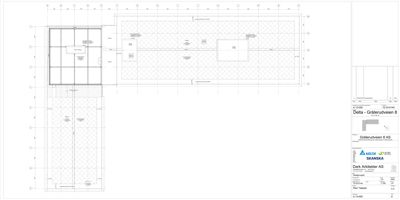
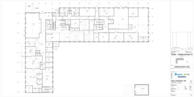
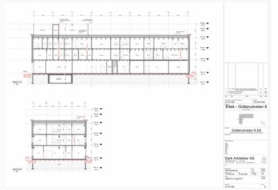
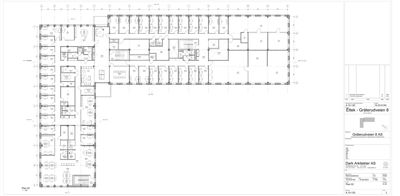
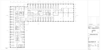
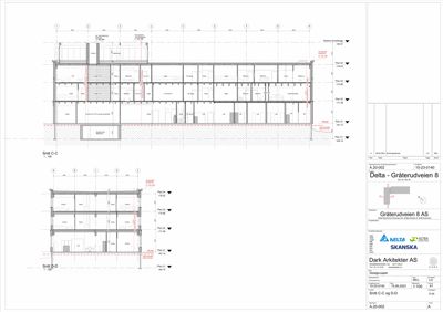
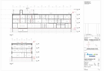
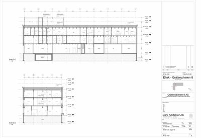
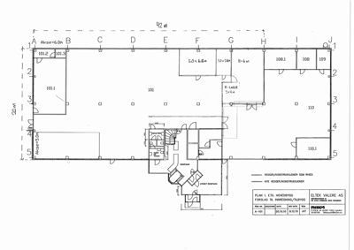
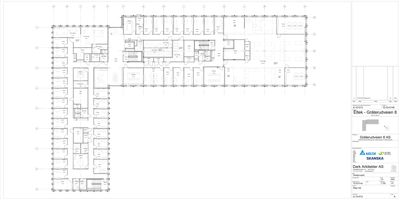
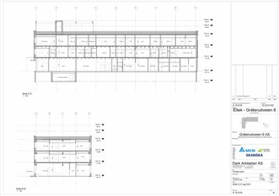
Prosjektet omfatter totalrenovering og utvidelse av eksisterende næringsbygg i Gråterudveien 8, Drammen. Det inkluderer påbygg av en ekstra etasje på sidebygget med takterrasse, heving av tak på hovedbygget for økt isolasjon og tekniske installasjoner, samt en helhetlig fasadeendring med bruk av prefabrikkerte betongelementer og treverk. Bygget får nye kontor- og laboratoriearealer, forbedret inngangsparti, og tilrettelegging for universell utforming. Utomhusplanen inkluderer ny sykkelgarasje, parkeringsplasser, overvannshåndtering med grønne tak og fordrøyningsmagasin, samt miljøsanering av farlig avfall. Prosjektet har omfattende tekniske løsninger inkludert geobrønner, solcelleanlegg, brannalarmanlegg, ventilasjon, og løfteinnretninger. Det er gjennomført grundige geotekniske undersøkelser og stabilitetsvurderinger, og det foreligger godkjente ansvarsretter for alle fagområder. Prosjektet er i sluttfasen med midlertidig brukstillatelse og søknad om ferdigattest.

Produkter og materialer

VVS Ventilasjon, sanitærinstallasjoner, varme- og kuldeinstallasjoner, brannalarmanlegg, slukkeinstallasjoner

Omfattende VVS-installasjoner med ansvarlige foretak og samsvarserklæringer

Tekniske installasjoner for ventilasjon, sanitær, varme, brann og slukkeanlegg

Gulv Vinylbelegg, linoleumsbelegg, fliser

Vinylbelegg og vaskelister med høye ftalatkonsentrasjoner, linoleumsbelegg og fliser skal sorteres som farlig avfall

Gulvbelegg og vaskelister med miljøfarlige stoffer som ftalater

Vinduer Isolerglassruter

Antall: 505

Klorparafinholdige og ftalatholdige isolerglassruter, demonteres og leveres hele til godkjent mottak

Isolerglassruter i bygget med miljøfarlige stoffer som PCB, klorparafiner og ftalater

Trapper Ståltrapper, flekstrapp, løfteinnretninger, heiser

Ståltrapper og flekstrapp, heiser med sluttkontrollsertifikater

Innvendige trapper og løfteinnretninger i bygget

Tak Taktekking med takpapp og takduk

Taktekking med takpapp og takduk, noen prøvetatt for PAH og ftalater, må prøvetas før riving

Taktekking på hoved- og sidebygg med takpapp og takduk, inkludert sedum og blått tak

Utomhus Sykkelparkering under tak, gjerde, beplantning, drenering

Antall: 56

56 sykkelparkeringsplasser under tak, gjerde rundt tekniske laster, beplantning og drenering i uteareal

Utomhusanlegg for sykkelparkering og landskapsutforming

Miljøsanering Sanering av asbest, ftalater, klorerte parafiner, bromerte flammehemmere, tungmetaller, olje, PCB

Omfattende miljøsanering med sortering og levering til godkjent mottak

Miljøsanering av farlig avfall i bygget

Solceller Takintegrerte solcellepaneler

Antall: 907

Solcelleanlegg på tak med ca. 907 m2 dekke

Solcelleanlegg for fornybar energi på tak

Dører Branndører, garasjeporter, isolert skyveport, kjøleromsdør

Antall: 20

Branndører og garasjeporter med ozonødeleggende stoffer, leveres som farlig avfall

Dører i bygget som inneholder ozonødeleggende stoffer

Fasade Prefabrikkerte betongelementer og trekledning

Prefabrikkerte betongelementer med markerte spor, trekledning med brun oljebeis og grønnfarge

Fasadeendring med nye prefabrikkerte betongelementer og trekledning i kombinasjon med fargesetting

Betong Plasstøpte betongkonstruksjoner, prefabrikkerte betongelementer

Plasstøpte betongkonstruksjoner med radonsperre, prefabrikkerte betongelementer til fasade

Betongkonstruksjoner for fundamenter, bærende elementer og fasader

Veg- og grunnarbeider Ny fundamentering med peler, utvendig VA og overvannshåndtering

Grunnarbeider med nyfundamentering på peler, utvendig vann- og avløpsanlegg, overvannshåndtering med fordrøyningsmagasin og flomveier

Grunnarbeider for fundamenter og VA-installasjoner

Tømrer Montering av trekonstruksjoner, massivtre/limtre, systemvegger

Innvendig og bærende trekonstruksjoner, systemvegger, massivtre/limtre bæresystem

Tømrerarbeid for bæresystem og innvendige vegger

Maling Utvendig og innvendig maling

Maling med lavt innhold av tungmetaller, men enkelte veggmalinger med sink

Maling på vegger og fasader

Elektro Ledesystem, brannalarmanlegg, elektriske installasjoner

Installasjon av ledesystem og brannalarmanlegg med ansvarlige foretak

Elektriske installasjoner for sikkerhet og ledelys

Hendelser

07.04.2026 Gråterudveien 8 Søknad om ferdigattest 33/45 ferdigattest
02.02.2026 Gråterudveien 8, midlertidig brukstillatelse for tilbygg, påbygg, fasadeendring og hovedombygging midlertidig_brukstillatelse
30.01.2026 Gråterudveien 8 - Midlertidig brukstillaltese - Bekreftelse på ferdigstilt arbeid
19.01.2026 Gråterudveien 8 Søknad om midlertidig brukstillatelse 33/45 midlertidig_brukstillatelse
08.09.2025 Gråterudveien 8, supplering av søknad søknad
03.09.2025 Gråterudveien 8, vi vurderer at endringene ikke er søknadspliktige søknad
15.07.2025 Gråterudveien 8, søknad om endring av gitt tillatelse søknad
28.05.2025 Gråterudveien 8, tørrkjøler må omsøkes i egen søknad søknad
02.04.2025 Gråterudveien 8 Gjennomføringsplan 33/45
31.03.2025 Gråterudveien 8 Supplering av søknad 33/45 søknad
11.02.2025 Gråterudveien 8, igangsettingstillatelse 3 for resterende bygningsarbeider igangsettingstillatelse
11.02.2025 Gråterudveien 8 Søknad om igangsettingstillatelse 33/45 igangsettingstillatelse
11.02.2025 Gråterudveien 8, svarbrev
11.02.2025 Gråterudveien 8, avklaring av mindre endringer innenfor gitte rammer
06.02.2025 Gråterudveien 8, igangsettingstillatelse 2 for bæresystem og tett bygg igangsettingstillatelse
06.02.2025 Gråterudveien 8, melding om mottatt søknad søknad
06.02.2025 Gråterudveien 8 Søknad om igangsettingstillatelse 33/45 igangsettingstillatelse
06.02.2025 Gråterudveien 8, tillatelse til endring av tidligere gitt tillatelse
06.02.2025 Gråterudveien 8, presisering gesimshøyder
06.02.2025 Gråterudveien 8, supplering til søknad om endring - nabovarsel nabovarsel
06.02.2025 Gråterudveien 8 Supplering av søknad 33/45 søknad
06.02.2025 Gråterudveien 8, søknad om endring av gitt tillatelse søknad
12.09.2024 Gråterudveien 8, melding om mottatt søknad søknad
21.06.2024 Gråterudveien 8, igangsettingstillatelse 1 og endring av tidligere gitt rammetillatelse igangsettingstillatelse
11.06.2024 Gråterudveien 8, melding om mottatt søknad søknad
10.06.2024 Gråterudveien 8 Søknad om igangsettingstillatelse 33/45 igangsettingstillatelse
21.05.2024 Gråterudveien 8, Vi innvilger søknaden om samtykke etter automatisk saksbehandling søknad
30.01.2024 Gråterudveien 8, rammetillatelse for tilbygg, påbygg, fasadeendring og hovedombygging av næringsbygning rammetillatelse
22.12.2023 Saksprotokoll Hovtt, 21122023, Sak 21/23, Gråterudveien 8, dispensasjon fra maksimal tillatt gesimshøyde i kommuneplanen for oppføring av påbygg på næringsbygning dispensasjon
18.12.2023 Gråterudveien 8, Etterspurt dokumentasjon til søknad om rammetillatelse rammetillatelse
12.12.2023 Gråterudveien 8, orientering om politisk behandling av dispensasjon fra maksimal tillatt gesimshøyde dispensasjon
21.11.2023 Gråterudveien 8, komplettering av revidert takplan
20.11.2023 Gråterudveien 8, komplettering av reviderte fasadetegninger
20.11.2023 Gråterudveien 8, dispensasjonssøknad - regulert høyde dispensasjon
19.09.2023 Gråterudveien 8, melding om mottatt søknad søknad
18.09.2023 Gråterudveien 8, Søknad om rammetillatelse rammetillatelse