Extension Igangsettingstillatelse Naeringsbygg

Tilbygg, sykkelbod og kildesorteringssentral i Industriveien 30, Spikkestad

📍 Industriveien 30 , 3430 SPIKKESTAD

Nøkkelinfo

Sakstype
Tilbygg
Bygningstype
Naeringsbygg
Bruksareal
144 m²
Kommune
Asker
Fylke
Akershus
Gnr / Bnr
206 / 47
Saksnummer
25/2487
Fase
Igangsettingstillatelse

Om byggesaken

Prosjektet omfatter et tilbygg med nytt vindfang på 25 m² med glassfasade og trespiler, en frittstående sykkelbod i trekonstruksjon på 19,1 m² med plass til 20 sykler og lademulighet for elsykler, samt en kildesorteringssentral på 96,4 m² med stålkonstruksjon, søyler og tak, inkludert et rom for småfraksjoner på 8,7 m². Bygningene har flate tak med gesimshøyder på 2,8–6 meter. Fundamentering skjer med grunne fundamenter og plasstøpte betongkonstruksjoner. Tiltaket inkluderer riving av eksisterende vindfang og bod. Prosjektet er planlagt uten vesentlige terrenginngrep, og det er gjennomført geoteknisk vurdering som konkluderer med at tiltaket kan utføres uten spesielle geotekniske tiltak. Det er planlagt ventilasjon, varme- og kuldeinstallasjoner, brannkonsept, ledelyssystem og brannalarmanlegg. Arealutnyttelsen økes marginalt fra 24,3 % til 24,8 % BYA på tomten på 26 665 m². Tiltaket er i tråd med reguleringsplan og kommuneplan for området.

Produkter og materialer

Fasade Vindfang i glass med trespiler

🧱 Glass og tre

Antall: 1

Nytt vindfang på 25 m² BYA med glassfasade og trespiler, gesimshøyde 3,55 m

Tilbygg til eksisterende bygg med nytt inngangsparti og vindfang

VVS Varme- og kuldeinstallasjoner

Supplering av varme- og kuldeinstallasjoner i nytt inngangsparti

VVS-installasjoner for tilbygg

Stål Bærende metallkonstruksjoner

🧱 Stål

Stålkonstruksjon med søyler og tak for kildesorteringssentral

Montering av bærende stålramme for kildesorteringssentral

Tømrer Trekonstruksjoner for sykkelbod og vindfang

🧱 Tre

Montering av trekonstruksjoner med trespiler for sykkelbod og vindfang

Tømrerarbeid for trekonstruksjoner og fasader

Brannvern Brannkonsept

Prosjektering av brannkonsept for tiltaket

Brannsikkerhetsplanlegging og prosjektering

Fasade Sykkelbod i trekonstruksjon

🧱 Tre med trespiler

Antall: 1

Sykkelbod på 19,1 m² BYA med flatt tak, gesimshøyde 2,8-3,55 m, plass til 20 sykler, lademulighet for elsykler

Frittstående sykkelbod for ansatte med lås og lademulighet

Grunnarbeid Fundamenter for bygg

🧱 Betong

Grunne fundamenter ca. 1 meter dybde, plasstøpte betongkonstruksjoner

Fundamentering for tilbygg, sykkelbod og kildesorteringssentral

Fasade Kildesorteringssentral i stålkonstruksjon

🧱 Stål og sementplater

Antall: 1

Kildesorteringssentral på 96,4 m² med stålkonstruksjon, søyler og tak, inkl. rom for småfraksjoner på 8,7 m², gesimshøyde 6 m

Frittstående bygg for avfallshåndtering med komprimator under tak

Elektro Brannalarmanlegg og ledelyssystem

Prosjektering og installasjon av brannalarmanlegg og ledelyssystem for nye konstruksjoner

Elektroarbeid for brannsikkerhet og ledelys

Riving Riving av eksisterende inngang og bod

Riving av eksisterende vindfang på 14,5 m² og bod på 7 m²

Fjerning av eksisterende bygningsdeler for å gi plass til nytt tilbygg og kildesorteringssentral

Betong Plasstøpte betongkonstruksjoner

🧱 Betong

Plasstøpte konstruksjoner for fundamenter og bærende elementer

Betongarbeid for fundamenter og bærende konstruksjoner

Ventilasjon Ventilasjon og klimainstallasjoner

Supplering av ventilasjon i nytt inngangsparti og øvrige bygg

Ventilasjonsarbeid for tilbygg og frittstående bygg

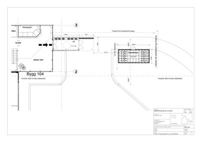
Plantegning

Kildesorteringssentral 96.4 m²

Etasje 1 96.4 m²

Rom Areal Vinduer Dører
Kildesorteringssentral 101 87.7 m² 0 0
Småfraksjoner 102 8.7 m² 0 1

Fasader

Sykkelpod

Sør
Materiale
Tre
Taktype
Flatt tak
Høyde
3.5 m
Vinduer
0
Dører
0
Synlige etasjer
1
Øst
Materiale
Tre
Taktype
Flatt tak
Høyde
2.8 m
Vinduer
0
Dører
0
Synlige etasjer
1
Vest
Materiale
Tre
Taktype
Flatt tak
Høyde
2.8 m
Vinduer
0
Dører
0
Synlige etasjer
1

Sykkelbod

Øst
Materiale
Tre
Taktype
Flatt tak
Vinduer
0
Dører
1
Synlige etasjer
1
Nord
Materiale
Tre
Taktype
Flatt tak
Vinduer
0
Dører
1
Synlige etasjer
1

Hendelser

13.04.2026 206/47 Industriveien 30 - Gjennomføringsplan
16.02.2026 206/47 Industriveien 30 - Gjennomføringsplan og ansvarserklæringer
02.12.2025 206/47 Industriveien 30 - Igangsettingstillatelse - Tilbygg og frittstående bygg
20.11.2025 206/47 Industriveien 30 - Søknad om igangsettingstillatelse
19.11.2025 206/47 Industriveien 30 - Rammetillatelse for tilbygg og frittstående bygg
13.11.2025 206/47 Industriveien 30 - Svar på mangelbrev av 311025
31.10.2025 206/47 Industriveien 30 - Ufullstendig søknad - Tilbygg og frittstående bygg
20.10.2025 206/47 Industriveien 30 - Frist for søknadsbehandling utløpt
20.10.2025 206/47 Industriveien 3 - Frist for søknadsbehandling utløpt
23.09.2025 206/47 Industriveien 30 - Etterspør status i saken
23.07.2025 206/47 Industriveien 30 - Søknad om rammetillatelse - Tilbygg og frittstående bygg