Extension UnderBehandling Naeringsbygg

Ny driftsbygning ved Knardalveien 171

📍 Knardalveien 169 , 1455 NORDRE FROGN

Nøkkelinfo

Sakstype
Tilbygg
Bygningstype
Naeringsbygg
Bruksareal
84 m²
Kommune
Frogn
Fylke
Akershus
Gnr / Bnr
43 / 10
Saksnummer
26/10484
Fase
Under behandling

Om byggesaken

Ny driftsbygning på totalt 84,1 m² fordelt på to etasjer med saltak og trekledning. Bygget inneholder maskinrom på 45,6 m² og redskapslager på 38,5 m². Bygningen har en gesimshøyde på ca. 6,5 meter og mønehøyde opp til 17,4 meter, med flere vinduer og dører fordelt på fasadene. Fundamentering og sprengningsarbeider er planlagt og dokumentert, og bygget har garasjeport på sørsiden. Bygget er et næringsbygg tilknyttet landbruksdrift.

Produkter og materialer

Trapper Innvendig trapp

Antall: 1

Innvendig trapp til 2. etasje

Garasjeport Port på sørfasade

Antall: 1

Garasjeport på sørfasade

Garasjeport for innkjøring til driftsbygning

Grunnarbeid Fundamentering og sprengningsarbeider

Utgraving og fundamentering av byggegrop, sprengningsarbeider dokumentert med sjekklister

Grunnarbeid med sprengning og fundamentering tilpasset driftsbygningens størrelse og bruk

Tak Saltak

Saltak med takvinkel 30-38 grader

Saltak med tilpasset takvinkel for driftsbygningen

Betong Grunnmur og fundament

🧱 Betong

Grunnmur høyde ca. 10,6 meter kotehøyde

Betongfundament og grunnmur for driftsbygning

Dører Ytterdører

Antall: 3

2 dører på østfasade, 1 dør i 1. etasje

Ytterdører til maskinrom og lager

Fasade Trekledning

🧱 Tre

Trekledning på fasader øst og nord

Fasade med trekledning på flere sider av bygget

Vinduer Fasadevindu

Antall: 5

3 vinduer på østfasade, 2 vinduer på nordfasade

Fasadevindu fordelt på øst og nordfasade

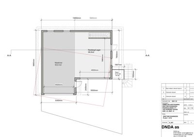
Plantegning

Driftsbygningen 84.1 m²

Etasje 1 84.1 m²

Rom Areal Vinduer Dører
Maskiner 101 45.6 m² 0 1
Redskap/Lager 102 38.5 m² 0 1

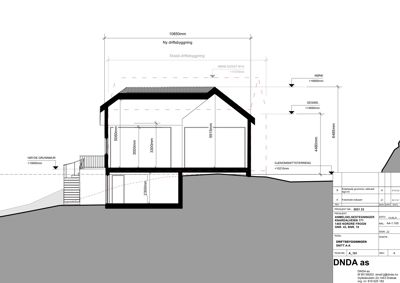
Fasader

Driftsbygning

Øst
Materiale
Tre
Taktype
Saltak
Høyde
6.5 m
Mønehøyde
16.7 m
Vinduer
3
Dører
2
Synlige etasjer
2
Sør
Taktype
Saltak
Høyde
4.5 m
Mønehøyde
6.7 m
Vinduer
0
Dører
0
Synlige etasjer
1
Vest
Taktype
Saltak
Høyde
6.5 m
Mønehøyde
17.4 m
Vinduer
0
Dører
0
Synlige etasjer
1
Nord
Materiale
Tre
Taktype
Saltak
Høyde
4.5 m
Mønehøyde
8.2 m
Vinduer
2
Dører
0
Synlige etasjer
1

Hendelser

16.04.2026 26/10484-3 Svar på varsel på tilsyn - 43/10/0/0 - Knardalveien 171 - Foretakstilsyn - Follo Utemiljø AS
07.04.2026 26/10484-1 Varsel om tilsyn driftsbyging Knardalveien 171