Extension Igangsettingstillatelse Naeringsbygg

Nytt takoverbygg (hall) på Hardingsmolt, Lysevegen 20

📍 Lysevegen 20 , 5620 TØRVIKBYGD

Nøkkelinfo

Sakstype
Tilbygg
Bygningstype
Naeringsbygg
Bruksareal
8,264 m²
Kommune
Kvam
Fylke
Vestland
Gnr / Bnr
86 / 98
Saksnummer
25/1094
Fase
Igangsettingstillatelse

Om byggesaken

Ny hall som takoverbygg over eksisterende lagerbygg og konstruksjoner på Hardingsmolt industriområde i Tørvikbygd. Byggetrinn B omfatter et bebygd areal på 3 678 m², bruksareal på 8 163 m² og bruttoareal på 8 264 m². Hallen har flatt betongtak på tre fasader og saltak på sørfasaden med gesims- og mønehøyder rundt 14,8-15,5 meter over terreng. Bygget inneholder lager, teknikkrom, lokaler, skur og kjøkken, alle i én etasje. Fundamentering og geoteknikk er prosjektert med uavhengig kontroll. Tiltaket er i tråd med gjeldende reguleringsplan og inkluderer nye parkeringsplasser, samt håndtering av overvann og avløp til eksisterende anlegg. Byggearbeidene er i gang med godkjent igangsettingstillatelse for grunn- og betongarbeider.

Produkter og materialer

Betong Betongkonstruksjoner

🧱 Betong

Betongkonstruksjoner for takoverbygg og lagerbygg

Betongarbeider for konstruksjon og fundamentering

Grunnarbeid Fundamentering og geoteknikk

Prosjektert fundamentering med geoteknisk uavhengig kontroll

Grunnarbeider og fundamentering for nytt takoverbygg

Elektro Teknikkrom installasjoner

Teknikkrom på 83,6 m² for tekniske installasjoner

Elektroinstallasjoner i teknikkrom

Tak Flatt tak og saltak

🧱 Betong og taktekking

Flatt tak på tre fasader, saltak på sørfasade med mønehøyde 15,55 m

Takoverbygg med kombinasjon av flatt tak og saltak

Terrasse Overbygg og gangareal

Overbygd korridor og trafikkareal i tilknytning til hallen

Utendørs overbygg og gangareal knyttet til hallen

Stål Stålkonstruksjon vegger og tak

🧱 Stål

Stålkonstruksjon for vegger og tak i hallen

Stålkonstruksjoner for bærende elementer i takoverbygg

Fasade Betongfasade

🧱 Betong

Fasader i betong med flatt tak på vest, øst og nord, saltak på sørfasade, gesimshøyde ca. 15 m

Betongfasader med flatt og saltak som takoverbygg over eksisterende bygg

VVS Sanitærinstallasjoner

Nye sanitærfasiliteter med avløp til eksisterende minirenseanlegg via pumpe

Sanitærinstallasjoner i ny hall

Annet Parkeringsplasser

Antall: 3

Tre nye parkeringsplasser på egen tomt inntil hallen

Nye parkeringsplasser i tilknytning til takoverbygg

Dører Innvendige dører

Antall: 7

Dører til lager, teknikkrom, lokaler, skur og kjøkken

Innvendige dører i takoverbyggets ulike rom

Grunnarbeid VA og overvannshåndtering

Overvann føres til lokalt overvannssystem, avløp til sjø via pumpe, eksisterende minirenseanlegg benyttes

VA- og overvannshåndtering i henhold til reguleringsplan

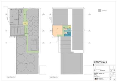
Plantegning

Takoverbygg 207.5 m²

Etasje 1 207.5 m²

Rom Areal Vinduer Dører
Lager Lager 207.5 m² 0 1
Teknikkrom Teknikkrom 83.6 m² 0 1
Lokale Lokale 17.9 m² 0 1
Skur nord Skur nord 8.9 m² 0 1
Kjøkken nord Kjøkken nord 45.7 m² 0 1
Skur sør Skur sør 8.9 m² 0 1
Kjøkken sør Kjøkken sør 40.3 m² 0 1

Fasader

Takoverbygg

Vest
Materiale
Betong
Taktype
Flatt tak
Høyde
15.0 m
Vinduer
0
Dører
0
Synlige etasjer
1
Aust
Materiale
Betong
Taktype
Flatt tak
Høyde
15.6 m
Vinduer
0
Dører
0
Synlige etasjer
1
Nord
Materiale
Betong
Taktype
Flatt tak
Høyde
14.8 m
Vinduer
0
Dører
0
Synlige etasjer
1
Sør
Materiale
Betong
Taktype
Saltak
Høyde
14.8 m
Mønehøyde
15.6 m
Vinduer
0
Dører
0
Synlige etasjer
1

Hendelser

21.04.2026 Vi innvilger søknaden om samtykke etter automatisk saksbehandling
13.11.2025 Transport mobilkran
11.11.2025 Transport mobilkran
04.11.2025 Trafikksituasjonen i Lysevegen ved Hardingsmolt sin byggjeaktivitet
20.08.2025 Vedtaksbrev DRAD 263/25 - Godkjent igangsettingsløyve grunn og betong
20.08.2025 gebyr
12.08.2025 Søknad om igangsettingstillatelse gnr 86 bnr 98
03.03.2025 Vedtak DRAD 063 25 - Godkjent rammeløyve til tiltak på gnr. 86 bnr. 98 i Tørvikbygd. Nytt overbygg
03.03.2025 gebyr
28.02.2025 Tilleggsopplysningar - arealoversikt
28.02.2025 Etterlyser arealoppstilling for bebygdareal , bruksareal og bruttoareal for ny hall-byggetrinn B.
24.02.2025 Søknad om rammetillatelse gnr 86 bnr 98
24.02.2025 Førebels svar på søknad om rammetillatelse på gnr. 86 bnr. 98 i Tørvikbygd. Ny overbygg hall