Extension Rammetillatelse Naeringsbygg

Tilbygg til driftsbygning i Norddalsfjord 1585, Kinn

📍 Norddalsfjord 1585 , 6910 FLORØ

Nøkkelinfo

Sakstype
Tilbygg
Bygningstype
Naeringsbygg
Bruksareal
451 m²
Kommune
Kinn
Fylke
Vestland
Gnr / Bnr
78 / 2
Saksnummer
2026/2599
Fase
Rammetillatelse

Om byggesaken

Ny to-etasjes tilbygg på 451 m² BYA til eksisterende driftsbygning fra 1995 på Norddalsfjord 1585. Tilbygget har saltak og mønt himling, med underetasje som gjødselkjeller og hovedetasje for husdyrrom, inkludert nye ku-båser. Eksisterende bygning og tilbygg vil samlet ha 891 m² BYA og 964 m² BRA. Bygget er i tre med rødmalt fasade og saltak, og har flere vinduer og dører fordelt på fasadene. Bygget er plassert med 8,6 meter minste avstand til fylkesveg 5698, med dispensasjon fra byggegrense. Det er gjennomført omfattende skred- og flomfarevurderinger som konkluderer med lav risiko. Det foreligger avstandserklæring fra nabo og godkjent flytting av høyspentkabler. Prosjektet inkluderer tekniske rom, tårnsilo, kalvings- og sykebinger, samt melkefjøs i hovedbygget.

Produkter og materialer

Ventilasjon Ventilasjonsanlegg for husdyrrom

Ventilasjon for husdyrrom i tilbygg

Ventilasjonsanlegg for dyrehold

Grunnarbeid Flytting av høyspentkabler

Flytting av høyspentkabler rundt tilbygget, jordkabel og luftstrekk

Flytting av høyspentlinje for å gi plass til tilbygg

Fasade Trepanel med saltak

🧱 Tre, rødmalt

Saltak med mønt himling, rødmalt trepanel, 2 etasjer

Fasade i tre med saltak, rød farge, 2 etasjer

VVS Gjødselhåndtering og ventilasjon

Ventilasjon og gjødselhåndtering i underetasje og husdyrrom

VVS-installasjoner for gjødselkjeller og husdyrrom

Betong Gjødselkjeller

🧱 Betong

Underetasje som gjødselkjeller i betong

Betongkonstruksjon for gjødselkjeller under tilbygg

Maling Utvendig maling

🧱 Rød maling

Rød utvendig maling på trepanel

Maling av fasade i tre

Tømrer Innvendige vegger og tak

🧱 Tre

Innvendige vegger og tak i tilbygg og eksisterende bygg

Tømrerarbeid for innvendige konstruksjoner

Dører Ytterdører og dobbel dør

Antall: 6

Dører fordelt på fasader: Øst 1, Nord 1, samt 4 dører i byggets etasjer

Ytterdører i tilbygg og eksisterende bygg

Isolasjon Isolasjon i vegger og tak

Isolasjon iht. TEK17 for driftsbygning

Isolasjon i vegger og tak for nytt tilbygg

Elektro El-installasjoner

Elektriske installasjoner i tilbygg og eksisterende bygg

El-installasjoner for driftsbygning og tilbygg

Vinduer Fasadevindu

Antall: 18

Vinduer fordelt på fasader: Vest 8, Øst 5, Nord 1, Sør 4

Fasadevindu i trebygget driftsbygning

Grunnarbeid Fundamentering og grunnmur

Grunnarbeid for tilbygg med gjødselkjeller i underetasje

Fundamentering og grunnmur for nytt tilbygg med underetasje

Annet Avfallsplan og miljøtiltak

Avfallsplan for byggeavfall med sortering og disponering

Plan for håndtering av avfall under bygging

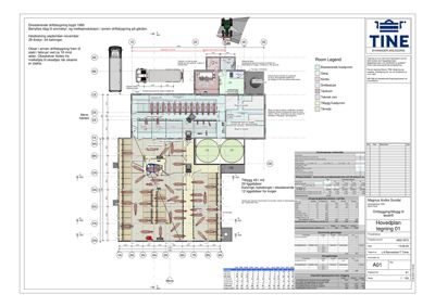
Plantegning

Driftsbygning 2,056.0 m²

Etasje 1 2,056.0 m²

Rom Areal Vinduer Dører
Gang 101 48.0 m² 0 3
Kontor 102 17.5 m² 1 1
Smittesluse 103 6.0 m² 0 2
Tankrom 104 17.5 m² 0 1
Teknisk rom 105 24.0 m² 0 1
Tårnsilo 106 158.0 m² 0 0
Binger for sau/geit 107 24.0 m² 0 1
Kalver 108 132.0 m² 0 0
Kalvings-/sykebinger 109 48.0 m² 0 0
Melkefjøs 110 1,560.0 m² 0 0

Fasader

Løsdrift

Vest
Materiale
Tre
Taktype
Saltak
Vinduer
8
Dører
0
Synlige etasjer
2
Øst
Materiale
Tre
Taktype
Saltak
Vinduer
5
Dører
1
Synlige etasjer
2
Nord
Materiale
Tre
Taktype
Saltak
Vinduer
1
Dører
1
Synlige etasjer
2
Sør
Materiale
Tre
Taktype
Saltak
Vinduer
4
Dører
0
Synlige etasjer
2

Hendelser

15.04.2026 Vedtak - Gbnr 78/2 - Norddalsfjord 1585 - tilbygg driftsbygning
08.04.2026 Avfallsplan gbnr 78/2
27.03.2026 Avstandserklæring 2 meter
27.03.2026 Korrespondanse med Linja - Flytting av linje, sak 26_2599
26.03.2026 Manglar ved søknaden - 78/2 - Norddalsfjord 1585 - tilbygg driftsbygning
25.03.2026 Uttale landbruk
23.03.2026 Søknad om tillatelse til tiltak uten ansvarsrett gbnr 78/2
23.03.2026 Kopi av brev - Dispensasjon fra byggegrense - tilbygg driftsbygning - gbnr 78/2 - fv. 5698 - Norddalsfjord - Kinn kommune