Extension Soeknad Naeringsbygg

Utskifting av heis i Grue Sparebank, Solørveien 1048

📍 Solørvegen 1048 , 2260 KIRKENÆR

Nøkkelinfo

Sakstype
Tilbygg
Bygningstype
Naeringsbygg
Kommune
Grue
Fylke
Innlandet
Gnr / Bnr
16 / 137
Saksnummer
26/3922
Fase
Søknad

Om byggesaken

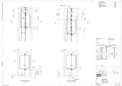
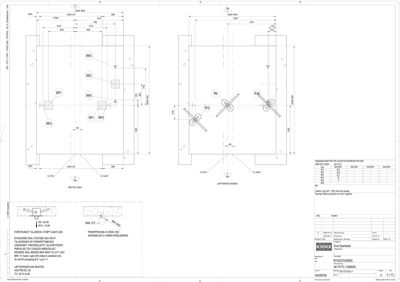
Prosjektet omfatter full utskifting av eksisterende heis i bankbygget på Solørveien 1048. Den nye heisen er en MonoSpace 500 DX med en lastekapasitet på 680 kg og plass til 9 personer. Heissjakten er av betong med minimum veggtykkelse på 150 mm, og heiskupéens dimensjoner er 1150 mm bredde og 1520 mm dybde med døråpning på 900 x 2000 mm. Installasjonen inkluderer ventilasjon i sjakt og maskinrom, elektriske tilkoblinger, belysning i sjakt og maskinrom, samt mekaniske sikkerhetskomponenter som fangapparat og buffer. Det er søkt om unntak fra TEK17 for heiskupéens størrelse for å unngå inngrep i bærende konstruksjoner. Prosjektet krever betongarbeid for tilpasning av sjaktåpninger og elektriske installasjoner.

Produkter og materialer

Elektro Elektriske installasjoner for heis

3-faset 400 V strømforsyning, stigeledning, sikringer, belysning i sjakt og maskinrom, telefonforbindelse for toveiskommunikasjon

Elektrisk installasjon og tilkobling for heisens drift og sikkerhet

Tømrer Sikring og tilpasning av sjaktåpninger

Sikring av sjaktåpninger under installasjon, tilpasning av døråpninger

Arbeid knyttet til sikring og tilpasning av sjakt for heisinstallasjon

Betong Betongarbeid for sjaktåpninger

🧱 Betong K30

Minimum veggtykkelse 150 mm, betongskjæring i døråpninger og etasjegulv

Tilpasning av eksisterende sjakt for ny heis uten å utvide sjaktens størrelse

Heis Heis MonoSpace 500 DX

Antall: 1

Lastekapasitet 680 kg, 9 personer, hastighet 1 m/s, døråpning 900x2000 mm, kupédimensjoner 1150x1520 mm

Ny heis med tilhørende mekaniske og elektriske komponenter for utskifting i eksisterende sjakt

Ventilasjon Ventilasjon i heissjakt og maskinrom

Ventilasjon som ivaretar varmeavgivelse og fuktighetskontroll, temperatur mellom +5 og +40 grader, maks 95% fuktighet

Ventilasjonssystem for å sikre driftstemperatur og fuktighetsnivå i heissjakt og maskinrom

Hendelser

14.04.2026 Søknad om tillatelse til tiltak - Grue Sparebank, Solørveien 1048