Extension UnderBehandling Naeringsbygg

Tilbygg på næringsbygg i Sjongsvangen, Lesja

📍 Svartdalsvegen 13 , 2665 LESJA

Nøkkelinfo

Sakstype
Tilbygg
Bygningstype
Naeringsbygg
Bruksareal
41 m²
Kommune
Lesja
Fylke
Innlandet
Gnr / Bnr
156 / 1
Saksnummer
2026/170
Fase
Under behandling

Om byggesaken

Ny tilbygg på 41 m² til et eksisterende næringsbygg (gammelt sel fra 1932) på Sjongsvangen, Lesja. Tilbygget er i tre med flatt tak i 1. etasje og saltak i 2. etasje, og inneholder to nye soverom, loftstue, bod og vindfang. Formålet er å oppgradere bygget for bedre funksjonalitet, inkludert nytt inngangsparti, garderobe, lagerplass og et mer moderne kjøkken. Tilbygget vil ikke øke overnattingskapasiteten, men frigjøre lagerplass i den gamle delen. Bygget ligger utenfor fareområder for flom og skred, og det er søkt dispensasjon fra krav om detaljregulering. Fasader er i tre med pipe, og bygget har flere vinduer og dører fordelt på to etasjer.

Produkter og materialer

Gulv Innvendig gulv

🧱 Parkett eller laminat

Innvendige gulvflater i oppholdsrom og soverom

Gulvbelegg til oppholdsrom og soverom i tilbygget

Grunnarbeid Ringmur med støpt plate og radonsperre

🧱 Betong

Ringmur med støpt plate og radonsperre under tilbygget

Grunnmur og fundamentering for tilbygget

Dører Ytterdører

🧱 Tre eller isolert dør

Antall: 3

Ytterdører på fasade sør og vest, inkludert inngangsdør med vindfang

Isolerte ytterdører til inngang og utgang i tilbygget

Tømrer Tømrerarbeid over mur

🧱 Tre

Tømrerarbeid for oppføring av tilbygget over ringmur

Tømrerarbeid for vegger, takstoler og innvendige konstruksjoner

Kjøkken Moderne kjøkkeninnredning

Nytt, mer praktisk og moderne kjøkken i tilbygget

Kjøkkeninnredning med benkeplate, skap og hvitevarer

Isolasjon Vegger og tak

🧱 Mineralull eller tilsvarende

Isolasjon i vegger og tak for energikrav

Isolasjon for varme- og lydisolering i tilbygget

Bad Ingen bad planlagt

Ingen bad eller våtrom i tilbygget

Ingen bad eller våtrom i tilbygget

Ventilasjon Naturlig ventilasjon

Ingen mekanisk ventilasjon nevnt, antatt naturlig ventilasjon

Ventilasjon via vinduer og ventiler

Pipe Murpipe

🧱 Mur

Antall: 1

Pipe tilknyttet tilbygget, synlig på nord og vest fasade

Murpipe for ildsted i tilbygget

Vinduer Fasadevindu

🧱 Tre eller tre/aluminium

Antall: 9

Vinduer fordelt på fasader, totalt 9 vinduer i tilbygget

Fasadevinduer til tilbygget, antatt isolerglass

Elektro Elektrisk anlegg

Elektrisk installasjon for belysning og stikkontakter

Elektrisk anlegg i tilbygget

Fasade Trepanel

🧱 Tre

Tradisjonelle materialer, utvendig maling med dempet fargebruk, fortrinnsvis jordfarger

Trepanel til fasader med tradisjonell utførelse og fargevalg

Tak Flatt tak og saltak

Flatt tak på 1. etasje, saltak på 2. etasje, takmaterialer med mørke matte farger

Taktekking for flatt tak og saltak med mørke matte takmaterialer

Utendørs Flomvoll og drenering

🧱 Massedeponi, jord

Flomvoll på 75 meter og opprensing av elvefaret utført tidligere

Flomforebyggende tiltak rundt bygget

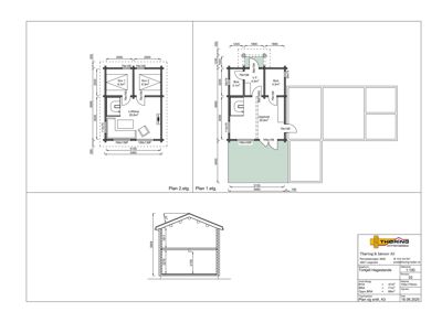
Plantegning

Enebolig 110.2 m²

Etasje 1 69.0 m²

Rom Areal Vinduer Dører
Opphold 101 20.6 m² 1 2
Bod 102 4.5 m² 0 1
Bod 103 4.5 m² 0 1
V.F. 104 4.5 m² 1 1
Bod 105 3.1 m² 0 1

Etasje 2 41.2 m²

Rom Areal Vinduer Dører
Lofstue 201 20.6 m² 1 1
Sov 1 202 6.3 m² 1 1
Sov 2 203 6.3 m² 1 1

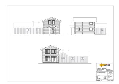
Fasader

Tilbygg

Nord
Materiale
Tre
Taktype
Flatt tak
Vinduer
2
Dører
0
Synlige etasjer
1
Sør
Materiale
Tre
Taktype
Flatt tak
Vinduer
2
Dører
1
Synlige etasjer
1
Vest
Materiale
Tre
Taktype
Saltak
Vinduer
4
Dører
1
Synlige etasjer
2

Hendelser

14.04.2026 Tilbygg på næringsbygg på Sjongsvangen
13.04.2026 Høyring - Dispensasjon frå plankrav for tilbygg på næringsbygg Sjongsvangen
13.02.2026 GID 156/1/66 - Ett-trinns søknad, tilbygg hovedhus Sjongsvangen