Extension Ferdigattest Naeringsbygg

Tilbygg til verkstedbygning i Tømmerkrana 24, Drammen

📍 Tømmerkrana 24 , 3048 DRAMMEN

Nøkkelinfo

Sakstype
Tilbygg
Bygningstype
Naeringsbygg
Bruksareal
811 m²
Kommune
Drammen
Fylke
Buskerud
Gnr / Bnr
105 / 212
Saksnummer
22/33365
Fase
Ferdigattest

Om byggesaken

Ny utvidelse av verkstedbygning på Tømmerkrana 24 i Drammen med et tilbygg på ca. 720 m² BRA, fordelt på lager- og produksjonslokaler. Bygget har to etasjer med mesanin som lager, og inkluderer kontorer, kundemottak, spiserom, garderober med HC-toalett og dusj, samt bilverksted. Bygget er oppført med sandwichelementer på stål bæresystem, med teglbrystning som eksisterende bygg. Taket er isolert med ca. 300 mm isolasjon og tekket med papp/folie. Vinduer, dører og porter har U-verdier på 0,8-1,1 W/m²K. Det er mekanisk ventilasjon, brannalarm, sprinkleranlegg og nødlys installert. Utomhusanlegg inkluderer asfaltering og parkeringsplasser. Alle arbeider er ferdigstilt og godkjent med ferdigattest.

Arbeidsomfang

- Etablering av nytt tilbygg til eksisterende næringsbygg (verkstedbygning) - Totalt bruksareal (BRA): 811 m² - Romfordeling: Renholdsutstyr, HC-toalett, kjønnsdelte garderober, kundemottak, spiserom og verksted - Dusj og toalett i direkte tilknytning til herregarderoben - Etablering av mesanin som lager med adkomst via intern trapp - Bruksområde: Bilverksted for leietaker J/S Serviceteam AS - Installasjon av ventilasjonsløsninger (krav fra Arbeidstilsynet) - Innreding av dusjrom i tråd med forskriftskrav og vilkår

Produkter og materialer

Elektro Brannalarm, nødlys og ledesystem

Installasjon av brannalarm, nødlys og ledesystem

Brannverninstallasjoner i tilbygg

Trapper Innvendig trapp til mesanin

Antall: 1

Intern trapp med rekkverk, adkomst til mesanin lager

Trapp til mesanin i tilbygg

Slukkeinstallasjoner Sprinkleranlegg

Sprinkleranlegg installert i tilbygg

Brannslukking i tilbygg

Stål Bærende stålkonstruksjoner

🧱 Stål bæresystem, stålkonstruksjoner for tak og vegger

Montering av bærende stålkonstruksjoner og sandwichvegger

Stålkonstruksjoner i tilbygg

Vinduer Fasadevindu

Antall: 33

U-verdi 0,8 W/m²K eller bedre, inkludert karm og ramme. Fuges med elastisk fugemasse eller tapes utvendig og innvendig i alle skjøter.

Fasadevindu i tilbygg og eksisterende bygg

Tak Taktekking og isolasjon

🧱 Korrugerte stålplater, papp/folie, isolasjon 300 mm (lambda 0,038 W/mK)

Tak med fall til sluk og innvendige nedløp, minimum 100 mm isolasjon under sluk

Taktekking og isolasjon for tilbygg

VVS Sanitæranlegg

Dusj og toalett i herregarderobe, HC-toalett, kjønnsdelte garderober og toaletter, krav til dusj i henhold til arbeidsmiljøloven

Sanitæranlegg i tilbygg

Fasade Sandwichelementer på stål bæresystem

🧱 Sandwichelementer med U-verdi 0,15 W/m²K, stål bæresystem, brystning i rødt tegl

Elementskjøter markert, fargebruk som eksisterende bygg

Yttervegger i tilbygg

Dører Ytterdør og port

Antall: 7

U-verdi 1,1 W/m²K for dører, 0,99 W/m²K for porter, inkludert karm og ramme. Standarddetaljer fra leverandør følges.

Ytterdører og porter i tilbygg og eksisterende bygg

Ventilasjon Mekanisk ventilasjon og prosesstilpasset avsug

Ventilasjonssystem som sikrer tilfredsstillende inneklima og luftkvalitet, dokumentasjon kreves

Ventilasjon i tilbygg og verksted

Gulv Betonggulv med isolasjon

🧱 Isolert betongplate på mark

Isolert betonggulv i tilbygg

Gulv i tilbygg

Betong Plasstøpte betongarbeider

Plasstøpte fundamenter og betongarbeider

Betongarbeider i tilbygg

Grunnarbeid Grunnarbeider, fundamenter

Sålefundamenter og isolert plate på mark, kapillærbrytende sjikt mellom organisk og uorganisk materiale

Grunnarbeid og fundamentering for tilbygg

Utendørs Asfaltering og parkeringsplass

🧱 Asfalt

Antall: 48

Oppmerking av ca. 48 parkeringsplasser inkl. 3 HC-plasser, asfaltering av uteareal

Utomhusanlegg og parkering

Tømrer Innvendige arbeider

Innvendige tømrerarbeider i tilbygg

Innvendige konstruksjoner og arbeider

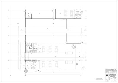
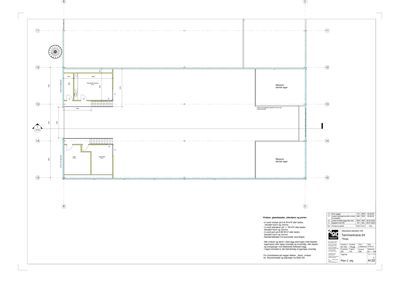
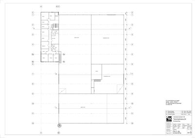
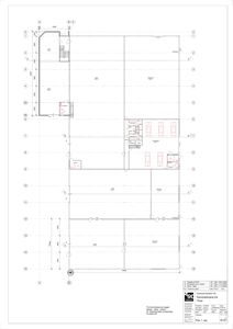
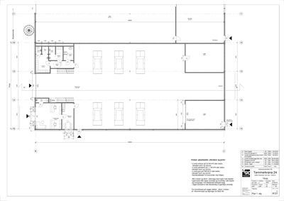
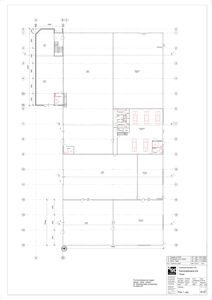
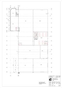
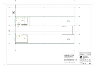
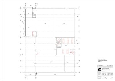
Plantegning

Tømmerkrana 24 855.0 m²

Etasje 2 213.0 m²

Rom Areal Vinduer Dører
Lager øvre del 201 108.0 m² 0 0
Lager 202 41.0 m² 0 0
Lager 203 43.0 m² 0 0
Mesanin 204 72.0 m² 0 0
Lager øvre del 205 0.0 m² 0 0

Etasje 1 642.0 m²

Rom Areal Vinduer Dører
Stue 101 227.0 m² 2 2
Kjøkken 102 18.0 m² 0 1
Bad 103 6.0 m² 0 1
Toalett 104 2.0 m² 0 1
Gang 105 12.0 m² 0 2
Sovev. 1 106 12.0 m² 1 1
Sovev. 2 107 12.0 m² 1 1
Sovev. 3 108 12.0 m² 1 1
Sovev. 4 109 12.0 m² 1 1
Vaskerom 110 4.0 m² 0 1
Teknisk rom 111 3.0 m² 0 1
Lagring 112 15.0 m² 1 1
Spiserom 113 13.0 m² 0 1
WC 114 2.0 m² 0 1
B.K. 115 0.0 m² 0 0
Bilverksted 116 511.0 m² 0 0
Montasje 117 179.0 m² 0 1
Lager 118 347.0 m² 0 1
Produksjon 119 347.0 m² 0 1

Bruksendring 2,622.0 m²

Etasje 1 2,622.0 m²

Rom Areal Vinduer Dører
Lager 001 74.0 m² 0 1
Lager 002 188.0 m² 0 1
Lager 003 925.0 m² 0 1
Lager 004 522.0 m² 0 1
Disponibelt 005 566.0 m² 0 1
Vernestedell 006 254.0 m² 0 1
Kontor 007 0.0 m² 0 1
Morrisje 008 179.0 m² 0 1
Pauseom 009 0.0 m² 0 1
Pauseom 010 0.0 m² 0 1
Gang 011 0.0 m² 0 1
Rengjøring 012 0.0 m² 0 1
Lager 013 0.0 m² 0 1
Garderobe D 014 0.0 m² 0 1
Garderobe H 015 0.0 m² 0 1
Hovc / Dusj 016 0.0 m² 0 1
Dusj 017 0.0 m² 0 1
Kontor/kundesamtale 018 0.0 m² 0 1
Pauserom 019 0.0 m² 0 1

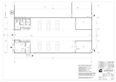
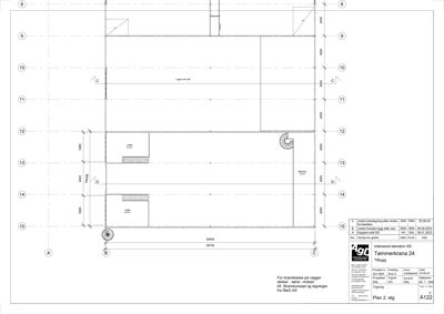
Fasader

Tilbygg

Øst
Materiale
Tre
Taktype
Flatt tak
Vinduer
13
Dører
1
Synlige etasjer
1
Vest
Materiale
Tre
Taktype
Flatt tak
Vinduer
14
Dører
1
Synlige etasjer
1
Sør
Materiale
Tre
Taktype
Flatt tak
Vinduer
6
Dører
1
Synlige etasjer
1

Lagerhall

Nord
Materiale
Betong
Taktype
Flatt tak
Høyde
8.0 m
Vinduer
6
Dører
1
Synlige etasjer
2

Hendelser

31.03.2026 Tømmerkrana 24, ferdigattest for tilbygg til verkstedbygning ferdigattest
23.03.2026 Tømmerkrana 24, Søknad om ferdigattest ferdigattest
11.03.2026 Tømmerkrana 24, innmåling tilbygg
21.11.2025 Tømmerkrana 24, igangsettingstillatelse nr. 2 for tilbygg og verkstedbygning igangsettingstillatelse
15.10.2025 Tømmerkrana 24 - Søknad om igangsettingstillatelse nr. 2 - resterende arbeider igangsettingstillatelse
28.08.2025 Tømmerkrana 24, Kopi: Vi innvilger søknaden om samtykke, med vilkår søknad
13.05.2024 Tømmerkrana 24, igangsettingstillatelse nr. 1 for tilbygg og verkstedbygning igangsettingstillatelse
09.05.2024 Tømmerkrana 24, melding om mottatt søknad søknad
24.04.2024 Tømmerkrana 24, Søknad om igangsettingstillatelse igangsettingstillatelse
10.01.2023 Tømmerkrana 24, rammetillatelse for tilbygg til verkstedbygning rammetillatelse
09.01.2023 Tømmerkrana 24, Tilleggsdokumentasjon - nytt situasjonskart og tegninger
05.11.2022 Tømmerkrana 24, melding om mottatt søknad søknad
04.11.2022 Tømmerkrana 24, Søknad om rammetillatelse for tilbygg rammetillatelse