Extension UnderBehandling Naeringsbygg

Tilbygg med badstue og gjestestue på Vollan Gjestestue, Nordkjosbotn

📍 Torgveien 2 , 9040 NORDKJOSBOTN

Nøkkelinfo

Sakstype
Tilbygg
Bygningstype
Naeringsbygg
Bruksareal
123 m²
Kommune
Balsfjord
Fylke
Troms - Romsa - Tromssa
Gnr / Bnr
29 / 41
Saksnummer
2026/289
Fase
Under behandling

Om byggesaken

Ny to-etasjes tilbygg på ca. 123 m² BRA til Vollan Gjestestue hotell i Nordkjosbotn, bestående av spa-anlegg med badstue, jacuzzi, garderober, WC, pause-/spiserom og tilhørende tekniske rom. Bygget har saltak og trekledning, med fasader mot vest og nord. Tilbygget inkluderer også en terrasse på 26,8 m². Det er én innvendig trapp og løfteinnretninger/heis. Bygget er prosjektert med branntekniske løsninger som automatisk sprinkleranlegg, brannalarmanlegg, brannceller med EI 30-klassifisering, og universell utforming. Grunnforholdene er dokumentert stabile med tilfredsstillende områdestabilitet. Tilbygget er en forlengelse av eksisterende hotellbygg og inngår i en samlet næringsvirksomhet med overnatting og servering.

Produkter og materialer

Vinduer Fasadevindu

🧱 Tre

Antall: 6

Vinduer i fasader vest og nord, brannklassifisert iht. EI 30 i branncellebegrensende vegger

Fasadevindu i trekonstruksjon med brannmotstand

VVS Ventilasjon og klimainstallasjoner

Ventilasjonsanlegg med brannspjeld, branntetting og materialer klasse A2-s1,d0, ventilasjon for spa og badstue

Ventilasjonsanlegg med branntekniske løsninger

Gulv Fliser med varmekabler

🧱 Fliser

Flislagte gulv med varmekabler i badstue og dusjområder

Varme og flislagte gulv i våtrom

VVS Automatisk sprinkleranlegg

Automatisk sprinkleranlegg iht. NS-EN 12845, dekker hele tilbygget

Brannslokkeanlegg for tilbygg

Grunnarbeid Grunnundersøkelser og fundamentering

Grunnundersøkelser dokumentert stabilitet, fundamentering tilpasset sand- og siltgrunn

Grunnarbeid og fundamentering for tilbygget

Dører Brann- og rømningsdører

🧱 Tre med brannklassifisering

Antall: 15

Dører med EI₂ 30-Sa brannmotstand, selvlukkende, med krav til åpningskraft og universell utforming

Brannklassifiserte dører i brannceller og rømningsveier

Tømrer Trekonstruksjoner

🧱 Tre

Trekonstruksjoner for vegger, tak og innvendige skillevegger med brannmotstand

Trekonstruksjoner i tilbygget

VVS Sanitærinstallasjoner

Sanitærinstallasjoner for spa, badstue, WC og dusj, inkl. vannforsyning og avløp tilkoblet offentlig nett med bekreftet kapasitet

Vann og avløpsinstallasjoner for tilbygg

Fasade Trekledning

🧱 Tre

Trekledning med brannklasse K210 D-s2,d0 i branncelle, K210 B-s1,d0 i rømningsvei

Trekledning på fasader med branntekniske krav

Annet Terrasse

🧱 Tre

Antall: 1

Terrasse på 26,8 m² med tredekke og tilhørende rekkverk

Utendørs terrasse tilknyttet badstuen

Rekkverk Terrasserekkverk

🧱 Tre

Antall: 1

Rekkverk på terrasse med tilpasset høyde og sikkerhet

Rekkverk på terrasse i 2. etasje

Løfteinnretninger Heis og løftebord

Antall: 2

Heis og løftebord for universell utforming og tilgjengelighet

Løfteinnretninger i tilbygget

Elektro Brannalarmanlegg

Heldekkende brannalarmanlegg kategori 2 med optiske røykdetektorer, direktevarsling til brannvesenet

Brannalarmanlegg for tidlig varsling

Tak Saltak

🧱 Teglstein/betongtakstein/metallplater

Antall: 1

Saltak med brannmotstand Broof (t2)

Taktekking med brannsikre materialer

Betong Plasstøpte betongkonstruksjoner

🧱 Betong

Plasstøpte betongkonstruksjoner for fundament og bærende elementer

Betongkonstruksjoner i tilbygget

Isolasjon Brannklassifisert isolasjon

Isolasjon med brannklasse A2-s1,d0 i vegger, tak og hulrom

Brannisolasjon i konstruksjoner

Trapper Innvendig trapp

🧱 Tre og betong

Antall: 1

Innvendig trapp mellom etasjer, rømningsvei, beskyttet mot flammepåvirkning

Innvendig trapp i tilbygget

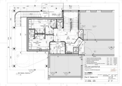
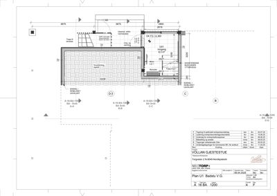
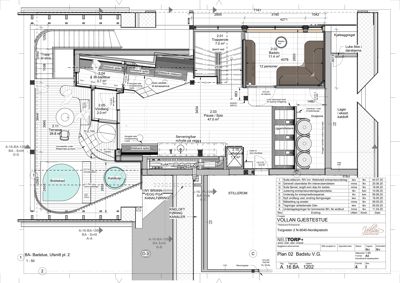
Plantegning

Badstu 466.1 m²

Etasje 0 26.5 m²

Rom Areal Vinduer Dører
Inngang U01 8.3 m² 0 1

Etasje 1 269.0 m²

Rom Areal Vinduer Dører
Gang 1.01 82.7 m² 0 3
HC WC / Dusj 1.02 5.2 m² 0 1
Garderobe herrer 1.03 8.6 m² 0 1
WC 1.04 1.4 m² 0 1
Garderobe damer 1.05 8.5 m² 0 1
WC 1.06 1.3 m² 0 1
BK 1.07 1.3 m² 0 1
Løftø 2.09 0.9 m² 0 1
Løftebord 1.10 1.0 m² 0 0

Etasje 2 170.6 m²

Rom Areal Vinduer Dører
Trapperom 2.01 7.0 m² 0 1
Badstu 2.02 11.4 m² 0 1
Pause / Spis 2.03 47.0 m² 0 1
IR-badstue 2.04 3.7 m² 0 1
Vindfang 2.05 2.0 m² 0 1
Løftebord 2.10 1.0 m² 0 0
Terrasse 2.11 26.8 m² 0 1

Vollan Gjestestue 148.6 m²

Etasje 1 84.0 m²

Rom Areal Vinduer Dører
Gjestestue 101 84.0 m² 0 0

Etasje 0 56.3 m²

Rom Areal Vinduer Dører
Gang 001 56.3 m² 0 0

Etasje -1 8.3 m²

Rom Areal Vinduer Dører
Underetasje U01 8.3 m² 0 0

Fasader

Badstu

Vest
Materiale
Tre
Taktype
Saltak
Vinduer
2
Dører
1
Balkonger
1
Synlige etasjer
2
Nord
Materiale
Tre
Taktype
Saltak
Vinduer
4
Dører
1
Synlige etasjer
2

Hendelser

16.04.2026 Supplering av søknad 29/41
15.04.2026 Vollan gjestestue - Brannprosjektering
30.03.2026 Svar på oppdatert brannkonsept med fravik - 29/41
27.03.2026 Svar - Vollan Gjestestue
27.03.2026 Brannkonsept, Vollan Gjestestue - Nordkjosbotn- Badstue
20.02.2026 Spørsmål til supplering av søknad 29/41
17.02.2026 Supplering av søknad 29/41
13.02.2026 Anmodning om utfyllende informasjon
11.02.2026 Søknad om tillatelse i ett trinn - 29/41