Extension UnderBehandling Naeringsbygg

Ombygging, tilbygg og fasadeendring av Hagstua næringsbygg i Leknes

Nøkkelinfo

Sakstype
Tilbygg
Bygningstype
Naeringsbygg
Bruksareal
60 m²
Kommune
Vestvågøy
Fylke
Nordland - Nordlánnda
Gnr / Bnr
41 / 36
Saksnummer
24/5361
Fase
Under behandling

Om byggesaken

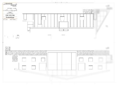
Hagstua næringsbygg i Leknes gjennomgår en omfattende ombygging og tilbygg på totalt 60 m², inkludert en vinterhage/lounge med store glassfasader som vesentlig fasadeendring. Tilbygget omfatter også garasje for to biler med overbygg for gjesteav- og påstigning, samt heis mellom plan 1 og 2. Eksisterende rom ombygges for å etablere fire nye overnattingsrom, og publikumsarealer og eksisterende overnattingsrom oppgraderes. Bygget har en lav profil med skrånende tak og fasader i tre og mur, tilpasset det omkringliggende landskapet og terrenget. Tiltaket inkluderer også bruksendring og modernisering av fasaden, med tilknytning til offentlig vann og privat avløpsanlegg. Prosjektet er planlagt og prosjektert med fokus på arkitektonisk kvalitet og tilpasning til Lofotens natur og klima, og har fått rammetillatelse med vilkår om sammenføyning av tre eiendommer.

Produkter og materialer

Vinduer Store glassfasader og fasadevinduer

🧱 Glass og tre

Store glassfasader i vinterhage og fasadevinduer i tre

Vinduer og glassfasader i tilbygg og fasadeendring

Ventilasjon Ventilasjon og klimainstallasjoner

Prosjektering av ventilasjon og klima

Ventilasjons- og klimainstallasjoner for bygget

Stål Stålkonstruksjoner for tilbygg

🧱 Stål

Prosjektering av konstruksjonssikkerhet for stålkonstruksjoner

Stålkonstruksjoner i tilbygg

Tømrer Trekonstruksjoner og montering

🧱 Tre

Tømrerarbeid og montering av trekonstruksjoner

Innvendige og utvendige trekonstruksjoner

Fasade Glassfasader til vinterhage/lounge

🧱 Glass og tre

Store glassfasader i vinterhage/prismeform, balansert samspill mellom glass og tre

Vesentlig fasadeendring med store glassfasader i vinterhage/lounge på østfasade

Grunnarbeid Veg- og grunnarbeider

Prosjektering og utførelse av veg- og grunnarbeider

Grunnarbeider for tilbygg og garasje

Betong Plasstøpte betongkonstruksjoner

🧱 Betong

Montering av bærende metall- og betongkonstruksjoner

Bærende konstruksjoner for tilbygg og garasje

VVS Sanitærinstallasjoner og varmeinstallasjoner inkl. bergvarme

Sanitærinstallasjoner og varmeinstallasjoner med bergvarme

Oppgradering og nyinstallasjon av sanitær og varme

Dører Ytterdører og entredører

🧱 Tre og glass

Nye ytterdører og entredører i fasader

Dører til tilbygg og eksisterende bygg

Heis Personheis mellom plan 1 og 2

Antall: 1

Heis installert for universell tilgjengelighet

Heis fra plan 1 til 2 for tilgjengelighet

Tak Saltak og flate tak

🧱 Taktekking

Saltak på eksisterende bygg og tilbygg, flate tak på enkelte deler

Taktekking og takarbeid for tilbygg og eksisterende bygg

Elektro Brannalarmanlegg og vanntåkeanlegg

Prosjektering og montering av brannalarmanlegg og vanntåkeanlegg

Brannsikkerhetstiltak i bygget

Tilbygg Garasje med overbygg for gjesteav- og påstigning

🧱 Tre og betong

Antall: 1

Garasje for to biler, overbygg for av- og påstigning, ca 60 m² tilbygg

Ny garasje med tilhørende overbygg for gjester

Gulv Nye overnattingsrom og publikumsarealer

Antall: 4

Oppgradering og ombygging av eksisterende rom for 4 nye overnattingsrom

Innvendig oppgradering og ombygging av rom

Fasader

Enebolig

Nord
Materiale
Tre
Taktype
Flatt tak
Vinduer
4
Dører
1
Balkonger
1
Synlige etasjer
1
Øst
Materiale
Mur
Taktype
Flatt tak
Vinduer
8
Dører
1
Synlige etasjer
2
Vest
Materiale
Tre
Taktype
Saltak
Vinduer
5
Dører
2
Synlige etasjer
2
Sør
Materiale
Tre
Taktype
Saltak
Vinduer
4
Dører
1
Synlige etasjer
1
Nordvest
Materiale
Pusset
Taktype
Saltak
Vinduer
6
Dører
1
Balkonger
1
Synlige etasjer
2
Sørøst
Materiale
Pusset
Taktype
Saltak
Vinduer
8
Dører
1
Balkonger
1
Synlige etasjer
2

Hagskaret Turistsenter

Nordvest
Materiale
Mur
Taktype
Saltak
Vinduer
8
Dører
2
Balkonger
1
Synlige etasjer
2
Sørøst
Materiale
Mur
Taktype
Saltak
Vinduer
14
Dører
0
Balkonger
1
Synlige etasjer
2

Hendelser

22.04.2026 Søknad om igangsettingstillatelse gnr 41 bnr 38
20.03.2026 Byggesak - Klage på vilkår i rammetillatelse - Klager Lofoten Mountain View AS
16.03.2026 Klage på vilkår i rammetillatelse
23.02.2026 Rammetillatelse - Endring av bygg - gnr 41 bnr 36, 37, 38
16.02.2026 Arkitektonisk vurdering av utforming og visuelle kvaliteter - tilbygg og vesentlig fasadeendring Hagstua - gnr 41 bnr 36, 37 og 38
23.01.2026 Kopi - Vi innvilger søknaden om samtykke etter automatisk saksbehandling