ChangeOfUse Igangsettingstillatelse Offentlig

Bruksendring og fasadeendring av vaktmesterbolig i Gjerivegen 1

📍 Gjerivegen 1 , 2022 GJERDRUM

Nøkkelinfo

Sakstype
Bruksendring
Bygningstype
Offentlig
Bruksareal
130 m²
Kommune
Gjerdrum
Fylke
Akershus
Gnr / Bnr
41 / 33
Saksnummer
2025/666
Fase
Igangsettingstillatelse

Om byggesaken

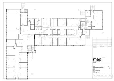
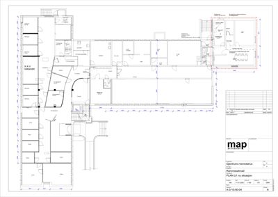
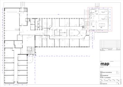
Eksisterende vaktmesterbolig i Gjerivegen 1, tilknyttet Gjerdrum herredshus, gjennomgår bruksendring fra bolig til kontorareal med etablering av fire nye kontorplasser og møterom. Bygget er to etasjer med totalt ca. 130 m² BRA, og fasadeendringene er minimale med utvidelse av noen vindusåpninger og utskifting av inntaksrist. Det installeres nytt ventilasjonsanlegg, brannalarmanlegg og ledesystem, samt branntekniske oppgraderinger i vindfang. Rominndelingen i hovedetasjen beholdes i stor grad, mens kjelleretasjen får endret lager til møterom. Bygget har store vindusflater som gir gode lysforhold, og det legges til rette for trinnfri atkomst til eksisterende kontorarealer i kommunehuset. Universell utforming er delvis ivaretatt i eksisterende bygg, men ikke fullt ut i vaktmesterboligen på grunn av byggets struktur. Prosjektet inkluderer også oppgraderinger av tekniske installasjoner og branntekniske tiltak.

Produkter og materialer

Kjøkken Personalkjøkken

Antall: 1

Personalkjøkken i 1. etasje

Kjøkkenfasilitet for ansatte

Bad Toalett og HC-toalett

Antall: 2

Toalett og HC-toalett i 1. etasje

Sanitærfasiliteter for ansatte og besøkende

Fasade Vindusåpninger og inntaksrist

🧱 Tre og glass

Noen vinduer utvides med ca 140-150 mm, inntaksrist erstatter eksisterende

Fasadeendringer med utvidelse av enkelte vindusåpninger og utskifting av inntaksrist

Vinduer Fasadevindu

🧱 Glass i trekarmer

Antall: 12

Store vindusflater med 11-19% vindusareal av gulvareal, gir gode lysforhold

Fasadevinduer i kontorarealer

Elektro Brannalarmanlegg

Installasjon av brannalarmanlegg og ledesystem

Elektrisk installasjon av brannalarmanlegg

Dører Innvendige dører

Antall: 20

Dører i kontorer, møterom, garderober og tekniske rom

Innvendige dører for romavgrensning og funksjon

Trapper Innvendig trapp

Antall: 1

Eksisterende trapp opprettholdes

Innvendig trapp mellom etasjer

Annet Lydmålinger og akustiske tiltak

Lydmålinger utføres etter møblering, akustiske tiltak iverksettes etter resultat

Akustisk tilpasning av kontorarealer

Gulv Kontor- og møteromsgulv

Standard kontorgulv, ikke spesifisert i detalj

Gulvbelegg i kontor- og møteromsarealer

Ventilasjon Ventilasjonskanaler

Kanaler med diameter Ø125-250 mm, hovedføringer langs vegg

Ventilasjonskanaler for nytt ventilasjonsanlegg

Sanitærinstallasjoner Brannslangeskap

Prosjektering og utførelse av brannslangeskap

Installasjon av brannslangeskap i bygget

Mur Betongarbeid utsparinger

🧱 Betong

Utsparinger i betongkonstruksjoner for ventilasjonskanaler

Betongarbeider for utsparinger til tekniske installasjoner

Tømrer Innvendige vegger og utsparinger

🧱 Trekonstruksjoner

Riving av vegg mellom vaskerom og tørkerom i kjeller, montering av trekonstruksjoner

Innvendige ombygginger med riving og montering av trekonstruksjoner

Brannvern Brannalarmanlegg og ledesystem

Videreføring og oppgradering av brannalarmanlegg og ledesystem iht nytt brannkonsept

Oppgradering av brannalarmanlegg og ledesystem i bygget

Ventilasjon Nytt ventilasjonsanlegg

Hovedføringer ventilasjon legges mot vegg, kanaldimensjoner Ø125-250 mm

Nytt ventilasjonsanlegg installeres med kanaler og tekniske rom i kjeller

Fasader

Gjerdrums herredshus

Øst
Materiale
Tre
Taktype
Flatt tak
Høyde
10.0 m
Vinduer
18
Dører
1
Synlige etasjer
3
Vest
Materiale
Tre
Taktype
Flatt tak
Høyde
10.0 m
Vinduer
18
Dører
1
Balkonger
1
Synlige etasjer
3
Sør
Materiale
Tre
Taktype
Flatt tak
Høyde
10.0 m
Vinduer
12
Dører
1
Balkonger
1
Synlige etasjer
3
Nord
Materiale
Tre
Taktype
Flatt tak
Høyde
10.0 m
Vinduer
0
Dører
0
Synlige etasjer
3

Hendelser

17.04.2026 Gnr 41/33 - Søknad om igangsettingstillatelse
22.09.2025 Rammetillatelse - Gnr 41 bnr 33 - Gjerivegen 1 - Bruksendring og fasadeendring for eksisterende vaktmesterbolig
10.09.2025 Gnr 41/33 - Gjerivegen 1 - Supplering av søknad
18.06.2025 Gnr 41/33 - Innvilget søknad om samtykke
10.06.2025 Tilbakemelding om mangler - Gnr 41/33 - Gjerivegen 1 - Bruksendring og fasadeendring for eksisterende vaktmesterbolig
21.05.2025 Gnr 41/33 - Vi trenger flere opplysninger for å behandle søknaden - varsel om avslag på søknad
24.04.2025 Gnr 41/33 - Søknad om rammetillatelse samt dispensasjon