ChangeOfUse UnderBehandling Offentlig

Bruksendring og fasadeendring av Lychegården i Nedre Storgate 2, Drammen

📍 Nedre Storgate 2 , 3015 DRAMMEN

Nøkkelinfo

Sakstype
Bruksendring
Bygningstype
Offentlig
Bruksareal
9,240 m²
Kommune
Drammen
Fylke
Buskerud
Gnr / Bnr
114 / 662
Saksnummer
25/42041
Fase
Under behandling

Om byggesaken

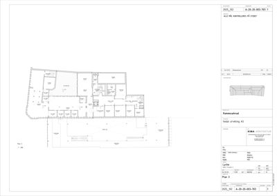
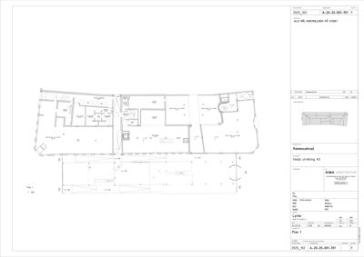
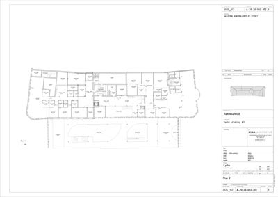
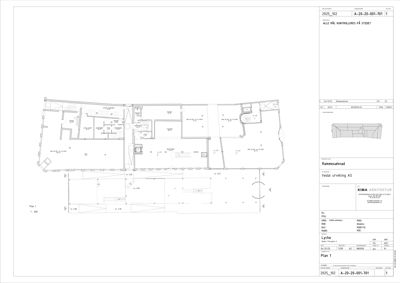
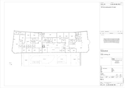
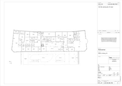
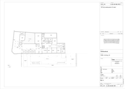
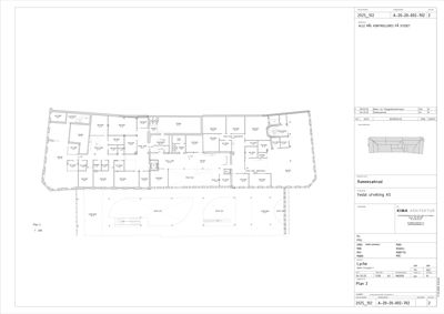
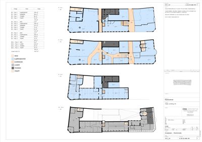
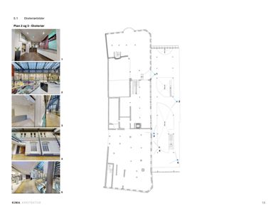
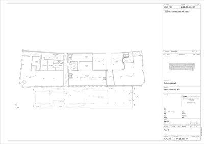
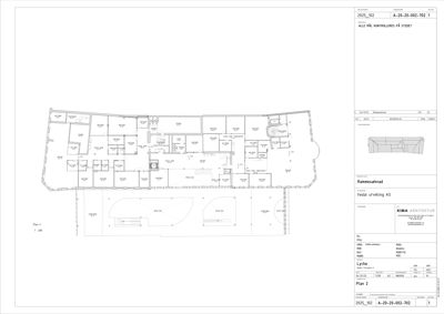
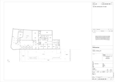
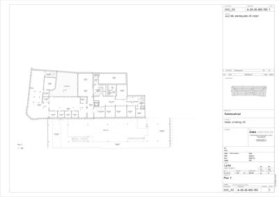
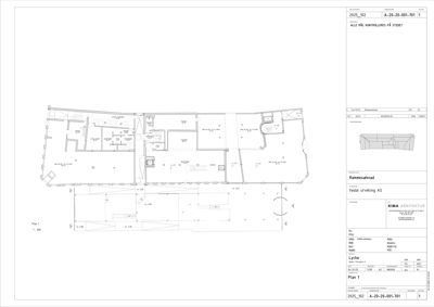
Lychegården består av fire sammenbygde bygninger fra perioden 1868 til 1913, med høy kulturminneverdi, beliggende i Nedre Storgate 2 i Drammen sentrum. Prosjektet omfatter bruksendring av eksisterende kjøpesenterarealer til kontor, bevertning og forretning, med unntak av første etasje i Lyche sør og nord som beholdes i dagens bruk. Det planlegges fasadeendringer med tilbakeføring til historisk utseende, innsetting av takvinduer i samtlige takflater for økt dagslys, etablering av takopplett mot bakgård, reetablering av innganger fra gate, samt inngrep i bærende konstruksjoner for etablering av trapper, heis og utsparinger i etasjedekker. Bygningene har saltak og flate tak, med gesimshøyder opp til ca. 19.3 meter. Prosjektet inkluderer omfattende tekniske oppgraderinger, brannkonsept, og tiltak for flom- og kvikkleiresikring i henhold til gjeldende krav. Totalt areal er ca. 9240 m² kontorareal, med flere etasjer og mange kontor- og møterom. Prosjektet er under behandling med rammesøknad og dispensasjoner fra kommuneplanens byggegrenser og plankrav.

Produkter og materialer

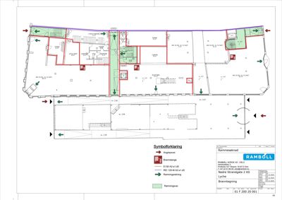
Elektro Brannalarmanlegg

Heldekkende brannalarmanlegg med optiske røykdetektorer, alarmoverføring til nødalarmsentral

Brannalarmanlegg for tidlig varsling

Tak Saltak med skiferstein

🧱 Skiferstein

Omlegging av tak på Lyche sør til skiferstein, vurdering av takstolers bæreevne og behov for forsterkning

Taktekking med skiferstein, mulig utskifting og forsterkning av takstoler

Fasade Vinduer i fasade

Antall: 86

Vinduer i fasade mot gate og bakgård, plassert i tråd med historisk rytme og fasadens uttrykk

Fasadevinduer i murfasade

Ventilasjon Røykventilasjon

Røykventilasjon i glassgård opprettholdes, med røykluker i tak

Røykventilasjonssystem

Grunnarbeid Flomsikring

Flomsikring til kote +2,2 moh med fysiske hindringer

Flomsikring av bygget mot Drammenselva

Gulv Gulv i rømningsvei

Gulv i rømningsvei med brannklasse Dfl-s1

Brannsikre gulv i rømningsveier

Trapper Innvendige trapper

Antall: 3

Etablering av nye trapper i bærende konstruksjon, inkludert trapperom

Nye trapper for sirkulasjon i bygget

Dører Rømningsdører

Dører i rømningsvei med fri bredde minimum 0,86 m, slagretning utad, maks åpningskraft 67 N, selvlukkende med dørautomatikk

Dører til rømningsvei med brann- og røykbeskyttelse

VVS Ventilasjon

Nye inntak og avkast for økte luftmengder, kjølemaskin på tak, tekniske takoppløft

Oppgradering av ventilasjonsanlegg

Brannvern Automatisk sprinkleranlegg

Automatisk sprinkleranlegg i henhold til NS-EN 12845:2015

Automatisk slokkeanlegg for brannsikkerhet

Brannvern Brannslanger og håndslokkeapparater

Brannslanger i alle plan, håndslokkeapparater med minimum 6 kg ABC-pulver eller 9 liter skum/vann

Manuelt slokkeutstyr for tidlig innsats

Heis Løfteplattformheis

Antall: 1

Ny heis med oppløft på tak, inkludert heissjakt og tekniske installasjoner

Heisinstallasjon for universell utforming

Gulv Kontorgulv

Kontorarealer med eikeparkett eller tilsvarende, tilpasset kontorbruk

Gulvbelegg i kontorarealer

Grunnarbeid Fundamentering på spissbærende peler

🧱 Betong/stål

Fundamentering på spissbærende peler til berg for å unngå forverring av kvikkleirestabilitet

Pelefundamentering for nybygg og ombygging

Fasade Murfasade

🧱 Mur

Tilbakeføring av fasader mot gate og glassbygget, i tråd med historisk dokumentasjon, inkludert vindusplassering og materialbruk

Fasadeendringer og tilbakeføring av historiske fasader

VVS Overvannshåndtering

Eksisterende overvannssystem opprettholdes, kapasitet vurdert som tilstrekkelig, flomsikring til kote +2,2

Overvannshåndtering og flomsikring

Vinduer Takvindu

Antall: 14

Takvinduer plassert i samtlige takflater, farge lik taktekkingen, plassert i tråd med fasadens rytme og takkonstruksjon, begrenset til under 1/3 av takflaten

Nye takvinduer for økt dagslys i loftsetasjer

Fasader

Varemagasinet

Sør
Materiale
Mur
Taktype
Saltak
Høyde
18.3 m
Mønehøyde
19.3 m
Vinduer
11
Dører
2
Balkonger
1
Synlige etasjer
3
Nord
Materiale
Mur
Taktype
Flatt tak
Høyde
15.7 m
Mønehøyde
15.7 m
Vinduer
6
Dører
1
Balkonger
1
Synlige etasjer
2
Øst
Materiale
Mur
Taktype
Saltak
Høyde
19.3 m
Mønehøyde
19.3 m
Vinduer
24
Dører
1
Synlige etasjer
3
Vest
Materiale
Mur
Taktype
Flatt tak
Høyde
15.8 m
Mønehøyde
15.8 m
Vinduer
2
Dører
0
Balkonger
1
Synlige etasjer
2
Midt
Materiale
Mur
Taktype
Saltak
Høyde
13.0 m
Mønehøyde
15.9 m
Vinduer
12
Dører
1
Synlige etasjer
3

Magasin

Nord
Materiale
Silikat
Taktype
Saltak
Vinduer
8
Dører
1
Synlige etasjer
2

Lyche Magasinet

Nord
Materiale
Silikat
Taktype
Saltak
Vinduer
8
Dører
1
Synlige etasjer
2

Lycche Magasinet

Nord
Materiale
Betong
Taktype
Flatt tak
Vinduer
10
Dører
2
Balkonger
1
Synlige etasjer
2

Lyche Sør

Sør
Materiale
Mur
Taktype
Saltak
Vinduer
12
Dører
4
Synlige etasjer
3

Lyche Midt

Sør
Materiale
Mur
Taktype
Saltak
Vinduer
16
Dører
4
Synlige etasjer
3

Lyche Nord

Sør
Materiale
Mur
Taktype
Saltak
Vinduer
10
Dører
2
Synlige etasjer
2

Hendelser

15.04.2026 Nedre Storgate 2 Supplering av søknad 114/662
15.04.2026 Nedre Storgate 2 Supplering av søknad 114/662
24.03.2026 Nedre storgate 2, BYGG-25/02106
18.03.2026 Nedre Storgate 2 Supplering av søknad 114/662
06.03.2026 BYGG-25/02106-8 - Lyche Drammen - Søknad om fristutsettelse og innvilget frist
20.02.2026 Nedre Storgate 2, Lyche, vi trenger flere opplysninger for å behandle søknaden din
16.01.2026 Nedre Storgate 2 - Lychegården - Bruksendring - Fylkeskommunens uttalelse
15.01.2026 114/662, Nedre Storgate 2, Lyche - Uttalelse til søknad om dispensasjon fra kommuneplan for flere tiltak
18.12.2025 Nedre Storgate 2, Lyche, anmodning om uttalelse fra Statsforvalteren i Østfold, Buskerud, Oslo og Akershus
18.12.2025 Nedre Storgate 2, Lyche, anmodning om uttalelse fra Buskerud fylkeskommune
18.12.2025 Nedre Storgate 2, anmodning om kulturminnefaglig uttalelse fra Buskerud fylkeskommune
09.12.2025 Nedre Storgate 2 Supplering av søknad 114/662
08.12.2025 Nedre Storgate 2 Søknad om rammetillatelse 114/662