ChangeOfUse Ferdigattest Offentlig

Bruksendring og tekniske installasjoner i Fredrikstad rådhus, Nygaardsgata 16

๐Ÿ“ Nygaardsgata 16 , 1606 FREDRIKSTAD

Nรธkkelinfo

Sakstype
Bruksendring
Bygningstype
Offentlig
Bruksareal
10 mยฒ
Kommune
Fredrikstad
Fylke
Østfold
Gnr / Bnr
300 / 868
Saksnummer
2026/7023
Fase
Ferdigattest

Om byggesaken

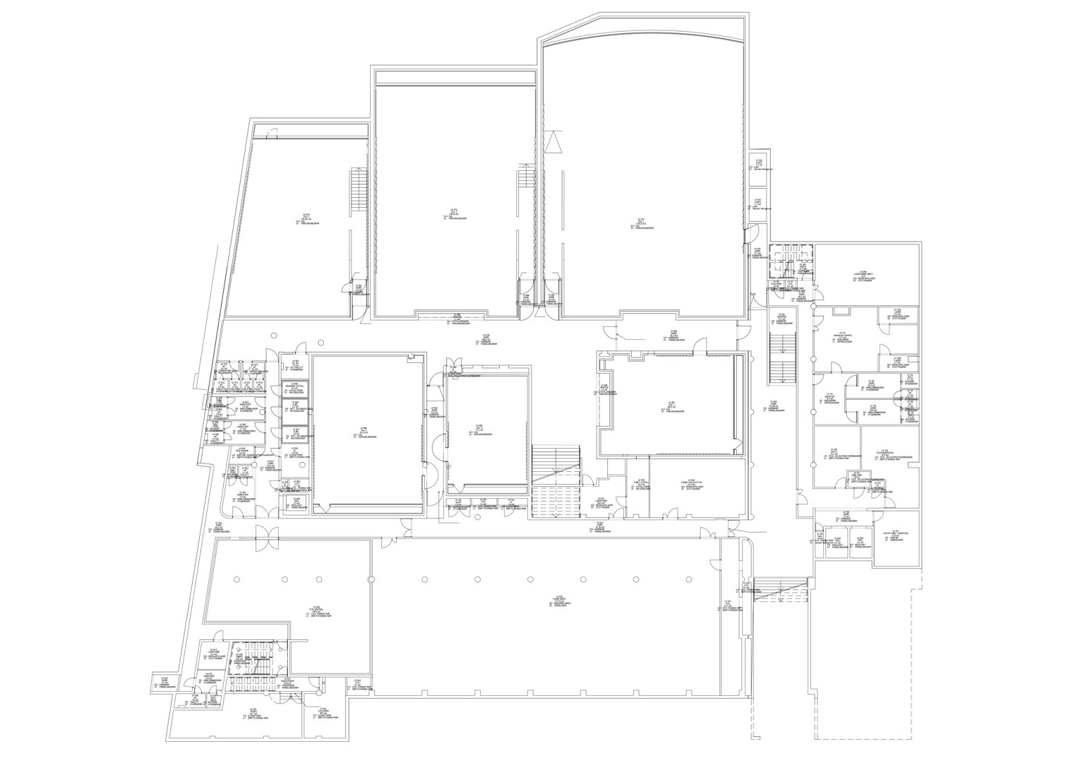
Bruksendring av rom S-134 i underetasjen (U2) i Fredrikstad rådhus fra lagerrom til teknisk rom på 10,3 m². Tiltaket inkluderer etablering av et reserveaggregat, dieseltank og øvrige permanente tekniske installasjoner i rommet. Arbeidene innebærer innvendige ombygginger som krever hulltaking i eksisterende vegger. Oppgradering av tilstøtende serverrom i U1 inngår som bakgrunn, men uten søknadspliktige bygningsmessige endringer. Tiltaket er innvendig og påvirker ikke fasader eller utvendige forhold. Branntekniske forhold og tekniske installasjoner er prosjektert og dokumentert i henhold til gjeldende regelverk.

Produkter og materialer

VVS Tekniske installasjoner

Etablering av permanente tekniske installasjoner i rom S-134

Tekniske installasjoner knyttet til reserveaggregat og drift

Ventilasjon Ventilasjonsanlegg

Ventilasjonsarbeid utført av BRAVIDA NORGE AS

Ventilasjonsarbeid i teknisk rom og tilstøtende områder

Bygg og tømrer Innvendige ombygginger

Innvendige ombygginger i rom S-134 for teknisk bruk

Ombygging av lagerrom til teknisk rom med nødvendige bygningsarbeider

Mur Hulltaking i eksisterende vegger

Hull i eksisterende vegger for tekniske installasjoner

Hulltaking i vegger for føring av tekniske installasjoner

Teknisk Reserveaggregat

Antall: 1

Reserveaggregat installert i teknisk rom S-134 i underetasje U2

Etablering av reservekraftaggregat for serverrommet

Teknisk Dieseltank

Antall: 1

Dieseltank plassert i teknisk rom S-134 for reserveaggregat

Plassering av dieseltank i teknisk rom for reservekraft

Hendelser

15.04.2026 Ferdigattest - Bruksendring av rom og etablering av tekniske installasjoner i rom S-134 (i U2) i Fredrikstad rådhus - Eiendom 300/868
14.04.2026 Søknad om ferdigattest - Nygaardsgata 16, Bruksendring av rom og etablering av tekniske installasjoner i rom S-134 (i U2) i Fredrikstad rådhus - Eiendom 300/868
17.03.2026 Tillatelse - Bruksendring av rom og etablering av tekniske installasjoner i rom S-134 (i U2) i Fredrikstad rådhus - Eiendom 300/868
03.03.2026 Ett-trinns søknad - Nygaardsgata 16 - Bruksendring av rom og etablering av tekniske installasjoner i rom S-134 (i U2) i Fredrikstad rådhus - Eiendom 300/868 - Bruksendring andre bygg, Bygningstekniske installasjoner
03.03.2026 Bekreftelse på mottatt søknad - Ett-trinns søknad - Bruksendring andre bygg, Bygningstekniske installasjoner - Nygaardsgata 16 - Bruksendring av rom og etablering av tekniske installasjoner i rom S-134 (i U2) i Fredrikstad rådhus