ChangeOfUse Avslatt Offentlig

Ombygging og bruksendring ved Steinen Omsorgssenter, Steinavegen 40A

📍 Steinavegen 40A , 6800 FØRDE

Nøkkelinfo

Sakstype
Bruksendring
Bygningstype
Offentlig
Bruksareal
223 m²
Kommune
Sunnfjord
Fylke
Vestland
Gnr / Bnr
62 / 99
Saksnummer
2023/1191
Fase
Avslått

Om byggesaken

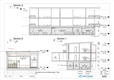
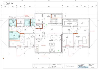
Ombygging og bruksendring av underetasjen i Steinen Omsorgssenter fra bod og garasje til personalbase med kontorer, oppholdsrom, garderober og toaletter. Det etableres 10 nye boder under eksisterende takoverbygg med samlet bruksareal på 50 m². Fasaden i underetasjen får nytt uttrykk med innsetting av vinduer og dør. Tiltaket inkluderer også tekniske endringer som ventilasjon og vannbåren gulvvarme i dusj og garderober. Området er regulert til omsorgsbustader og personalbase, og tiltaket er i samsvar med gjeldende reguleringsplan med dispensasjon for plassering av boder utenfor byggegrense. Totalt bruksareal for ombyggingen er ca. 223 m².

Produkter og materialer

Sykkelparkering Sykkelstativ og parkering

Etablering av sykkelparkering i henhold til parkeringsnorm

Sykkelparkering som vilkår i tillatelsen

Støytiltak Støyisolering og tiltak

Støytiltak i henhold til ny bruk og virksomhet

Støyisolering som vilkår i tillatelsen

Dører Ytterdør

🧱 tre/aluminium

Antall: 2

Ny døråpning i underetasje med dør som erstatter tidligere dør, iht. fasadetegninger

Nye ytterdører i underetasje for personalbase

Fasade Ombygging fasade underetasje

🧱 tre, betong

Nytt uttrykk med innsetting av vinduer og dør, samt etablering av boder under eksisterende betongdekke

Fasadeendring i underetasje med nye vinduer og dører

Betong Eksisterende betongdekke

🧱 betong

Bruk av eksisterende overbygd betongdekke for nye boder under terrengnivå

Bruk av eksisterende betongdekke for bodplassering

Grunnarbeid Terrengarbeid for bodplassering

Etablering av 10 nye boder under eksisterende overbygd betongdekke utenfor regulert byggegrense

Grunnarbeid for nye boder under takoverbygg

Rekkverk Sikkerhetsrekkverk ved trapper og uteområder

Rekkverk iht. forskriftskrav ved trapper og uteområder

Sikkerhetsrekkverk i ombygde områder

Gulv Fliser og gulvbelegg

Gulvbelegg og fliser i våtrom og oppholdsrom

Nye gulvflater i ombygde arealer

Heis Eksisterende heis

Antall: 1

Heis i bygget, berørt av ombygging

Heis i bygg som inngår i ombyggingsprosjektet

Ventilasjon Ventilasjonsanlegg

Endringer i ventilasjonsanlegg som følge av ombygging

Oppgradering og tilpasning av ventilasjon for ny bruk

Tømrer Innvendige vegger og nye vegger

🧱 gips, tre

Nye vegger for kontorer, garderober og boder

Innvendige bygningsmessige arbeider for ombygging

Sanitær Vegghengt WC og dusj

Vegghengt WC og dusj med fall til sluk i garderober og toaletter

Nye sanitærinstallasjoner i personalbase

Maling Innvendig og utvendig maling

Maling av nye vegger og fasadeendringer

Overflatebehandling av nye og ombygde flater

Vinduer Fasadevindu

🧱 tre/aluminium

Antall: 10

Nye vinduer i underetasje, inkludert vinduer med åpningfelt oppe, dimensjoner ca. 134x101 cm og 12x12 cm, iht. tegninger

Nye fasadevinduer i underetasje for personalbase

VVS Vannbåren gulvvarme

Vannbåren gulvvarme i dusj og garderober

Installasjon av vannbåren gulvvarme i våtrom

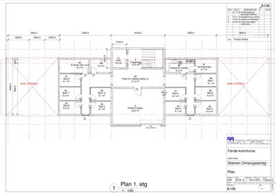
Plantegning

Enebolig 903.0 m²

Etasje 1 282.6 m²

Rom Areal Vinduer Dører
El-tavler-tekn.rom 80 4.4 m² 0 1
Gard. 81 7.8 m² 0 1
Arb.rom 4 pl. 84 23.7 m² 0 1
Vaskerom sentral 86 8.9 m² 0 1
Varmepumpe/vent. 87 6.4 m² 0 1
Medisinrom 88 5.9 m² 0 1
hc wc 90 4.4 m² 0 1
Vent. 94 2.2 m² 0 1
Gang 95 18.3 m² 0 2
Gang 96 9.0 m² 0 2
Kontor, leiarar 97 17.4 m² 0 1
Gang 100 13.6 m² 0 1
WC 101 2.2 m² 0 1
Dusj 102 2.6 m² 0 1
Kontor 103 12.2 m² 0 1
Stue 104 38.0 m² 3 1
Kjøkken 105 3.8 m² 1 1
Spisestue 106 2.4 m² 1 1
Gang 107 12.1 m² 0 1
Heis 108 5.0 m² 0 1
Bod 2 109 3.9 m² 0 1
Boligrom BRA 220.0 m² 0 0
Driftsrom/lager 6 42.0 m² 0 1
HM 7 6.3 m² 0 2
El-tavler-tekn.rom 8 9.3 m² 0 1
Trapp/heis 9 15.4 m² 0 1
Heis 10 5.9 m² 0 1
Bod 8 82 6.4 m² 0 1
Bod 9 83 6.1 m² 0 1
Bod 4 85 6.1 m² 0 1
Bod 5 91 6.1 m² 0 1
Bod 3 92 6.4 m² 0 1
Bod 2 89 6.4 m² 0 1

Etasje 2 158.4 m²

Rom Areal Vinduer Dører
Heis 23 5.9 m² 0 1
Trapp 24 15.1 m² 0 1
V.F. 25 9.3 m² 0 1
Bad 26 6.0 m² 0 1
Stue/kjøkken 29 32.2 m² 1 1
Stue/kjøkken 71 32.3 m² 1 1
V.F. 72 8.0 m² 0 1
Bad 73 5.9 m² 0 1
Bod 74 2.9 m² 0 1
V.F. 76 8.0 m² 0 1
Stue/kjøkken 79 32.1 m² 1 1
Bad 12 5.9 m² 0 1
Bod 13 2.9 m² 0 1
Stue/kjøkken 14 32.1 m² 1 1
Bad 19 5.9 m² 0 1
Bod 20 2.9 m² 0 1
Stue/kjøkken 21 32.3 m² 1 1
Bod B1 5.0 m² 0 0
Bod B2 5.0 m² 0 0
Bod B3 5.0 m² 0 0
Bod B4 5.0 m² 0 0
Bod B5 5.0 m² 0 0
Bod B6 5.0 m² 0 0
Bod B7 5.0 m² 0 0
Bod B8 5.0 m² 0 0
Bod B9 5.0 m² 0 0
Bod B10 5.0 m² 0 0
Boligrom BRA 349.0 m² 0 0
Boligrom Ute BRA UTE 113.0 m² 0 0
Vinterhage vinterhage 8.0 m² 0 0

Etasje 3 462.0 m²

Rom Areal Vinduer Dører
Boligrom BRA 349.0 m² 0 0
Vinterhage vinterhage 8.0 m² 0 0
Vinterhage vinterhage 9.0 m² 0 0
Vinterhage vinterhage 8.0 m² 0 0
Vinterhage vinterhage 9.0 m² 0 0

Fasader

Enebolig

Syd
Materiale
Tre
Taktype
Flatt tak
Høyde
6.5 m
Vinduer
14
Dører
2
Balkonger
3
Synlige etasjer
2
Vest
Materiale
Tre
Taktype
Flatt tak
Høyde
6.5 m
Vinduer
2
Dører
1
Balkonger
1
Synlige etasjer
2
Øst
Materiale
Tre
Taktype
Flatt tak
Høyde
6.5 m
Vinduer
2
Dører
1
Balkonger
1
Synlige etasjer
2

Hendelser

20.04.2026 Melding av utgått rammeløyve for bruksendring gbnr. 62/99
24.03.2023 Vedtak om rammeløyve til bruksendring på gbnr. 62/99
21.03.2023 Steinavegen 40A Supplering av søknad 62/99
02.03.2023 Tilbakemelding på søknad om bruksendring gbnr. 62/99
22.02.2023 Supplering av søknad gbnr. 62/99 - Steinavegen 40A
20.02.2023 Tilbakemelding på søknad om bruksendring gbnr. 62/99
09.02.2023 Søknad om rammetillatelse gbnr. 62/99 - bu- og servicesenter