ChangeOfUse UnderBehandling Offentlig

Bruksendring til personalrom i Mjelkesletta 12, Geiranger

Nøkkelinfo

Sakstype
Bruksendring
Bygningstype
Offentlig
Bruksareal
12 m²
Boenheter
1
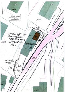
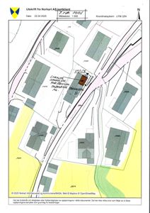
Kommune
Stranda
Fylke
Møre og Romsdal
Saksnummer
2026/304
Fase
Under behandling

Om byggesaken

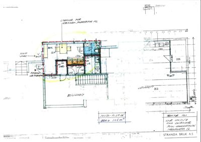
Bruksendring og ombygging av 11,5 m² i sokkeletasje av en eksisterende bolig i Mjelkesletta 12 til personalrom for parkeringsbetjenter. Arealet tilpasses for oppmøtelokale, pause- og toalettfasiliteter med diskré adkomst. Bygningen er en to-etasjes trebygning med saltak og pipe, med totalt 116 m² boareal. Endringen innebærer tilpasning av rom i underetasjen uten nybygg eller riving, og lokalene skal brukes sporadisk 1-2 ganger daglig.

Produkter og materialer

Ventilasjon Ventilasjon for personalrom

Ventilasjon tilpasset bruk som oppmøtelokale og pauseplass

Ventilasjonssystem tilpasset ny bruk i sokkeletasje

Elektro Belysning og strømtilførsel

Elektrisk installasjon tilpasset ny bruk som personalrom

Oppgradering eller tilpasning av elektrisk anlegg for personalrom

Bad Toalett og vaskerom

Tilpasning av toalett og vaskerom for personalrombruk

Sanitærfasiliteter tilpasses for personalrom i sokkeletasje

Vinduer Fasadevindu i tre

🧱 Tre

Antall: 20

Vinduer i tre på alle fasader med saltak, totalt 20 vinduer

Vinduer i eksisterende bolig, ingen nye vinduer nevnt

Tømrer Innvendig ombygging

Ombygging av 11,5 m² sokkeletasje til personalrom med tilpasning av vegger og dører

Innvendige konstruksjoner tilpasses ny bruk som personalrom, inkludert vegger og dører

Maling Innvendig maling

Overflatebehandling av vegger og tak i ombygget areal

Innvendig maling og overflatebehandling i personalrom

Dører Innvendige dører

Antall: 4

Dører til rom som gang, stue, soverom, kjøkken, bad og vaskerom i sokkeletasje

Innvendige dører i ombygget del av sokkeletasje

Plantegning

Leilighet 116.0 m²

Etasje 0 116.0 m²

Rom Areal Vinduer Dører
Gang 203 0.0 m² 0 2
Stue 204 0.0 m² 1 1
Sove 206 0.0 m² 1 1
Kjøkken 201 0.0 m² 0 1
Bad 202 0.0 m² 0 1
Vaskerom 205 0.0 m² 0 1

Fasader

Enebolig

Sør
Materiale
Tre
Taktype
Saltak
Vinduer
10
Dører
1
Synlige etasjer
2
Vest
Materiale
Tre
Taktype
Saltak
Vinduer
4
Dører
1
Synlige etasjer
2
Øst
Materiale
Tre
Taktype
Saltak
Vinduer
3
Dører
1
Synlige etasjer
2
Nord
Materiale
Tre
Taktype
Saltak
Vinduer
3
Dører
1
Synlige etasjer
2

Hendelser

14.04.2026 Stranda Parkering AS - Supplering til søknad oppmøtestad for parkeringsbetentar i Geiranger - Samtykke frå arbeidstilsynet
10.04.2026 Stranda Parkering AS - Søknad om dispensasjon frå bustadformål i reguleringsplan for bruksendring av delar av bustadhus til personalrom for parkeringsbetjentar
10.04.2026 Arbeidstilsynet - Vi innvilger søknaden om samtykke
05.03.2026 Stranda Parkering AS - Søknad om løyve til tiltak - Bruksendring
06.02.2026 Stranda Parkering AS - Søknad om løyve til tiltak - Bruksendring - Nabovarsel