NewConstruction Ferdigattest Offentlig

Riving og nytt menighetsbygg på Austvollen 8, Tonstad

📍 Austvollen 8 , 4440 TONSTAD

Nøkkelinfo

Sakstype
Nybygg
Bygningstype
Offentlig
Bruksareal
193 m²
Kommune
Sirdal
Fylke
Agder
Gnr / Bnr
52 / 170
Saksnummer
2024/1260
Fase
Ferdigattest

Om byggesaken

Ny menighetsbygning på 193 m² oppføres på tomt Austvollen 8, Tonstad, etter riving av eksisterende bygg på 176 m². Bygget er plassert i flomutsatt område med gulvnivå på kote 58,25 for å sikre mot 200-års flom med klimapåslag. Bygget har en mønehøyde innenfor reguleringsplanens tillatte 12 meter, og er kledd med royalimpregnert grå trepanel og lysgrå fasadeplater. Taket er valmet og tekket med takstein. Bygget inneholder hovedsal, kjøkken, flere boder, toalett og tekniske rom, fordelt på én etasje. Ventilasjonsanlegg med kapasitet på ca. 2000 m³/h er planlagt på nordfasaden. Bygget har to trapper og flere dører, og er prosjektert med hensyn til romakustikk, inneklima og universell utforming. Det er gjennomført grundig avfallshåndtering og miljøsanering i forbindelse med rivingen.

Produkter og materialer

Grunnarbeid Grunnarbeider og utvendig VA

Grunnarbeider inkludert utvendig vann- og avløpsanlegg

Grunnarbeid for fundamentering og VA-anlegg

Betong Betonggulv og fundamenter

🧱 Armert betong, 5 cm betonggulv over flomgrense

Betonggulv legges på kote 58,3 med XPS-isolasjon under for å motvirke fukt og oppdrift

Betonggulv og fundamenter med isolasjon for flomsikring

Vinduer Fasadevindu

🧱 Tre, 3 vinduer på østfasade, 4 på nordfasade, 1 på sørfasade

Antall: 8

Vinduer begrenset til 1. etasje, planlagt 3 vinduer på nordfasade, 4 på østfasade, 1 på sørfasade

Fasadevindu i tre, tilpasset romakustikk og nabohensyn

Dører Ytterdører

🧱 Tre

Antall: 6

Dører fordelt på alle fasader, totalt 6 dører

Ytterdører i tre til ulike rom og innganger

Isolasjon XPS gulvisolasjon

🧱 XPS (ekstrudert polystyren)

20 cm tykkelse, ikke fuktsugende, god isolasjonsevne

Isolasjon under betonggulv for å hindre fukt og oppdrift ved flom

Avfallshåndtering Miljøsanering og avfallssortering

Sortering av trevirke, metall, betong, farlig avfall som asbest, maling, isolasjon, EE-avfall mv. Totalt ca. 40 tonn avfall håndtert

Miljøsanering og kildesortering i forbindelse med riving og nybygg

Tak Valmtak med takstein

🧱 Takstein

Valmtak med takstein, vindskier med beslag og sort takrenner

Taktekking med takstein på valmtak, vindskier med beslag og takrenner i sort

VVS Ventilasjonsanlegg

Antall: 1

Ventilasjonsaggregat på ca. 2000 m³/h, plassert på nordfasade med tilhørende ventilasjonsrom og kanalføringer

Ventilasjonsanlegg for inneklima og romakustikk, i bruk 2-4 timer per uke under arrangementer

Elektro El-installasjon

El-installasjon utføres av Norsk Solkraft AS, underlagt varslingssystem for elektro

Elektriske installasjoner i bygget

Fasade Kledning

🧱 Royalimpregnert trepanel, grå farge fra Marna Bruk, og lysgrå fasadeplater

Royalimpregnert kledning, grå, og fasadeplater lysgrå

Yttervegger kledd med royalimpregnert trepanel og fasadeplater

Trapper Innvendige trapper

Antall: 2

To trapper i bygget

Maling Utvendig maling

Fasadeplater og kledning i gråtoner, vindskier og takrenner i sort

Maling og behandling av utvendige treflater og beslag

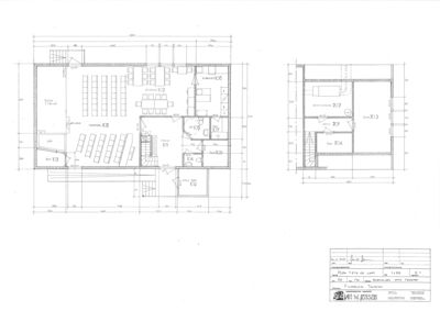
Plantegning

Filadelfia Tonstad 0.0 m²

Etasje 1 0.0 m²

Rom Areal Vinduer Dører
Forje 101 0.0 m² 0 2
Hovedsal 102 0.0 m² 0 1
Bod 103 0.0 m² 0 1
Toalett 104 0.0 m² 0 1
HK 105 0.0 m² 0 1
Kjøkken 106 0.0 m² 0 1
Bod 107 0.0 m² 0 1
Bod 108 0.0 m² 0 1
Kald Bod 109 0.0 m² 0 1
Gang 201 0.0 m² 0 2
Ventilasjon 202 0.0 m² 0 1
Disp 203 0.0 m² 0 1
Bod 204 0.0 m² 0 1

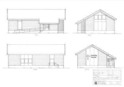
Fasader

Filadelfia Tonstad

Sør
Materiale
Tre
Taktype
Flatt tak
Vinduer
1
Dører
1
Synlige etasjer
1
Øst
Materiale
Tre
Taktype
Valmtak
Vinduer
3
Dører
1
Synlige etasjer
1
Nord
Materiale
Tre
Taktype
Flatt tak
Vinduer
4
Dører
1
Synlige etasjer
1
Vest
Materiale
Tre
Taktype
Valmtak
Vinduer
0
Dører
1
Synlige etasjer
1

Hendelser

14.04.2026 Sosi - Filadelfia Tonstad. 24/1260
13.04.2026 Vedr. ferdigattest Filadelfia
07.04.2026 Filadelfia Tonstad - 24/1260 - 20
07.05.2025 52/170. Pinsemenigheten Filadelfia Tonstad. Igangsettingstillatelse resterende arbeider. .
07.05.2025 Søknad om igangsettelse
27.04.2025 52/170. Igangsettingstillatelse grunnarbeider
10.04.2025 Søknad om igangsetting for del av bygget
19.03.2025 SV: Saksnr. 24/530
19.03.2025 SV: Saksnr. 24/530
19.03.2025 Saksnr. 24/530
19.03.2025 SV: Gnr 52 Bnr 170. Saksnr 24/530
19.03.2025 Gnr 52 Bnr 170. Saksnr 24/530
19.03.2025 SV: Gnr 52 Bnr 170. Saksnr 24/530
19.03.2025 SV: Saksnr. 24/530
19.03.2025 52/170. Pinsemenigheten Filadelfia Tonstad. Korrigert vedtak: Riving og oppføring av nytt bygg.
06.03.2025 52/170. Pinsemenigheten Filadelfia Tonstad. Riving og oppføring av nytt bygg.
16.12.2024 Bekreftelse på mottatt byggesøknad
13.12.2024 Søknad om rammetillatelse 52/170
09.12.2024 Merknader til nabovarsel
09.12.2024 Nabovarsel
27.11.2024 Naboliste