NewConstruction Igangsettingstillatelse Offentlig

Ny brannstasjon med dekklager og carport i Bandadalen 108, Stord

📍 Bandadalen 108 , 5417 STORD

Nøkkelinfo

Sakstype
Nybygg
Bygningstype
Offentlig
Bruksareal
1,694 m²
Kommune
Stord
Fylke
Vestland
Gnr / Bnr
41 / 195
Saksnummer
2024/4377
Fase
Igangsettingstillatelse

Om byggesaken

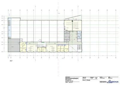
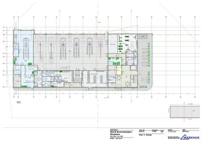
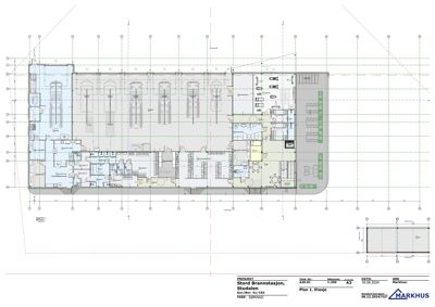
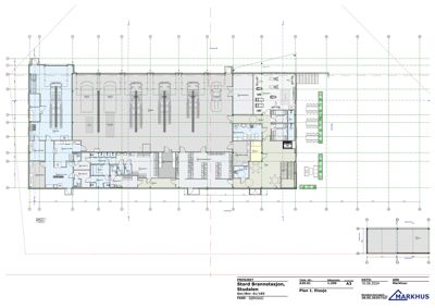
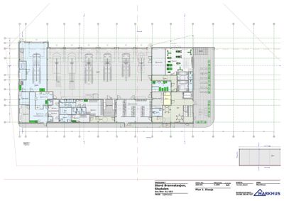
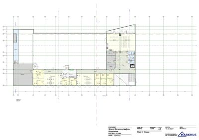
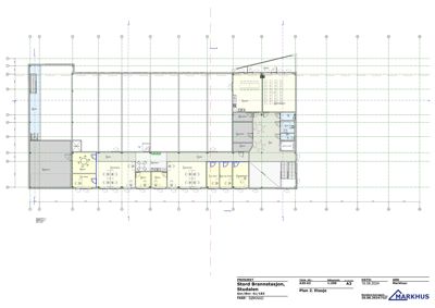
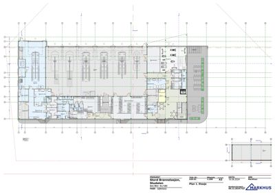
Ny brannstasjon på ca. 1693,5 m² BRA fordelt på to etasjer med funksjoner som vognhall, vaskehall, kontorer, møterom, garderober, treningsrom og tekniske rom. Bygget har flatt tak og fasader i betong og thermofuru kledning med røde detaljer på nordfasaden. Det er etablert en carport på 85-90 m² og et dekklager som senere er fjernet fra prosjektet. Bygget har to trapper og en balkong. Det er lagt vekt på god logistikk, universell utforming og brannsikkerhet. Utomhusanlegg inkluderer parkeringsplasser, to avkjørsler (en for utrykningskjøretøy), overvannshåndtering med infiltrasjon og oljeutskiller for vaskehall. Bygget er prosjektert med energieffektive løsninger, men det er gitt dispensasjon for U-verdi på store porter i vognhallen. Det er gjennomført uavhengig kontroll og godkjent av relevante myndigheter, inkludert Arbeidstilsynet. Det foreligger midlertidig brukstillatelse med mindre finisharbeider og dokumentasjon gjenstående.

Produkter og materialer

Gulv Betong og vinylbelegg

🧱 Slipt betonggulv og vinyl gulvbelegg, farge grånyanser

Tarkett – Granitt Concrete eller tilsvarende

Innvendige gulvflater

Stål Bærende metallkonstruksjoner

Bærende stålplater i takkonstruksjon og stålsøyler og dragere

Stålkonstruksjoner i bygget

Brannvern Brannalarmanlegg og slokkeutstyr

Brannalarmanlegg installert, testet og i drift. Slokkeutstyr montert.

Brannvernutstyr og systemer

Grunnarbeid Planering og VA-anlegg

Planering av tomt, VA-plan med oljeutskiller, infiltrasjon og fordrøyningsmagasin

Grunnarbeid og vann- og avløpsanlegg

Avfall Avfallshåndtering

Avfallsplan og sluttrapport for sortering og disponering av byggeavfall

Avfallshåndtering under og etter byggeprosessen

Tak Flatt tak

🧱 Kompakttak med bærende stålplater

Flatt tak på brannstasjonen

Dører Ytterdør og porter

🧱 Aluminiumsbelagt med lakkert aluminium, RAL3020

Store porter i vognhall med U-verdi 3,0 W/(m²K), dispensasjon fra TEK17 §14-3

Ytterdører og store porter med glassfelt for vognhall

Ventilasjon Ventilasjonsanlegg

Innregulering av ventilasjonsanlegg gjenstår

Ventilasjons- og klimainstallasjoner

Terrasse Balkong

🧱 Thermofuru kledning

Antall: 1

Balkong med usymmetrisk trekledning som skjerming

Balkong på nordfasade

Vinduer Fasadevindu

🧱 Aluminiumsbelagt med lakkert aluminium, RAL3020 og RAL7016

Vinduer med lydkrav Rw + Ctr ≥ 32 dB, spesielt på nord- og sørfasade

Vinduer i fasader med lydisolasjon for vegtrafikkstøy

Tømrer Tømrerarbeid og montering av trekonstruksjoner

Innvendige tømmerarbeider, montering av trekonstruksjoner i fasade og balkong

Tømrerarbeid i bygget

Garasjeport Store porter i vognhall

🧱 Aluminiumsbelagt med glassfelt

Porter med U-verdi 3,0 W/(m²K), dispensasjon fra TEK17

Store porter for utrykningskjøretøy

Elektro Ledesystem og elektroinstallasjoner

Elektroinstallasjoner og ledelys

Fasade Sandwichelementer og Thermofuru kledning

🧱 RW-sandwichelementer (Paroc eller tilsvarende), Thermofuru varmebehandlet og patinert

Fasadeplater i aluminiumskompositt (Alutile/Stacbond eller tilsvarende), farger RAL7016, RAL9006, RAL3020

Fasader med kombinasjon av sandwichelementer og stående trekledning

Maling Innvendig maling

🧱 Hvitmalt platekledning (Ultraboard eller tilsvarende)

Innvendige veggoverflater malt i klassisk hvit eller lys farge

Innvendige veggoverflater

VVS Sanitærinstallasjoner og varme-/kuldeinstallasjoner

Sanitær- og varme-/kuldeinstallasjoner i bygget

Bad Baderomsplater og fliser

🧱 Baderomsplater med lys slett overflate, terrazzo fliser i badstu

Badstu med osp panel og fliser, dusjrom med baderomsplater

Innvendige overflater i våtrom

Betong Plasstøpte betongkonstruksjoner

Fundamentering, ringmur og plater, bærende betongkonstruksjoner

Betongkonstruksjoner i bygget

Innvendige dører Kompakte og ståldører

🧱 Mørk grå farge, RAL7016 eller tilsvarende

Innvendige dører med kontrastfarge til vegger

Løfteinnretning Løfteplattform

Antall: 1

Løfteplattform i bygget

Fasader

Brannstasjon

Nord
Materiale
Betong
Taktype
Flatt tak
Vinduer
6
Dører
2
Balkonger
1
Synlige etasjer
2
Vest
Materiale
Betong
Taktype
Flatt tak
Vinduer
0
Dører
1
Synlige etasjer
2
Nordvest
Materiale
Betong
Vinduer
0
Dører
0
Synlige etasjer
1
Nordøst
Materiale
Betong
Vinduer
1
Dører
0
Synlige etasjer
1
Sørvest
Materiale
Betong
Vinduer
1
Dører
1
Synlige etasjer
1
Sørøst
Materiale
Betong
Vinduer
0
Dører
0
Synlige etasjer
1
Sør
Materiale
Tre
Taktype
Flatt tak
Vinduer
12
Dører
3
Synlige etasjer
2
Øst
Materiale
Tre
Taktype
Flatt tak
Vinduer
3
Dører
2
Synlige etasjer
1
Søro
Materiale
Betong
Vinduer
0
Dører
0
Synlige etasjer
1

Hendelser

13.04.2026 Melding om dokument fra Stord kommune: Godkjenning av ferdigmelding for vatn- og avløpsarbeid - Bandadalen 108, 41/195
12.04.2026 Godkjenning av ferdigmelding for vatn- og avløpsarbeid - Bandadalen 108, 41/195
12.04.2026 Mellombels bruksløyve - 41/195 - Nybygg brannstasjon, Bandadalen 108
09.04.2026 Melding om dokument fra Stord kommune: Ferdigmelding oljeutskiljar - 41/195
08.04.2026 Innmålingsdata
08.04.2026 Førebels svar - 41/195 - Nybygg brannstasjon, Bandadalen
07.04.2026 Søknad om mellombels bruksløyve for heile tiltaket - 41/195 - nybygg brannstasjon, Bandadalen
06.04.2026 Søknad om midlertidig bruksløyve - Stord Brannstasjon
10.02.2026 Godkjenning av ferdigmelding for ny tilknyting til offentleg vatn- /avløpsanlegg - Bandadalen 108, 41/195
10.02.2026 Godkjenning av søknad om ny tilknyting til offentleg vatn- /avløpsanlegg - Bandadalen 108, 41/195
09.02.2026 Mangel ved søknad om ny tilknyting til offentleg vatn- /avløpsanlegg - Bandadalen 108, 41/195
05.02.2026 Melding om endring av ansvarsrettar, og opphøyr av ansvarsrett før ansvarsområdet er ferdigstilt
26.08.2025 Løyve til igangsetting, delar av tiltaket - 41/195 - Nybygg brannstasjon, Brandadalen
21.08.2025 Søknad om igangsettingsløyve - del av tiltaket, , Studalen
20.08.2025 Stadfesting av motteken søknad om igangsetting - 41/195 - Nybygg brannstasjon, Brandadalen
01.07.2025 Løyve til endring - 41/195 - Nybygg brannstasjon, Brandadalen
30.06.2025 Trekk søknad om fasadeendring
30.06.2025 Trekk søknad om endring - 41/195
19.06.2025 Førebels svar - 41/195 - Nybygg brannstasjon, Brandadalen
19.06.2025 Vedr. Stord Brannstasjon - førebels svar fra kommunen - Ref. 2024/4377
18.06.2025 Førebels svar - 41/195 - Nybygg brannstasjon, Brandadalen
04.06.2025 Stadfesting av motteken søknad om endring - 41/195 - Nybygg brannstasjon, dekklager og carport,
03.06.2025 Søknad om endring - 41/195, Studalen
14.05.2025 Melding om dokument fra Stord kommune: Godkjenning av søknad om utsleppsløyve - Bandadalen 108, 41/195
12.03.2025 Supplering av søknad - 41/195
12.03.2025 Løyve til igangsetting, delar av tiltaket - 41/195 - Nybygg brannstasjon, dekklager og carport, Brandadalen
03.03.2025 Førebels svar - 41/195 - Nybygg brannstasjon, dekklager og carport, Brandadalen
03.03.2025 Supplering av søknad - 41/195
27.02.2025 Førebels svar - 41/195 (tidl. 41/183) - Nybygg brannstasjon, dekklager og carport, Brandadalen
26.02.2025 Stadfesting av motteken søknad om igangsetting - 41/195 - Nybygg brannstasjon, dekklager og carport, Brandadalen
26.02.2025 Søknad om igangsettingstillatelse - 41/195
02.01.2025 Matrikkelføring igangsettingsløyve nybygg brannstasjon, Bandadalen 108 - 41/195
16.12.2024 Erklæring Om Ansvarsrett-UTF_BYGGMESTER MARKHUS AS
16.12.2024 SV: Manglende vedlegg - IG søknad Stord Brannstasjon - Saknummer 2024/4377
12.12.2024 Løyve til igangsetting, delar av tiltaket - 41/195 - Nybygg brannstasjon, dekklager og carport, Brandadalen 108
12.12.2024 Manglende vedlegg - IG søknad Stord Brannstasjon - 41/195
12.12.2024 Stadfesting av motteken søknad om igangsetting - 41/195 - Nybygg brannstasjon, dekklager og carport,
09.12.2024 Søknad om igangsettingstillatelse - 41/195
25.11.2024 Matrikkelføring ny brannstasjon, dekklager og carport, Bandadalen 108
13.11.2024 Supplering av søknad - 41/195
11.11.2024 Stord Brannstasjon. Supplering av rammesøknad.
11.11.2024 Rammeløyve - Dispensasjon - 41/195 - Nybygg brannstasjon, dekklager og carport, Studalen
11.11.2024 Førespurnad om uttale - 41/195 - Nybygg brannstasjon, dekklager og carport,
04.11.2024 Vi innvilger søknaden om samtykke etter automatisk saksbehandling
03.10.2024 Rapport
01.10.2024 Uttale - Gnr. 41 bnr. 195 - Nybygg brannstasjon, dekklager og carport - Stord kommune
24.09.2024 Førebels svar - 41/195 - Nybygg brannstasjon, dekklager og carport,
23.09.2024 Svar - Nabovarsel brannstasjon, dekklager og carport - 41/195
12.09.2024 Søknad om rammeløyve - 41/195, , Studalen
11.09.2024 Stadfesting av motteken søknad - 41/195 - Nybygg brannstasjon, dekklager og carport, Studalen
01.07.2024 Referat frå førehandskonferanse - 41/183 - Studalen
24.06.2024 Førehandskonferanse - 41/183 - Innkalling til møte
24.06.2024 Svar på innkalling til forhåndskonferanse. Deres ref. 2024/4377 41/183
20.06.2024 Tinging av førehandskonferanse - 41/183